Eelregistreerimisega kliendipäev toimub juba sel pühapäeval vahemikus 10:00-12:00. Võta pere kaasa ja tulge tutvuge oma uue koduga Saku vallas! :)
Kehtiv hindamisakt olemas!
Müügile on tulnud läbimõeldud planeeringuga eramu looduskaunis Roobuka külas, Saku vallas. See kodu sobib ideaalselt noorele perele, kes hindab rahulikku keskkonda ja ruumikust, samas olles üldse mitte kaugel Saku keskusest.
MAJA
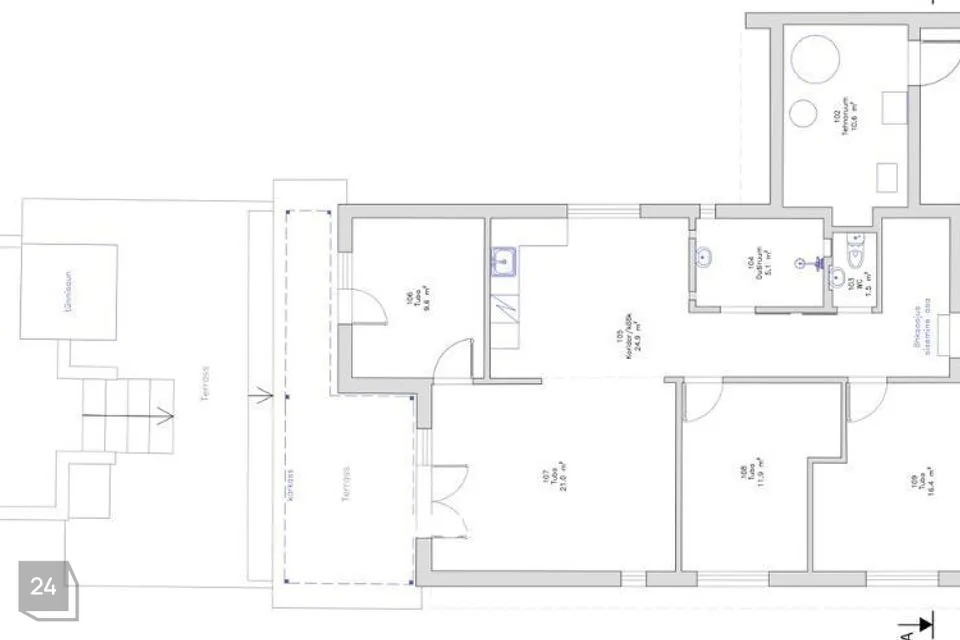
Eluruumi pinda on majal 103,2 m2 ning selle koosseisu kuulub esik, vannituba, eraldi tualettruum, valgusküllane köök-elutuba ning kolm eraldiseisvast magamistuba. Planeering toetab pereliikmete privaatsust, kuid samas loob piisavalt võimalusi koos olemiseks.
Põrandaid katab hele laminaatparkett ning sanitaarruumidesse paigaldatud keraamilised plaadid.
Majas on mitmed funktsioonid automatiseeritud ning mugandatud vastavalt pere vajadustele.
PS! Vannituppa on tellitud just selle vannitoa lahenduste jaoks mõeldud CALI tilgakujuline akrüülvann.
Lisaks paikneb hoovis suur ja eriline väliköök – see on 2023. aastal rajatud endise basseini betoonpõhjale ning varustatud kümblustünni ja terrassialaga. Täiuslik paik nii perega aja veetmiseks kui ka külaliste võõrustamiseks suveõhtutel.
TEHNOSÜSTEEMID
Maja on varustatud vesi-põrandaküttega, mille soojus tuleb päikesepaneelidest ja elektrilisest katlast.
Aasta lõikes keskmine kulu elekter, olme ja küte 180-190€/kuus.
Siseõhu kvaliteedi hoiab tasakaalus Komfovent soojustagastusega sundventilatsioon.
Lisaks on majas ka õhksoojuspump, mida kasutatakse kütteks ja jahutuseks.
Elektri peakaitse suurus 3x25A. Lisaturvalisust on võimalik tagada valvesignalistasiooni abiga ning lisaks on majas olemas tulekahjusignalisatsiooniandurid, mida on võimalik ühendada valvekeskusega.
Olemas on ka elektriauto laadimise võimalus!
Enefit rendi laadija kuumakse 24€, mille leping on võimalik uuele omanikule üle anda.
KINNISTU & HOOVIALA
Kinnistu on ruumikas ning väga hästi hooldatud. Parkimine on lahendatud kinnistul graniitkillustikuga kaetud alal, kus ruumi jagub parkimiseks mitmele autole.
Hooldatud hoov sobib ideaalselt lastele mängimiseks või aiapidamiseks. Suvine elu koondub avarale terrassile ja muljetavaldavasse välikööki.
NB! Huvi korral on võimalus soetada ka kõrvalkinnistu katastritunnusega 71813:002:0440. Küsi lisa!
ASUKOHT
Roobuka küla on üks Saku valla hinnatumaid elupiirkondi – looduslähedane, vaikne ja peresõbralik.
Samas ei jää mugavused kaugele – Saku aleviku keskusesse on vaid ~7-minutiline autosõit, kus asuvad suuremad toidupoed (Coop, Selver), apteegid ja perearstikeskus.
Lähim kauplus (Grossi toidupood) asub vaid 800m kaugusel.
Kooliealised lapsed saavad käia Kurtna Koolis (~3 km) ning lasteaia valikuid leidub nii Kurtna kui Saku alevikus. Saku alevikus vastvalminud Saku Gümnaasium ning põhikool. Kooliealiste laste jaoks on ühendus koolibusside näol mugavalt Kiisalt Sakus asuvate koolidega.
Ühistransporti kasutavatele pereliikmetele on olemas bussipeatus ca 700 m kaugusel, kust liiguvad ühendused nii Saku kui Tallinnaga. Autoga pääseb pealinna piirile 15 minutiga.
JAGA MINU KONTAKTI KÕIGILE, KES VAJAVAD KINNISVARANÕU!
- - - - - - - - - -
Telli hindamine UUS MAA Kinnisvarabüroolt https://uusmaa.ee/teenused/hindamine/
ning saad:
- Eksperthinnangu kuni 20% soodsamalt kui võtad koduga seotud laenu Swedbankist
- Pankadest parimad kodulaenutingimused
- Kiire, kvaliteetse ning usaldusväärse hindamisteenuse Eestis
UUS MAA KINNISVARABÜROO EKSPERTHINNANGUID AKTSEPTEERIVAD KÕIK FINANTSASUTUSED.
- - - - - - - - - -
Liitu Uus Maa uudiskirjaga ja saa homset kinnisvarainfot juba täna!
https://www.uusmaa.ee/uudiskirjagaliitumine/
- - - - - - - - - -
Kodu aitab osta Swedbank.
Pakkumise saamiseks kasuta koodi UUSMAA ja Sind teenindatakse eelisjärjekorras.
Võtame ühendust 1 tööpäeva jooksul.
Uus Maa kliendile soodsam lepingutasu. Küsi täpsemat infot maaklerilt.
Finantsteenuseid pakub Swedbank AS. Tutvu tingimustega, pea nõu.
Kehtiv hindamisakt olemas!
Müügile on tulnud läbimõeldud planeeringuga eramu looduskaunis Roobuka külas, Saku vallas. See kodu sobib ideaalselt noorele perele, kes hindab rahulikku keskkonda ja ruumikust, samas olles üldse mitte kaugel Saku keskusest.
MAJA
Eluruumi pinda on majal 103,2 m2 ning selle koosseisu kuulub esik, vannituba, eraldi tualettruum, valgusküllane köök-elutuba ning kolm eraldiseisvast magamistuba. Planeering toetab pereliikmete privaatsust, kuid samas loob piisavalt võimalusi koos olemiseks.
Põrandaid katab hele laminaatparkett ning sanitaarruumidesse paigaldatud keraamilised plaadid.
Majas on mitmed funktsioonid automatiseeritud ning mugandatud vastavalt pere vajadustele.
PS! Vannituppa on tellitud just selle vannitoa lahenduste jaoks mõeldud CALI tilgakujuline akrüülvann.
Lisaks paikneb hoovis suur ja eriline väliköök – see on 2023. aastal rajatud endise basseini betoonpõhjale ning varustatud kümblustünni ja terrassialaga. Täiuslik paik nii perega aja veetmiseks kui ka külaliste võõrustamiseks suveõhtutel.
TEHNOSÜSTEEMID
Maja on varustatud vesi-põrandaküttega, mille soojus tuleb päikesepaneelidest ja elektrilisest katlast.
Aasta lõikes keskmine kulu elekter, olme ja küte 180-190€/kuus.
Siseõhu kvaliteedi hoiab tasakaalus Komfovent soojustagastusega sundventilatsioon.
Lisaks on majas ka õhksoojuspump, mida kasutatakse kütteks ja jahutuseks.
Elektri peakaitse suurus 3x25A. Lisaturvalisust on võimalik tagada valvesignalistasiooni abiga ning lisaks on majas olemas tulekahjusignalisatsiooniandurid, mida on võimalik ühendada valvekeskusega.
Olemas on ka elektriauto laadimise võimalus!
Enefit rendi laadija kuumakse 24€, mille leping on võimalik uuele omanikule üle anda.
KINNISTU & HOOVIALA
Kinnistu on ruumikas ning väga hästi hooldatud. Parkimine on lahendatud kinnistul graniitkillustikuga kaetud alal, kus ruumi jagub parkimiseks mitmele autole.
Hooldatud hoov sobib ideaalselt lastele mängimiseks või aiapidamiseks. Suvine elu koondub avarale terrassile ja muljetavaldavasse välikööki.
NB! Huvi korral on võimalus soetada ka kõrvalkinnistu katastritunnusega 71813:002:0440. Küsi lisa!
ASUKOHT
Roobuka küla on üks Saku valla hinnatumaid elupiirkondi – looduslähedane, vaikne ja peresõbralik.
Samas ei jää mugavused kaugele – Saku aleviku keskusesse on vaid ~7-minutiline autosõit, kus asuvad suuremad toidupoed (Coop, Selver), apteegid ja perearstikeskus.
Lähim kauplus (Grossi toidupood) asub vaid 800m kaugusel.
Kooliealised lapsed saavad käia Kurtna Koolis (~3 km) ning lasteaia valikuid leidub nii Kurtna kui Saku alevikus. Saku alevikus vastvalminud Saku Gümnaasium ning põhikool. Kooliealiste laste jaoks on ühendus koolibusside näol mugavalt Kiisalt Sakus asuvate koolidega.
Ühistransporti kasutavatele pereliikmetele on olemas bussipeatus ca 700 m kaugusel, kust liiguvad ühendused nii Saku kui Tallinnaga. Autoga pääseb pealinna piirile 15 minutiga.
JAGA MINU KONTAKTI KÕIGILE, KES VAJAVAD KINNISVARANÕU!
- - - - - - - - - -
Telli hindamine UUS MAA Kinnisvarabüroolt https://uusmaa.ee/teenused/hindamine/
ning saad:
- Eksperthinnangu kuni 20% soodsamalt kui võtad koduga seotud laenu Swedbankist
- Pankadest parimad kodulaenutingimused
- Kiire, kvaliteetse ning usaldusväärse hindamisteenuse Eestis
UUS MAA KINNISVARABÜROO EKSPERTHINNANGUID AKTSEPTEERIVAD KÕIK FINANTSASUTUSED.
- - - - - - - - - -
Liitu Uus Maa uudiskirjaga ja saa homset kinnisvarainfot juba täna!
https://www.uusmaa.ee/uudiskirjagaliitumine/
- - - - - - - - - -
Kodu aitab osta Swedbank.
Pakkumise saamiseks kasuta koodi UUSMAA ja Sind teenindatakse eelisjärjekorras.
Võtame ühendust 1 tööpäeva jooksul.
Uus Maa kliendile soodsam lepingutasu. Küsi täpsemat infot maaklerilt.
Finantsteenuseid pakub Swedbank AS. Tutvu tingimustega, pea nõu.
















































