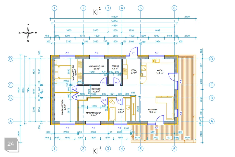
Müüa maja looduse keskel, mis on ehitusjärgus. Projekti järgi on majas kolm magamistuba, esik, avatud elutuba-köök, dušširuum, saun, wc ja tehnoruum. Maja kahel küljel terrass.
Kiiresti tegutsedes saab juba Jõuluks oma koju!
NB! Hind on "võtmed kätte"!
3D PILDID ON ILLUSTRATIIVSED, NÄITAMAKS , KUIDAS MAJA VÄLJA NÄEB.
VÕIMALUS KAASA RÄÄKIDA SISEVIIMISTLUSE LAHENDUSTE OSAS !
Kaasa saab rääkida veel ka siseseinade ( uste ) muutmiseks oma soovi järgi!
Küte ja ventilatsioon :
Õhk-vesi küttesüsteemil baseeruv vesipõrandaküte.
SOOJUSTAGASTUSEGA VENTILATSIOONISÜSTEEM !
Välis- ja siseseinad on väikeplokist , voodrikatteks on laudis, palekk-katus, 3-kordsed plastpakkettaknad.
Seinad ja laed värvitakse heledates toonides, parkettpõrandad, siseuksed paigaldatud, pesuruum plaaditud, san.tehnika, valmis leiliruum ( el. kerisega )
Hinna sees müüja poolt korraldatav elektri liitumine 3 x 16A
Korruste arv 1
Tubade arv 5
Tubade kõrgus ca 2.6 / 3.5 m
Suletud netopind 106.5 m²
Ehitusalune pind 145.3 m²
Terrassi pind 47.3 m²

















