Kui oled unistanud uuest ja kaasaegsest kodust, kus saad ise valida viimistluse ja kujundada ruumid oma pere vajaduste järgi, siis see pakkumine on just sulle.
Müüa ehitusjärgus kahekorruseline maja suletud netopinnaga 227,5 m² (sh köetav pind 227,5 m², eluruumide pind 187,1 m²), mis paikneb 8064 m² suurusel maatükil.
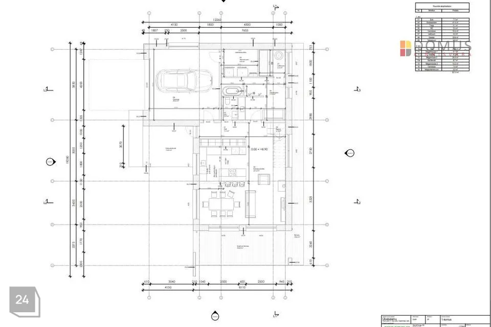
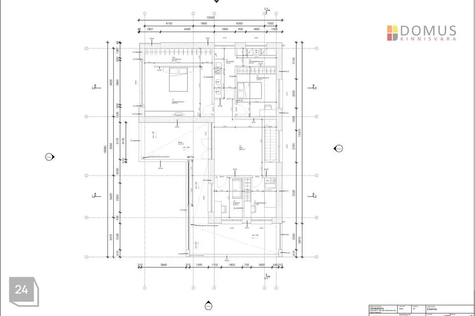
Planeering
Esimene korrus: esik, avatud köök-elutuba, tualett, vannituba, leiliruum, tehniline ruum ja garaaž.
Teine korrus: kolm magamistuba, kabinet, garderoob, vannituba ja majapidamisruum.
Avarad toad ja suured aknad toovad majja rohkelt valgust, luues õdusa ja praktilise elukeskkonna tervele perele.
Ehituslik valmidus
• Valmis vundament, kandekonstruktsioonid, vahelaed ja aknad
• Olemas kõik liitumised: maaküte, elekter, tsentraalne vesi ja kanalisatsioon
• Töödega saab koheselt jätkata
Asukoht
Maja paikneb rahulikus ja privaatses elukeskkonnas Kuressaare lähedal. Bussipeatus on vaid ca 500 m kaugusel ning kergliiklusteed viivad otse linna.
Kuressaare linnas ja kõik vajalikud teenused jäävad vaid mõneminutilise autosõidu kaugusele.
Naabruses on Saaremaa Südamekodu hooldekodu, Kuressaare ametikooli õppehooned, Suure-Töllu puhkeküla ning väljakujunenud eramute piirkond.
Pangad pakuvad Domus Kinnisvara klientidele eluasemelaenu lepingutasu soodustusi. Küsi lisainfot Domus Kinnisvara maaklerilt või hindajalt.
Müü ja hinda meiega! Teeme kinnisvara müügi Sinu jaoks sujuvaks ja pingevabaks.
Müüa ehitusjärgus kahekorruseline maja suletud netopinnaga 227,5 m² (sh köetav pind 227,5 m², eluruumide pind 187,1 m²), mis paikneb 8064 m² suurusel maatükil.
Planeering
Esimene korrus: esik, avatud köök-elutuba, tualett, vannituba, leiliruum, tehniline ruum ja garaaž.
Teine korrus: kolm magamistuba, kabinet, garderoob, vannituba ja majapidamisruum.
Avarad toad ja suured aknad toovad majja rohkelt valgust, luues õdusa ja praktilise elukeskkonna tervele perele.
Ehituslik valmidus
• Valmis vundament, kandekonstruktsioonid, vahelaed ja aknad
• Olemas kõik liitumised: maaküte, elekter, tsentraalne vesi ja kanalisatsioon
• Töödega saab koheselt jätkata
Asukoht
Maja paikneb rahulikus ja privaatses elukeskkonnas Kuressaare lähedal. Bussipeatus on vaid ca 500 m kaugusel ning kergliiklusteed viivad otse linna.
Kuressaare linnas ja kõik vajalikud teenused jäävad vaid mõneminutilise autosõidu kaugusele.
Naabruses on Saaremaa Südamekodu hooldekodu, Kuressaare ametikooli õppehooned, Suure-Töllu puhkeküla ning väljakujunenud eramute piirkond.
Pangad pakuvad Domus Kinnisvara klientidele eluasemelaenu lepingutasu soodustusi. Küsi lisainfot Domus Kinnisvara maaklerilt või hindajalt.
Müü ja hinda meiega! Teeme kinnisvara müügi Sinu jaoks sujuvaks ja pingevabaks.





































