Müüa sissekolimiseks valmis 2014.aastal ehitatud elumaja, mille koosseisus on ka garaaž ja 4 suurt abiruumi!
KASUTUSLOAGA MAJA!
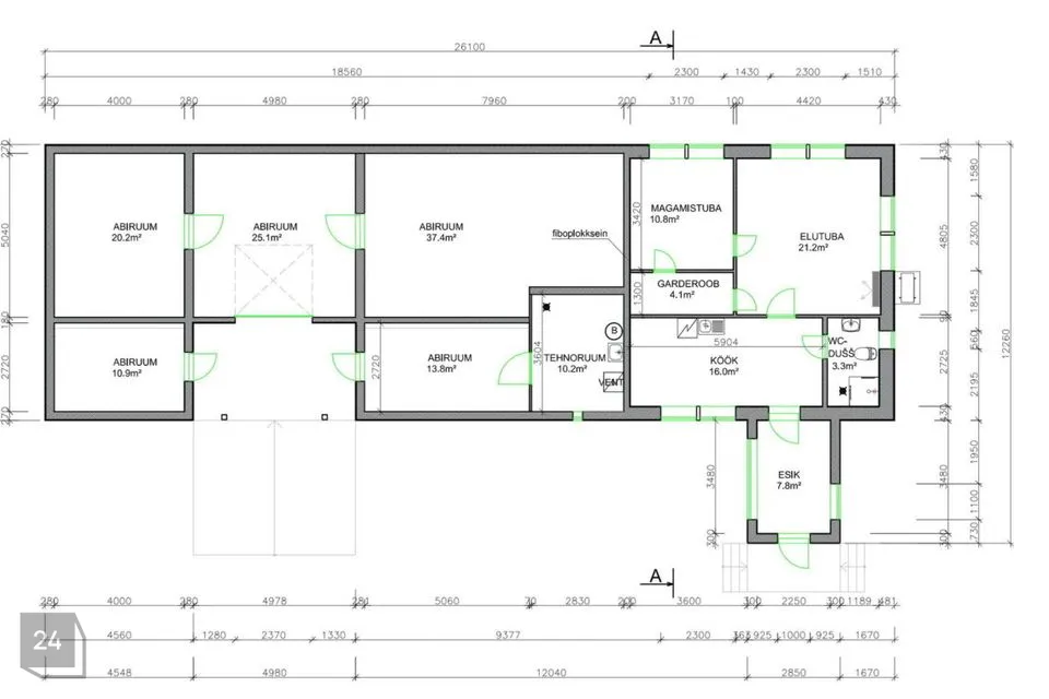
MAJA
Ehitusalune pind 232,1m², suletud neto 180,8m² ja sellest eluruumide pind on 63,2m² ja abiruumide (sh tehnoruum) pind 117,6m².
Eluruumide osas on köök, elutuba, magamistuba, walk-in garderoob, duširuum koos wc-ga ja tuulekoda.
Abiruumide hulgas on tõstuksega garaaž (25,1m²), tehnoruum (10,2m²) ja 4 abiruumi (10,9m², 13,8m², 20,2m² ja 37,4m²).
Viimane suurem abiruum jääb eluruumide poole ning selle arvelt saaks teha nt 2-3 magamistuba juurde. Abiruumides on betoonpõrand ja lae kõrgus lausa 3,2m.
Seinad - puitkarkass, sandwich paneel 125mm, fiboplokist vahesein eluruumide ja abiruumide vahel, eluruumide osas kipsplaadist karkass-siseseinad.
Katus- puitfermidel viilkatus, katusekatteks profiilplekk.
Vundament- fibo plokkidest lintvundament.
Vahelagi- seintele toetuvad talad, sandwich paneel 125mm.
Põrandad- monoliitbetoon, eluruumide osas laminaatparkett, tuulekoda ja san.boks plaaditud.
Aknad - 3-kordsed plastikpakettaknad, tuulekojal 2-kordsed.
KOMMUNIKATSIOONID
Elekter 3x16A (värske mõõdistusaudit).
Oma puurkaev (veeanalüüsid värskelt tehtud).
Kanalisatsioon - kinnine mahuti 2,5m3.
Sideteenus - õhu kaudu
KÜTE
Elutoas on Daikini õhksoojuspump, duširuum/wc-s ja tuulekojas el.põrandaküte. Lisaks on eluruumides ka seinale paigaldatud el.radiaatorid.
VENTILATSIOON
Eluruumides on soojustagastusega Vallox-i ventilatsiooniseade, värskelt tehtud seadme hooldus ja lisatud uued filtrid.
ENERGIAMÄRGIS
Puudub
JUURDEPÄÄS
Hoonele on tagatud juurdepääs Audla-Saareküla-Tornimäe-Väikese väina avalikult teelt teelt läbi munitsipaalomandis oleva Kopli tee.
ASUKOHT
Müügiobjekt jääb vaid 2km kaugusele merest, kuhu saab mugavalt mööda tolmuvaba teed minna.
7,7km Tornimäelt, kus on Coopi kauplus, Meierei kohvik, lasteaed, põhikool. Orissaare keskuseni 15km. Muhu saare keskusest, Liivalt 23km. Kuivastu sadamasse 34km ja Kuressaare linna 51km.
HELISTA ja broneeri kohtumine oma Saaremaa koduga! MAJA ON VABA!
KASUTUSLOAGA MAJA!
MAJA
Ehitusalune pind 232,1m², suletud neto 180,8m² ja sellest eluruumide pind on 63,2m² ja abiruumide (sh tehnoruum) pind 117,6m².
Eluruumide osas on köök, elutuba, magamistuba, walk-in garderoob, duširuum koos wc-ga ja tuulekoda.
Abiruumide hulgas on tõstuksega garaaž (25,1m²), tehnoruum (10,2m²) ja 4 abiruumi (10,9m², 13,8m², 20,2m² ja 37,4m²).
Viimane suurem abiruum jääb eluruumide poole ning selle arvelt saaks teha nt 2-3 magamistuba juurde. Abiruumides on betoonpõrand ja lae kõrgus lausa 3,2m.
Seinad - puitkarkass, sandwich paneel 125mm, fiboplokist vahesein eluruumide ja abiruumide vahel, eluruumide osas kipsplaadist karkass-siseseinad.
Katus- puitfermidel viilkatus, katusekatteks profiilplekk.
Vundament- fibo plokkidest lintvundament.
Vahelagi- seintele toetuvad talad, sandwich paneel 125mm.
Põrandad- monoliitbetoon, eluruumide osas laminaatparkett, tuulekoda ja san.boks plaaditud.
Aknad - 3-kordsed plastikpakettaknad, tuulekojal 2-kordsed.
KOMMUNIKATSIOONID
Elekter 3x16A (värske mõõdistusaudit).
Oma puurkaev (veeanalüüsid värskelt tehtud).
Kanalisatsioon - kinnine mahuti 2,5m3.
Sideteenus - õhu kaudu
KÜTE
Elutoas on Daikini õhksoojuspump, duširuum/wc-s ja tuulekojas el.põrandaküte. Lisaks on eluruumides ka seinale paigaldatud el.radiaatorid.
VENTILATSIOON
Eluruumides on soojustagastusega Vallox-i ventilatsiooniseade, värskelt tehtud seadme hooldus ja lisatud uued filtrid.
ENERGIAMÄRGIS
Puudub
JUURDEPÄÄS
Hoonele on tagatud juurdepääs Audla-Saareküla-Tornimäe-Väikese väina avalikult teelt teelt läbi munitsipaalomandis oleva Kopli tee.
ASUKOHT
Müügiobjekt jääb vaid 2km kaugusele merest, kuhu saab mugavalt mööda tolmuvaba teed minna.
7,7km Tornimäelt, kus on Coopi kauplus, Meierei kohvik, lasteaed, põhikool. Orissaare keskuseni 15km. Muhu saare keskusest, Liivalt 23km. Kuivastu sadamasse 34km ja Kuressaare linna 51km.
HELISTA ja broneeri kohtumine oma Saaremaa koduga! MAJA ON VABA!






















































