MAJA
Müüa suurel krundil paiknev ühekorruseline pereelamu Tamme kinnistul, Atla külas, Raplamaal. Majal on olemas kasutusluba. Modernse arhitektuuriga puitmaja sobib hästi perele, kes hindab ruumi, privaatsust ja rahulikku elukeskkonda.
Hoone on ehitatud raudbetoonist plaatvundamendile, välisseinad on puitkarkassil, soojustatud 200 mm mineraalvillaga ning välisviimistluseks on must katusekivi ning puitfassaad. Katust katab must Benders Carisma kivikatus, mille konstruktsioon on tehase fermidest ja soojustatud 400 mm plaatvillaga. Musta raamiga kolmekordsed klaaspaketaknad tagavad suurepärase energiatõhususe.
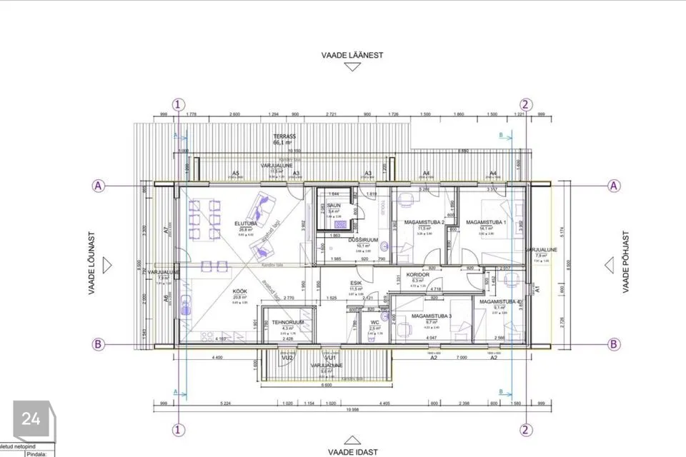
Maja koosseisu kuuluvad: esik, koridor, avatud köök-elutuba, neli magamistuba, saun, duširuum, WC ning tehnoruum.
Siseviimistlus on hele ja modernne, kasutatud on naturaalset puitu ja kvaliteetseid viimistlusmaterjale. Avatud köök-elustoa, esiku ja WC põrandad on kaetud keraamilise plaadiga. Magamistubade põrandatel on parkett.
Kõrged kaldlaed elutoas ning suured aknad loovad avara ja valgusküllase atmosfääri. Elutoast ja saunast pääseb otse terrassile.
Saunas on olemas täislahendus – lava ning Harvia elektrikeris.
Tehnoruumi pääseb otse õuest eraldi sissepääsu kaudu.
KINNISTU
5006 m² suurune kinnistu on avar ja privaatne. Krundil on nii avatud õueala kui ka suured puud, mis loovad mõnusa ja rahuliku atmosfääri. Juurdepääs on hea ning maja ees on mugav parkimisala. Suur maa-ala annab võimaluse kujundada õueala täpselt oma soovide järgi.
KÜTE/VENTILATSIOON
Maja kütmiseks on paigaldatud energiatõhus õhk–vesi soojuspump ning vesipõrandaküte, mis tagavad ühtlase ja energiasäästliku soojuse.
Majas on soojustagastusega sundventilatsioon, mis tagab tervisliku sisekliima.
KOMMUNIKATSIOONID.
Kinnistul on olemas puurkaev, lokaalne kanalisatsioon ja 3-faasiline elektriühendus.
ASUKOHT
Kodu paikneb rahulikus ja rohelises piirkonnas. Juuru alevik, kus asuvad toidupood, põhikool, lasteaed, skatepark, hooldekodu ja raamatukogu, jääb 5-minutilise autosõidu kaugusele. Rapla linn jääb 15-minutilise autosõidu kaugusele, Tallinn 45- minutilise autosõidu kaugusele.
LISAINFO
Võta julgesti ühendust ja tule selle koduga tutvuma!
Müüa suurel krundil paiknev ühekorruseline pereelamu Tamme kinnistul, Atla külas, Raplamaal. Majal on olemas kasutusluba. Modernse arhitektuuriga puitmaja sobib hästi perele, kes hindab ruumi, privaatsust ja rahulikku elukeskkonda.
Hoone on ehitatud raudbetoonist plaatvundamendile, välisseinad on puitkarkassil, soojustatud 200 mm mineraalvillaga ning välisviimistluseks on must katusekivi ning puitfassaad. Katust katab must Benders Carisma kivikatus, mille konstruktsioon on tehase fermidest ja soojustatud 400 mm plaatvillaga. Musta raamiga kolmekordsed klaaspaketaknad tagavad suurepärase energiatõhususe.
Maja koosseisu kuuluvad: esik, koridor, avatud köök-elutuba, neli magamistuba, saun, duširuum, WC ning tehnoruum.
Siseviimistlus on hele ja modernne, kasutatud on naturaalset puitu ja kvaliteetseid viimistlusmaterjale. Avatud köök-elustoa, esiku ja WC põrandad on kaetud keraamilise plaadiga. Magamistubade põrandatel on parkett.
Kõrged kaldlaed elutoas ning suured aknad loovad avara ja valgusküllase atmosfääri. Elutoast ja saunast pääseb otse terrassile.
Saunas on olemas täislahendus – lava ning Harvia elektrikeris.
Tehnoruumi pääseb otse õuest eraldi sissepääsu kaudu.
KINNISTU
5006 m² suurune kinnistu on avar ja privaatne. Krundil on nii avatud õueala kui ka suured puud, mis loovad mõnusa ja rahuliku atmosfääri. Juurdepääs on hea ning maja ees on mugav parkimisala. Suur maa-ala annab võimaluse kujundada õueala täpselt oma soovide järgi.
KÜTE/VENTILATSIOON
Maja kütmiseks on paigaldatud energiatõhus õhk–vesi soojuspump ning vesipõrandaküte, mis tagavad ühtlase ja energiasäästliku soojuse.
Majas on soojustagastusega sundventilatsioon, mis tagab tervisliku sisekliima.
KOMMUNIKATSIOONID.
Kinnistul on olemas puurkaev, lokaalne kanalisatsioon ja 3-faasiline elektriühendus.
ASUKOHT
Kodu paikneb rahulikus ja rohelises piirkonnas. Juuru alevik, kus asuvad toidupood, põhikool, lasteaed, skatepark, hooldekodu ja raamatukogu, jääb 5-minutilise autosõidu kaugusele. Rapla linn jääb 15-minutilise autosõidu kaugusele, Tallinn 45- minutilise autosõidu kaugusele.
LISAINFO
Võta julgesti ühendust ja tule selle koduga tutvuma!





















































