Oled otsimas kodu, mis ühendab endas moodsa arhitektuuri, energiatõhususe ja loodusläheduse? Taaravainu külas, Rakvere keskusest vaid 5-minutilise autosõidu kaugusel, on müügiks pakkuda kaasaegse arhitektuuriga energiasäästlik elamuprojekt. See on ideaalne valik neile, kes hindavad privaatsust ja looduslähedust, kuid ei soovi loobuda linnalähedasest elust ja mugavustest.
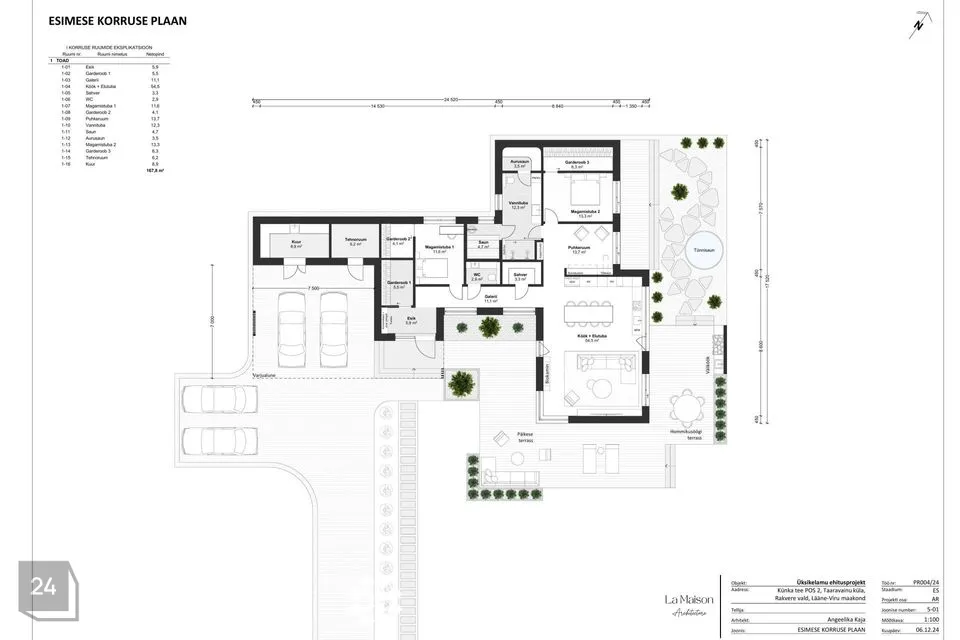
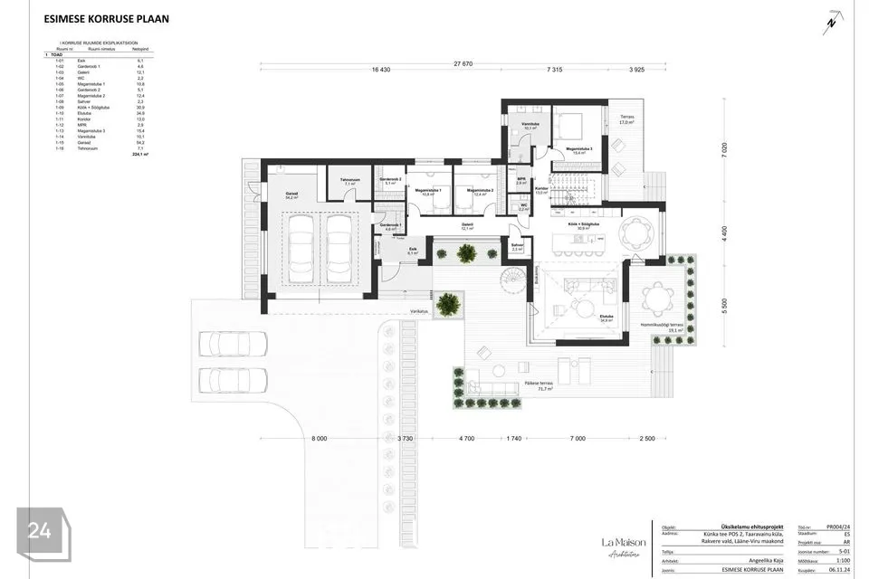
Antud kinnistule on tehtud kaks erinevat projekti - üks on ca 168 + 52,5 (auto varjualune) m2 ja teine 248 m2. Võtmed kätte lahenduse hind algab 420 000 eurost (sisaldab kinnistu hinda).
KINNISTU JA ASUKOHT
- Kinnistu suurus: 2090 m²
- Piirkonda iseloomustavad kaunid loodusvaated ja terviklik arhitektuurne lahendus
- Väga hea ühendus Rakvere kesklinnaga – kergliiklusteed, ühistranspordipeatused läheduses
- Rakvere linnuse ja looduskaunite vaadetega elukeskkond
- Läheduses koolid, lasteaiad ja kauplused
- Vallaga kokku lepitud taristu arendus – välja ehitatakse sissesõidutee, kergliiklustee, tänavavalgustus
MAJA JA RUUMILAHENDUS
- Köetav pind: 167,8 m² + 52,5 m² auto varjualune Võimalus tellida ka suurem projekt
- Esik: 5,9 m² – mugav sissepääs koos panipaigaga
- Garderoobid: 3 eraldi garderoobi (5,5 m², 4,1 m² ja 6,3 m²)
- Elutuba ja köök: avar avatud planeeringuga ruum (54,5 m²), suured aknad loovad valgusküllase ja avara atmosfääri
- Magamistoad: 2 mugavat magamistuba (11,6 m² ja 13,3 m²)
- Sanitaarruumid: 2 vannituba (12,3 m² ja 2,9 m²), kaasaegse sanitaartehnikaga
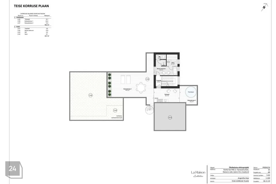
- Saun: soome saun (4,7 m²) ja aurusaun (3,5 m²)
- Puhkeruum: 13,7 m² – ideaalne koht lõõgastumiseks või töötamiseks
- Tehnoruum: 6,2 m²
- Kuur: 8,9 m² lisapanipaigana
- Terrass: suur päikeseterrass (hommiku- ja õhtupäikese poole), ideaalne pere ja sõpradega aja veetmiseks
Projektid on loonud arhitektibüroo La Maison Arhitektuur
MAJA JA EHITUS
- Vundament: monolitiseeritud õõnesplokkidest lintvundament
- Seinad: monolitiseeritud õõnesplokkidest, osaliselt puitkarkass
- Soojustus: EPS/mineraalvill + õhekrohv, tuuletõke ja puitlaudis
- Katus: monoliitbetoon katuslagi, EPS ja mineraalvill soojustus, kahekihiline SBS katusekate
- Akende ja uste lahendus: alumiiniumaknad, siseuksed puidust
- Siseviimistlus: seinad ja laed värvitud, põrandatel parkett/kivi, sanitaarruumid plaaditud ja varustatud sanitaartehnikaga
- Lagede kõrgus: 2800-**** mm
TEHNOSÜSTEEMID JA ENERGIATÕHUSUS
- Küttesüsteem: maaküte
- Ventilatsioon: soojustagastusega ventilatsioonisüsteem
- Jahutus ja nõrkvoolu kaabeldus
- Energiaklass: A-klass
- Elektriauto laadimisvalmidus
- 5G leviala ja planeeritav optiline kaabelühendus
MIDA SEE PAKKUMINE SISALDAB?
- Võimalus tellida arendajalt võtmed kätte lahenduses eramaja. Eramu suuruseid saab vastavalt soovile ja vajadusele ise valida
- Individuaalne planeeringu- ja viimistluslahendus vastavalt kliendi soovile
- Tulevikku suunatud taristulahendused ja kaasaegne elukeskkond.
Kui otsid kodu, mis oleks nii modernne, energiatõhus kui ka rahulikus ja looduskaunis asukohas, võta meiega ühendust, et saada rohkem teavet ja tutvuda projektiga lähemalt!
Tule ja loo oma unistuste kodu looduslähedases ning arenevas piirkonnas!
JAGA MINU KONTAKTI KÕIGILE, KES VAJAVAD KINNISVARANÕU!
- - - - - - - - - -
Telli hindamine UUS MAA Kinnisvarabüroolt https://uusmaa.ee/teenused/hindamine/
ning saad:
- Eksperthinnangu kuni 20% soodsamalt kui võtad koduga seotud laenu Swedbankist
- Pankadest parimad kodulaenutingimused
- Kiire, kvaliteetse ning usaldusväärse hindamisteenuse Eestis
UUS MAA KINNISVARABÜROO EKSPERTHINNANGUID AKTSEPTEERIVAD KÕIK FINANTSASUTUSED.
- - - - - - - - - -
Liitu Uus Maa uudiskirjaga ja saa homset kinnisvarainfot juba täna!
https://www.uusmaa.ee/uudiskirjagaliitumine/
- - - - - - - - - -
Kodu aitab osta Swedbank.
Pakkumise saamiseks kasuta koodi UUSMAA ja Sind teenindatakse eelisjärjekorras.
Võtame ühendust 1 tööpäeva jooksul.
Uus Maa kliendile soodsam lepingutasu. Küsi täpsemat infot maaklerilt.
Finantsteenuseid pakub Swedbank AS. Tutvu tingimustega, pea nõu.
Antud kinnistule on tehtud kaks erinevat projekti - üks on ca 168 + 52,5 (auto varjualune) m2 ja teine 248 m2. Võtmed kätte lahenduse hind algab 420 000 eurost (sisaldab kinnistu hinda).
KINNISTU JA ASUKOHT
- Kinnistu suurus: 2090 m²
- Piirkonda iseloomustavad kaunid loodusvaated ja terviklik arhitektuurne lahendus
- Väga hea ühendus Rakvere kesklinnaga – kergliiklusteed, ühistranspordipeatused läheduses
- Rakvere linnuse ja looduskaunite vaadetega elukeskkond
- Läheduses koolid, lasteaiad ja kauplused
- Vallaga kokku lepitud taristu arendus – välja ehitatakse sissesõidutee, kergliiklustee, tänavavalgustus
MAJA JA RUUMILAHENDUS
- Köetav pind: 167,8 m² + 52,5 m² auto varjualune Võimalus tellida ka suurem projekt
- Esik: 5,9 m² – mugav sissepääs koos panipaigaga
- Garderoobid: 3 eraldi garderoobi (5,5 m², 4,1 m² ja 6,3 m²)
- Elutuba ja köök: avar avatud planeeringuga ruum (54,5 m²), suured aknad loovad valgusküllase ja avara atmosfääri
- Magamistoad: 2 mugavat magamistuba (11,6 m² ja 13,3 m²)
- Sanitaarruumid: 2 vannituba (12,3 m² ja 2,9 m²), kaasaegse sanitaartehnikaga
- Saun: soome saun (4,7 m²) ja aurusaun (3,5 m²)
- Puhkeruum: 13,7 m² – ideaalne koht lõõgastumiseks või töötamiseks
- Tehnoruum: 6,2 m²
- Kuur: 8,9 m² lisapanipaigana
- Terrass: suur päikeseterrass (hommiku- ja õhtupäikese poole), ideaalne pere ja sõpradega aja veetmiseks
Projektid on loonud arhitektibüroo La Maison Arhitektuur
MAJA JA EHITUS
- Vundament: monolitiseeritud õõnesplokkidest lintvundament
- Seinad: monolitiseeritud õõnesplokkidest, osaliselt puitkarkass
- Soojustus: EPS/mineraalvill + õhekrohv, tuuletõke ja puitlaudis
- Katus: monoliitbetoon katuslagi, EPS ja mineraalvill soojustus, kahekihiline SBS katusekate
- Akende ja uste lahendus: alumiiniumaknad, siseuksed puidust
- Siseviimistlus: seinad ja laed värvitud, põrandatel parkett/kivi, sanitaarruumid plaaditud ja varustatud sanitaartehnikaga
- Lagede kõrgus: 2800-**** mm
TEHNOSÜSTEEMID JA ENERGIATÕHUSUS
- Küttesüsteem: maaküte
- Ventilatsioon: soojustagastusega ventilatsioonisüsteem
- Jahutus ja nõrkvoolu kaabeldus
- Energiaklass: A-klass
- Elektriauto laadimisvalmidus
- 5G leviala ja planeeritav optiline kaabelühendus
MIDA SEE PAKKUMINE SISALDAB?
- Võimalus tellida arendajalt võtmed kätte lahenduses eramaja. Eramu suuruseid saab vastavalt soovile ja vajadusele ise valida
- Individuaalne planeeringu- ja viimistluslahendus vastavalt kliendi soovile
- Tulevikku suunatud taristulahendused ja kaasaegne elukeskkond.
Kui otsid kodu, mis oleks nii modernne, energiatõhus kui ka rahulikus ja looduskaunis asukohas, võta meiega ühendust, et saada rohkem teavet ja tutvuda projektiga lähemalt!
Tule ja loo oma unistuste kodu looduslähedases ning arenevas piirkonnas!
JAGA MINU KONTAKTI KÕIGILE, KES VAJAVAD KINNISVARANÕU!
- - - - - - - - - -
Telli hindamine UUS MAA Kinnisvarabüroolt https://uusmaa.ee/teenused/hindamine/
ning saad:
- Eksperthinnangu kuni 20% soodsamalt kui võtad koduga seotud laenu Swedbankist
- Pankadest parimad kodulaenutingimused
- Kiire, kvaliteetse ning usaldusväärse hindamisteenuse Eestis
UUS MAA KINNISVARABÜROO EKSPERTHINNANGUID AKTSEPTEERIVAD KÕIK FINANTSASUTUSED.
- - - - - - - - - -
Liitu Uus Maa uudiskirjaga ja saa homset kinnisvarainfot juba täna!
https://www.uusmaa.ee/uudiskirjagaliitumine/
- - - - - - - - - -
Kodu aitab osta Swedbank.
Pakkumise saamiseks kasuta koodi UUSMAA ja Sind teenindatakse eelisjärjekorras.
Võtame ühendust 1 tööpäeva jooksul.
Uus Maa kliendile soodsam lepingutasu. Küsi täpsemat infot maaklerilt.
Finantsteenuseid pakub Swedbank AS. Tutvu tingimustega, pea nõu.








































