Valmis on saanud modernne elumaja 5km kaugusel Rakvere kesklinnast, kadakate vahel.
Maja on valmistatud betoonelemendist - pikaealine, nõuab minimaalset hooldust, ökonoomsed elamiskulud.
Plaaditud terrass ja privaatne bassein. Lisaks ümbritsevad terrassi täies ulatuses avatavad klaasseinad, mis võimaldavad ruumi ilmast sõltuvalt kohandada.
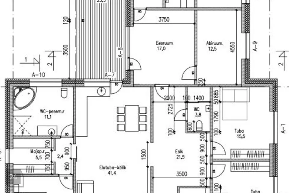
Majas on 4 magamistuba, köök- ja elutuba ning avar sauna eesruum.
Turvalisust lisab toimiv naabrivalve, ent lisakindlust annab majale paigaldatud kaameravalve.
Kõrvalhoonena on autokatusealune ja kuur/panipaik.
























