Nutika planeeringuga maja Peetri südames – ideaalne kahele perele!
Peetri alevik, Rae vald
Kivimaja • 332 m² • 2 korrust • Kinnistu
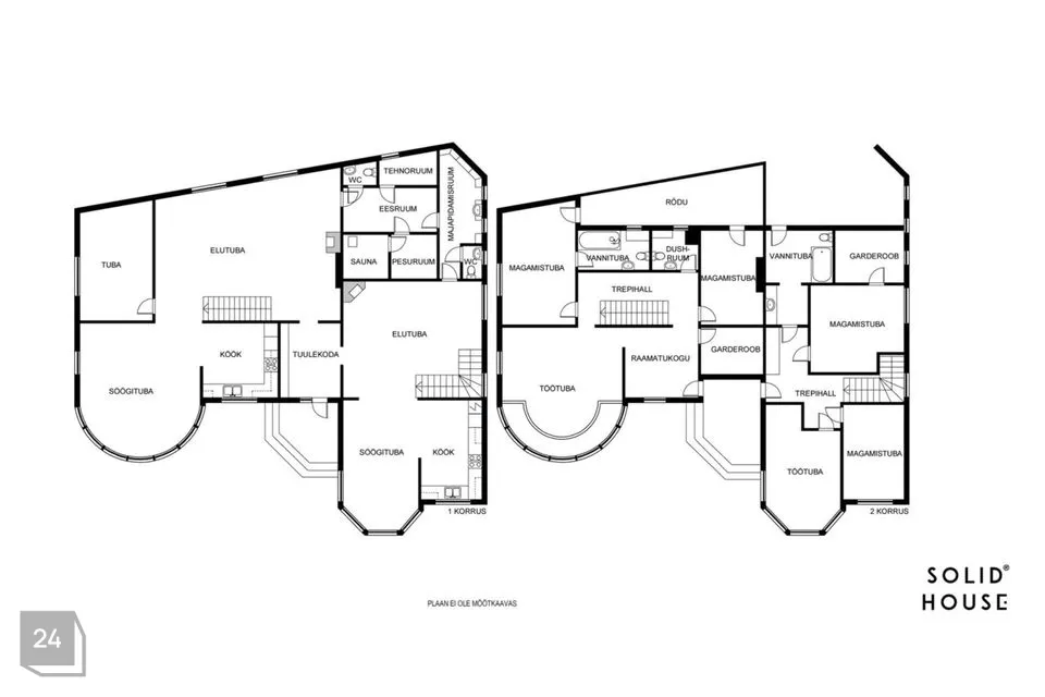
Müüa nutika planeeringuga ruumikas elamu, mis sobib ideaalselt suurele perele või kahele leibkonnale! Elamu on jagatud kaheks eraldi tsooniks – mõlemas eraldi magamistoad, vannitoad, köök ja elutuba. Hoone võimaldab alustada elu ühes osas, samal ajal teist osa oma maitse järgi lõpuni viimistledes.
PEAMISED OMADUSED
• Kogupind: 332 m²
• Valge karbi seisus – osa majast elamiskõlbulik
• 2 eraldi elamismoodulit ühendatud ühise koridori ja saunaalaga.
• 1.osa on 2 korruseline, 4-toaline; köök koos avatud söögi- ja elutoaga, 3 magamistuba, walk-in garderoob, eraldi vannituba wc ja valamuga, ligipääs ühisele saunaalale
• 2.osa on 2 korruseline, 6-toaline; köök koos avatud söögitoaga, 2 eraldi elutuba, 3-4 magamistuba, suur walk-in garderoob, eraldi vannituba ja dušširuum, suur privaatne rõdu ja ligipääs ühisele saunaalale
• Saunaruumid; 2 dušši, puuküttega saun, 2 eraldi wc, majapidamisruum pesu pesemiseks ning eraldi 3,3m2 suurune tehnoruum.
• Kaminavalmidus mõlemas majaosas
KÜTE JA KOMMUNIKATSIOONID
• Tsentraalgaas, gaasiküte. Osaliselt nii põrandkütte/radiaatorid
• Tsentraalne vesi ja kanalisatsioon
• Valvesüsteem ja turvauks
ASUKOHT JA ÜMBRUS
• Maja paikneb tupiktänava lõpus – maksimaalne rahu ja privaatsus
• Peetri alevikus – rahulik piirkond looduskaunis keskkonnas
• Tallinna kesklinnale lähedal, kiire ühendus Vana-Tartu ja Tartu maantee kaudu
• Lasteaed 1 min kaugusel, kauplused 5 min jalutuskäigu kaugusel
• Peetri kool, noortekeskus, perearstikeskus ja sportimisvõimalused kõik mugavalt lähedal
• Väga hea bussi- ja marsruuttaksoühendus
• Peetri Keskus – 7 min, Selver – 15 min jalutuskäigu kaugusel
TÄIENDAV INFO
• Kasutusluba olemas
• Ruumide otstarvet saab kohandada vastavalt vajadusele
• Soovi korral anname kaasa usaldusväärse ehitaja kontaktid
• Hea võimalus kujundada oma unistuste kodu või kahe pere maja
Võta ühendust ja tule vaatama – avasta Peetri kodusoojus ja arenev kogukond!
Peetri alevik, Rae vald
Kivimaja • 332 m² • 2 korrust • Kinnistu
Müüa nutika planeeringuga ruumikas elamu, mis sobib ideaalselt suurele perele või kahele leibkonnale! Elamu on jagatud kaheks eraldi tsooniks – mõlemas eraldi magamistoad, vannitoad, köök ja elutuba. Hoone võimaldab alustada elu ühes osas, samal ajal teist osa oma maitse järgi lõpuni viimistledes.
PEAMISED OMADUSED
• Kogupind: 332 m²
• Valge karbi seisus – osa majast elamiskõlbulik
• 2 eraldi elamismoodulit ühendatud ühise koridori ja saunaalaga.
• 1.osa on 2 korruseline, 4-toaline; köök koos avatud söögi- ja elutoaga, 3 magamistuba, walk-in garderoob, eraldi vannituba wc ja valamuga, ligipääs ühisele saunaalale
• 2.osa on 2 korruseline, 6-toaline; köök koos avatud söögitoaga, 2 eraldi elutuba, 3-4 magamistuba, suur walk-in garderoob, eraldi vannituba ja dušširuum, suur privaatne rõdu ja ligipääs ühisele saunaalale
• Saunaruumid; 2 dušši, puuküttega saun, 2 eraldi wc, majapidamisruum pesu pesemiseks ning eraldi 3,3m2 suurune tehnoruum.
• Kaminavalmidus mõlemas majaosas
KÜTE JA KOMMUNIKATSIOONID
• Tsentraalgaas, gaasiküte. Osaliselt nii põrandkütte/radiaatorid
• Tsentraalne vesi ja kanalisatsioon
• Valvesüsteem ja turvauks
ASUKOHT JA ÜMBRUS
• Maja paikneb tupiktänava lõpus – maksimaalne rahu ja privaatsus
• Peetri alevikus – rahulik piirkond looduskaunis keskkonnas
• Tallinna kesklinnale lähedal, kiire ühendus Vana-Tartu ja Tartu maantee kaudu
• Lasteaed 1 min kaugusel, kauplused 5 min jalutuskäigu kaugusel
• Peetri kool, noortekeskus, perearstikeskus ja sportimisvõimalused kõik mugavalt lähedal
• Väga hea bussi- ja marsruuttaksoühendus
• Peetri Keskus – 7 min, Selver – 15 min jalutuskäigu kaugusel
TÄIENDAV INFO
• Kasutusluba olemas
• Ruumide otstarvet saab kohandada vastavalt vajadusele
• Soovi korral anname kaasa usaldusväärse ehitaja kontaktid
• Hea võimalus kujundada oma unistuste kodu või kahe pere maja
Võta ühendust ja tule vaatama – avasta Peetri kodusoojus ja arenev kogukond!























































