Müüa Põltsamaal Mõisakülas asuv maakodu, mis koosneb kahest kõrvuti asuvast kinnistust, mille pindala kokku on 40320 m².
1. Kinnistu Anni, katastri tunnus 57301:001:0425, pindala 30400 m², millest metsamaa 8230 m². Kinnistul asub 5 hoonet.
2. Kinnistu Kanarbiku, katastri tunnus 57301:001:0574, pindala 9920 m², millest metsamaa 9381 m². 10 aastat tagasi on tehtud metsaraie, mille järel on istutatud ca 3000 kuusetaime.
Anni kinnistul asub elumaja, ait-küün, laut-majandushoone, lauda juurdeehitus ja kõrvalhoone.
Elumaja: üldpind ≈ 175,3 m², lisaks avatud pooleliolev terrass ≈ 15,8 m² ja planeeritud trepi varikatusealune ≈ 5 m². Renoveeritud 2010 a., vundament maakivist (graniit) + betoonvöö, seinad Aeroc plokist, laudvooder ümber. Renoveerimine vajab lõpetamist. Valmis on ca 90%, tsementkivi (punane) katus.
Ait-Küün: üldpind ≈ 92 m², maakivist vundament, ait on palgist, küünis on laudis palk-karkassil, katus - 1/2 eterniit, 1/2 tsingitud profiilplekk (eterniit vajab lähemal ajal asendamist).
Laut-majandushoone: üldpind ≈ 155 m². Maakivi vundament, seinad tuhaplokist, betoonpõrand, eterniitkatus. Koosneb garaažist (koos kanaliga) ≈ 38 m², tööruum-laost ≈ 41 m², saunaruumidest ≈ 15,6 m², sissepääsu esikust ≈ 10,4 m² ja varikatusealusest hoidlast ≈ 50 m².
Lauda juurdeehitus: üldpind ≈ 168 m². Betoonist vundamendi plokid, seinad tuhaplokist, põrand betoonist ja masinate hoidlas killustik, katusekatteks on eterniit ja tsingitud profiilplekk. Laut ≈ 105 m², põllumajandusmasinate hoidla ≈ 63 m².
Kõrvalhoone: üldpind ≈ 62 m². Maakivist vundament, 3 maakivi seina ja üks sein püstpalgist. Katus tsingitud profiilplekist. Seisukord selline, et vajab renoveerimist lähiajal.
Abihooned ja rajatised elumajale lisaks on kokku ≈ 477 m². Kinnistul asuvate hoonete ja rajatiste üldpind kokku ≈ 652,3 m².
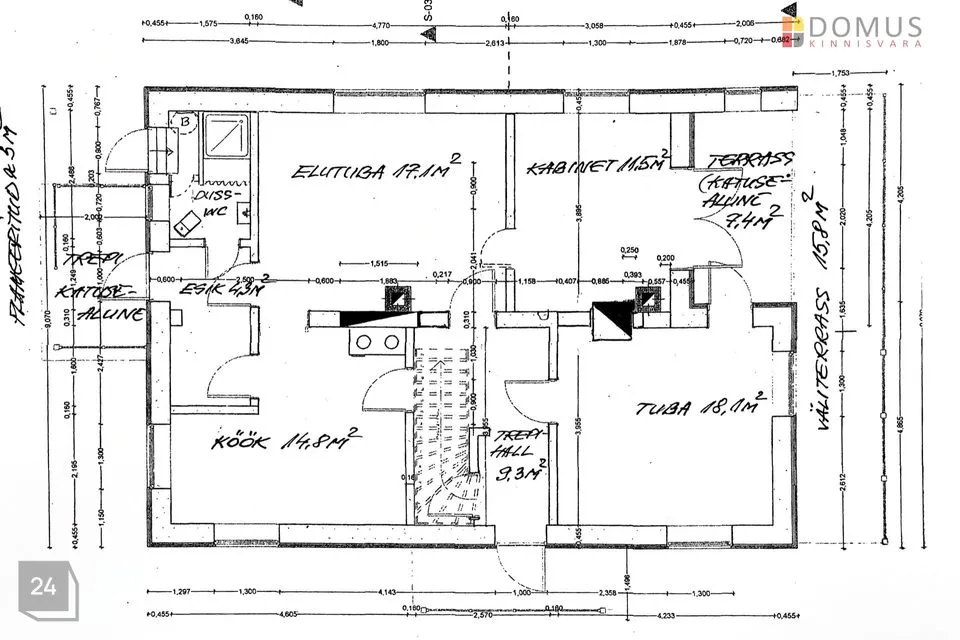
Elamus on kokku 6 tuba, 2 kööki, 2 dušh-WC-d ja muud ruumid ning abiruumid.
Ruumide pindalad
I korrus
Magamistuba - 18,1 m²
Elutuba - 17,1 m²
Kabinet - 11,5 m²
Köök - 14,8 m²
Esik - 4,3 m²
Trepihall - 9,3 m²
Dušh-WC - 3,9 m²
Kokku: 79 m²
Katusalune terrass - 7,4 m²
I korrus kokku: 86,4 m²
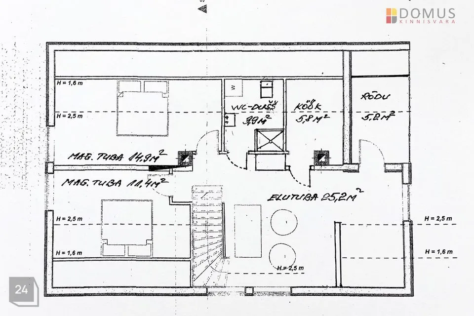
II korrus
Elutuba - 25,2 m²
Magamistuba - 14,9 m²
Magamistuba - 11,4 m²
Köök - 5,8 m²
Dušh-WC - 3,9 m²
Kokku: 61,2 m²
Katusealune rõdu - 5,2 m²
II korrus kokku:
Elamu kokku: 175,3 m²
Lisaks veel kelder 22,5 m² ja I korruse väliterrass 15,8 m².
Vundamendi ja I korruse põrandakonstruktsioon: Vundamendile on valatud R/B vöö 40x10cm AEROC plokk seinte alla. Põranda alune tühjendatud ja paigaldatud killustik - liiv 60cm - killustik (tihendatud), 10 cm põrandapenoplasti ja valatud 12 cm terasvõrguga betooni. Ligikaudu 12 m² on ka uus keldrilagi metalltaladel.
Välisseinad: Viimistletud HK Lasuriga, läbikumava värviga (hele tamm) ja nurgaliistud, servaliistud, aknaliistud ja tuulekastid on oranžid.
Põrandad: I korrusel on keraamiline plaat ja laminaatparkett. II korrusel osaliselt naturaalne laudparkett ja laminaatparkett.
Seinad: I korrusel on viimistletud toonvärvidega, II korrusel toonitud sisevoodrilaud.
Laed: viimistletud toonitud OSB plaadiga. I korruse tubades paigaldus ripplagedena süvistatavate valgustitega. Abiruumides laekinnitusega valgustid.
Uksed: I korrusel lamineeritud (hele tamm) siseuksed, II korrusel naturaalsest puidust tahveluksed. I ja II korruse välis ja rõduuksed topeltustega (sisemine ja välimine uks) - kokku 4. I korrusel terrassiuks mõõtmetega 2x2,1 m on väärispuidust 2 poolne klaaspakettuks.
Aknad: Lihtsad, toonitud (oranž) talupoja tüüpi, riivide ja kremoonidega tuulutamist võimaldavad puitaknad.
Katus: punane tsementkivi, kõrge kaldega.
Küte: I korrusel korralik puupliit soojamüüriga ja Tulikivi ahi. Paigaldatud on ka õhk/õhk tüüpi soojuspump-konditsioneer. I korruse kütteseadmed kütavad -10 kuni -15 kraadi juures ka II korruse ruumid ≈ 18 C juurde. I korrusel on ka 3 kohas elektriline põrandaküte.
II korrusel elektriradiaatoritega lisaküte ja värskelt on paigaldatud ka õhk/õhk tüüpi soojuspump-konditsioneer.
Ventilatsioon: Ventileerimiseks on paigaldatud välisseintesse värske õhu sisselaskmiseks reguleeritavad freshklapid ja väljuva õhu väljaviigu plafoonid I korruse kõikide tubade lagedes. Duširuumid-WC-d on sundventilatsiooniga.
Elektri võimsus: 32A, pinge 3x380V. Alajaam asub kinnistul.
Veevarustus: 24 m sügav kaev survehüdrofooriga, mis asub keldrikorrusel. Reservkaev asub abihoone sissepääsu esikus. Soe vesi valmib elektriboileriga.
Kanalisatsioon: septik + imbväljak. Tühjendustsükli pikendamiseks oleks vajalik septik asendada suuremaga.
Internet ja TV: läbi õhu
Kinnistul asub veel ka tünnisaun, koeraaedik, väike tiigike ja varjualune grillimiskoht. Maja taga kasvavad õunapuud.
Kinnistule viib 4 m laiune 800 m väga heas korras kruusatee mis on ehitatud aastatel 1988-**** a (400 x 12T täidet).
Lähimad toidupoed, söögikohad, koolid ja lasteaiad asuvad Põltsamaal 8,5 km kaugusel mis on umbes 9-10 minutit autosõitu.
Kui tekkis huvi koha peal ka kõik üle vaadata, anna julgelt märku ja lepime sobiva aja kokku. Aitan müüa ka teie olemasoleva kodu ja pakun pankade lepingutasude soodustusi ostu finantseerimise korraldamisel. Küsimuste korral võta kindlasti ühendust.
Viljo Pettinen
Kutseline maakler / Kinnisvarakonsultant
Kinnisvaramaakleri reg.nr: KMR 58041
Kutsetunnistus: 203403
Tel: +372 **** 939
e-post: ***@***.ee
Müü või hinda meiega! Saada päring ***@***.ee ja teeme Sulle hea pakkumise.
1. Kinnistu Anni, katastri tunnus 57301:001:0425, pindala 30400 m², millest metsamaa 8230 m². Kinnistul asub 5 hoonet.
2. Kinnistu Kanarbiku, katastri tunnus 57301:001:0574, pindala 9920 m², millest metsamaa 9381 m². 10 aastat tagasi on tehtud metsaraie, mille järel on istutatud ca 3000 kuusetaime.
Anni kinnistul asub elumaja, ait-küün, laut-majandushoone, lauda juurdeehitus ja kõrvalhoone.
Elumaja: üldpind ≈ 175,3 m², lisaks avatud pooleliolev terrass ≈ 15,8 m² ja planeeritud trepi varikatusealune ≈ 5 m². Renoveeritud 2010 a., vundament maakivist (graniit) + betoonvöö, seinad Aeroc plokist, laudvooder ümber. Renoveerimine vajab lõpetamist. Valmis on ca 90%, tsementkivi (punane) katus.
Ait-Küün: üldpind ≈ 92 m², maakivist vundament, ait on palgist, küünis on laudis palk-karkassil, katus - 1/2 eterniit, 1/2 tsingitud profiilplekk (eterniit vajab lähemal ajal asendamist).
Laut-majandushoone: üldpind ≈ 155 m². Maakivi vundament, seinad tuhaplokist, betoonpõrand, eterniitkatus. Koosneb garaažist (koos kanaliga) ≈ 38 m², tööruum-laost ≈ 41 m², saunaruumidest ≈ 15,6 m², sissepääsu esikust ≈ 10,4 m² ja varikatusealusest hoidlast ≈ 50 m².
Lauda juurdeehitus: üldpind ≈ 168 m². Betoonist vundamendi plokid, seinad tuhaplokist, põrand betoonist ja masinate hoidlas killustik, katusekatteks on eterniit ja tsingitud profiilplekk. Laut ≈ 105 m², põllumajandusmasinate hoidla ≈ 63 m².
Kõrvalhoone: üldpind ≈ 62 m². Maakivist vundament, 3 maakivi seina ja üks sein püstpalgist. Katus tsingitud profiilplekist. Seisukord selline, et vajab renoveerimist lähiajal.
Abihooned ja rajatised elumajale lisaks on kokku ≈ 477 m². Kinnistul asuvate hoonete ja rajatiste üldpind kokku ≈ 652,3 m².
Elamus on kokku 6 tuba, 2 kööki, 2 dušh-WC-d ja muud ruumid ning abiruumid.
Ruumide pindalad
I korrus
Magamistuba - 18,1 m²
Elutuba - 17,1 m²
Kabinet - 11,5 m²
Köök - 14,8 m²
Esik - 4,3 m²
Trepihall - 9,3 m²
Dušh-WC - 3,9 m²
Kokku: 79 m²
Katusalune terrass - 7,4 m²
I korrus kokku: 86,4 m²
II korrus
Elutuba - 25,2 m²
Magamistuba - 14,9 m²
Magamistuba - 11,4 m²
Köök - 5,8 m²
Dušh-WC - 3,9 m²
Kokku: 61,2 m²
Katusealune rõdu - 5,2 m²
II korrus kokku:
Elamu kokku: 175,3 m²
Lisaks veel kelder 22,5 m² ja I korruse väliterrass 15,8 m².
Vundamendi ja I korruse põrandakonstruktsioon: Vundamendile on valatud R/B vöö 40x10cm AEROC plokk seinte alla. Põranda alune tühjendatud ja paigaldatud killustik - liiv 60cm - killustik (tihendatud), 10 cm põrandapenoplasti ja valatud 12 cm terasvõrguga betooni. Ligikaudu 12 m² on ka uus keldrilagi metalltaladel.
Välisseinad: Viimistletud HK Lasuriga, läbikumava värviga (hele tamm) ja nurgaliistud, servaliistud, aknaliistud ja tuulekastid on oranžid.
Põrandad: I korrusel on keraamiline plaat ja laminaatparkett. II korrusel osaliselt naturaalne laudparkett ja laminaatparkett.
Seinad: I korrusel on viimistletud toonvärvidega, II korrusel toonitud sisevoodrilaud.
Laed: viimistletud toonitud OSB plaadiga. I korruse tubades paigaldus ripplagedena süvistatavate valgustitega. Abiruumides laekinnitusega valgustid.
Uksed: I korrusel lamineeritud (hele tamm) siseuksed, II korrusel naturaalsest puidust tahveluksed. I ja II korruse välis ja rõduuksed topeltustega (sisemine ja välimine uks) - kokku 4. I korrusel terrassiuks mõõtmetega 2x2,1 m on väärispuidust 2 poolne klaaspakettuks.
Aknad: Lihtsad, toonitud (oranž) talupoja tüüpi, riivide ja kremoonidega tuulutamist võimaldavad puitaknad.
Katus: punane tsementkivi, kõrge kaldega.
Küte: I korrusel korralik puupliit soojamüüriga ja Tulikivi ahi. Paigaldatud on ka õhk/õhk tüüpi soojuspump-konditsioneer. I korruse kütteseadmed kütavad -10 kuni -15 kraadi juures ka II korruse ruumid ≈ 18 C juurde. I korrusel on ka 3 kohas elektriline põrandaküte.
II korrusel elektriradiaatoritega lisaküte ja värskelt on paigaldatud ka õhk/õhk tüüpi soojuspump-konditsioneer.
Ventilatsioon: Ventileerimiseks on paigaldatud välisseintesse värske õhu sisselaskmiseks reguleeritavad freshklapid ja väljuva õhu väljaviigu plafoonid I korruse kõikide tubade lagedes. Duširuumid-WC-d on sundventilatsiooniga.
Elektri võimsus: 32A, pinge 3x380V. Alajaam asub kinnistul.
Veevarustus: 24 m sügav kaev survehüdrofooriga, mis asub keldrikorrusel. Reservkaev asub abihoone sissepääsu esikus. Soe vesi valmib elektriboileriga.
Kanalisatsioon: septik + imbväljak. Tühjendustsükli pikendamiseks oleks vajalik septik asendada suuremaga.
Internet ja TV: läbi õhu
Kinnistul asub veel ka tünnisaun, koeraaedik, väike tiigike ja varjualune grillimiskoht. Maja taga kasvavad õunapuud.
Kinnistule viib 4 m laiune 800 m väga heas korras kruusatee mis on ehitatud aastatel 1988-**** a (400 x 12T täidet).
Lähimad toidupoed, söögikohad, koolid ja lasteaiad asuvad Põltsamaal 8,5 km kaugusel mis on umbes 9-10 minutit autosõitu.
Kui tekkis huvi koha peal ka kõik üle vaadata, anna julgelt märku ja lepime sobiva aja kokku. Aitan müüa ka teie olemasoleva kodu ja pakun pankade lepingutasude soodustusi ostu finantseerimise korraldamisel. Küsimuste korral võta kindlasti ühendust.
Viljo Pettinen
Kutseline maakler / Kinnisvarakonsultant
Kinnisvaramaakleri reg.nr: KMR 58041
Kutsetunnistus: 203403
Tel: +372 **** 939
e-post: ***@***.ee
Müü või hinda meiega! Saada päring ***@***.ee ja teeme Sulle hea pakkumise.






































































