Müüa ajalooline kahekorruseline püstpalkmaja – suurepärane investeerimisvõimalus!
Tartu 6 Võhma linn
MAJA
Müüa 1938. aastal ehitatud ajalooline kahekorruseline püstpalkmaja, mis on telliskivivoodriga ja üle krohvitud. Maja üldpind on 346,3 m² ja krundi suurus 1604 m². Maja koosneb kuuest korteriomandist ja pakub mitmeid võimalusi nii elamiseks kui investeerimiseks.
Maja omadused:
Kinnistul parkimine – oma hoovis on piisavalt ruumi parkimiseks.
Kaks sissepääsu – üks tänava poolt, teine hoovist, mis annab paindlikkust korterite kasutamisel ja jagamisel.
Korterite renoveerimisvõimalus – kortermaja vajab uut hakkajat omanikku, kes viiks lõpule alustatud remonditööd.
Väline fassaad ja sisekoridorid ootavad korrastamist, kuid olemas on juba mitmed olulised uuendused.
Pakettaknad – kõik aknad on vahetatud välja (2x pakettaknad), mis tagavad parema soojapidavuse.
Aluspõrandad – osades korterites on juba ehitatud uued aluspõrandad.
Töökorras vesi ja kanalisatsioon – kortermajas on sisse viidud vesi ja kanalisatsioon.
Küttesüsteem – maja ei ole ühendatud keskse küttesüsteemiga, kuid igas korteris on olemas pottahjud ja köökides pliidid (enamus korterites on need töökorras ja kasutusel). Olemas kehtiv korstnapühikimisakt, kust näeb küttekollete seisukorra kohta infot.
Korterite üürimisvõimalus – hetkel on neli korterit välja üüritud tähtajatutel lepingutel, mille lõpetamiseks on vastavalt võlaõigusseadusele ette nähtud kolm kuud etteteavitust.
Korterite jaotumine:
Esimesel korrusel:
Korter nr 1 – osaliselt renoveeritud, välja üüritud. Korteris on veega WC ja dušš. Korteril on kaks sissepääsu, mis annab võimaluse muuta korteri ülesehitus kaheks 2-toaliseks korteriks.
Korter nr 2 – vajab täielikku renoveerimist. Korteri põrandad vajavad taastamist, kuid aknad on vahetatud. Ka siin on kaks sissepääsu ja võimalus korter jagada kaheks 2-toaliseks korteriks.
Teisel korrusel:
Teisel korrusel asub neli korterit. Kahes korteris veega WC ja pesemisvõimalus, kahes korteris on dušš väljaehitamata, WC olemas.
Üldine info:
Kõikide korterite juurde kuulub kuuriboksi kasutamise õigus, kus saab hoida küttepuid ja muid vajalikke tarvikuid.
Kortermaja on ideaalne projekt, mis pakub suurepäraseid võimalusi nii renoveerimiseks kui üürimiseks.
Huvilised saavad muuta ruumide jaotust, suurendades korterite arvu või viies lõpule osaliselt alustatud renoveerimistööd.
Maja asukoht pakub rahulikku elukeskkonda, samas olles piisavalt lähedal linna infrastruktuuridele ja teenustele.
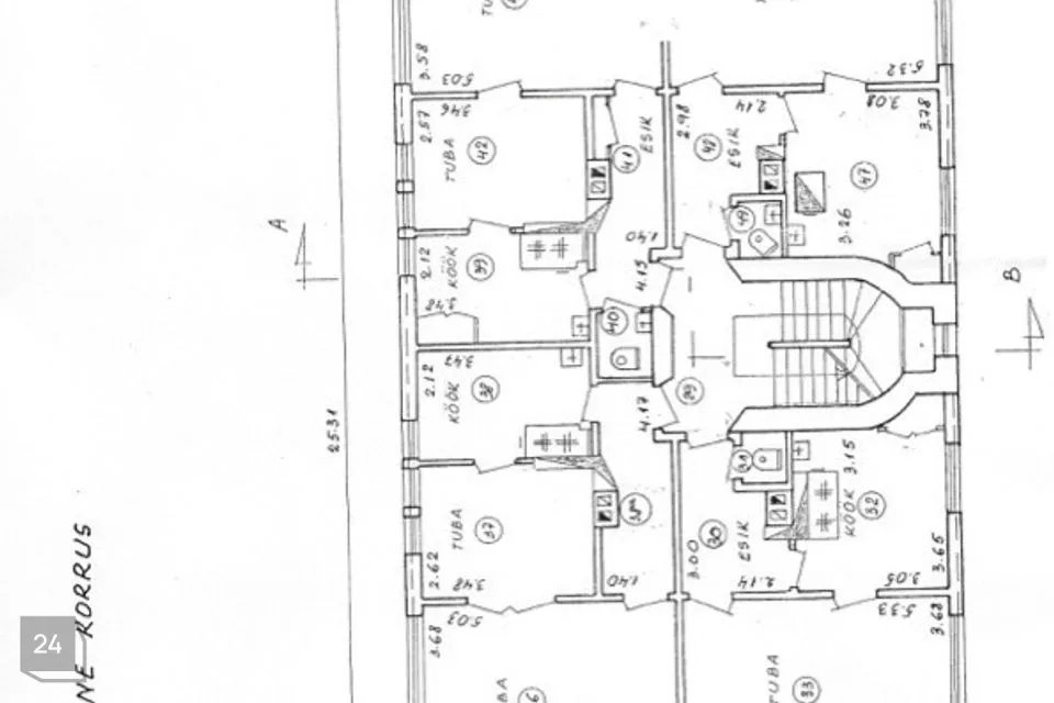
KORTERITE SUURUSED
Esimene korrus:
Korter 1: 106.8 m² (4-toaline)
Korter 2: 107.2 m² (4-toaline)
Teine korrus:
Korter 3: 51.7 m² (2-toaline)
Korter 4: 55.2 m² (3-toaline)
Korter 5: 56.1 m² (3-toaline)
Korter 6: 52.9 m² (2-toaline)
TEHNOSÜSTEEMID
Elektrivõimsus: 3 x 20 amprit
Lokaalne puurkaev - vesi majja toodud
Lokaalne kanalisatsioon - majja toodud
Ahjuküte - tubades eestiaegsed pottahjud ja köökides puupliidid.
ASUKOHT
Võhma asub Põhja-Sakala vallas Viljandimaal.
Hea bussiühendus Viljandiga.
Raudteejaam asub maja kõrval.
VAHEMAAD
Rongiga Tallinna tund ja 30min.
Tallinn 116km
Tartu 85km
Pärnu 80km
Viljandi 30 km
Türi 30 km
ÜMBRUSKOND
Võhma on väike linn, vahetus läheduses asub kõik eluks vajalik: toidu- ja ehituspoed, spordihoone, staadion, autoteenindus, perearstikeskus, hambaarst, kohvik, juuksur, raamatukogu, postkontor, seltsimaja, juuksurisalong, põhikool, noortekeskus, laste mänguväljak, raudteejaam, bussijaam ja palju muud.
NB! Kinnistuga tutvumiseks palun lepi minuga aeg kokku. Iseseisvalt võõral kinnistul viibimine on keelatud!
Astu oma unistustele vastu juba täna!
Helista mulle palun ette ja lepime kokku sobiva aja!
Pangad pakuvad Domus Kinnisvara klientidele eluasemelaenu lepingutasu soodustusi. Küsi lisainfot Domus Kinnisvara maaklerilt või hindajalt.
Müü ja hinda meiega! Teeme kinnisvara müügi Sinu jaoks sujuvaks ja pingevabaks.
Tartu 6 Võhma linn
MAJA
Müüa 1938. aastal ehitatud ajalooline kahekorruseline püstpalkmaja, mis on telliskivivoodriga ja üle krohvitud. Maja üldpind on 346,3 m² ja krundi suurus 1604 m². Maja koosneb kuuest korteriomandist ja pakub mitmeid võimalusi nii elamiseks kui investeerimiseks.
Maja omadused:
Kinnistul parkimine – oma hoovis on piisavalt ruumi parkimiseks.
Kaks sissepääsu – üks tänava poolt, teine hoovist, mis annab paindlikkust korterite kasutamisel ja jagamisel.
Korterite renoveerimisvõimalus – kortermaja vajab uut hakkajat omanikku, kes viiks lõpule alustatud remonditööd.
Väline fassaad ja sisekoridorid ootavad korrastamist, kuid olemas on juba mitmed olulised uuendused.
Pakettaknad – kõik aknad on vahetatud välja (2x pakettaknad), mis tagavad parema soojapidavuse.
Aluspõrandad – osades korterites on juba ehitatud uued aluspõrandad.
Töökorras vesi ja kanalisatsioon – kortermajas on sisse viidud vesi ja kanalisatsioon.
Küttesüsteem – maja ei ole ühendatud keskse küttesüsteemiga, kuid igas korteris on olemas pottahjud ja köökides pliidid (enamus korterites on need töökorras ja kasutusel). Olemas kehtiv korstnapühikimisakt, kust näeb küttekollete seisukorra kohta infot.
Korterite üürimisvõimalus – hetkel on neli korterit välja üüritud tähtajatutel lepingutel, mille lõpetamiseks on vastavalt võlaõigusseadusele ette nähtud kolm kuud etteteavitust.
Korterite jaotumine:
Esimesel korrusel:
Korter nr 1 – osaliselt renoveeritud, välja üüritud. Korteris on veega WC ja dušš. Korteril on kaks sissepääsu, mis annab võimaluse muuta korteri ülesehitus kaheks 2-toaliseks korteriks.
Korter nr 2 – vajab täielikku renoveerimist. Korteri põrandad vajavad taastamist, kuid aknad on vahetatud. Ka siin on kaks sissepääsu ja võimalus korter jagada kaheks 2-toaliseks korteriks.
Teisel korrusel:
Teisel korrusel asub neli korterit. Kahes korteris veega WC ja pesemisvõimalus, kahes korteris on dušš väljaehitamata, WC olemas.
Üldine info:
Kõikide korterite juurde kuulub kuuriboksi kasutamise õigus, kus saab hoida küttepuid ja muid vajalikke tarvikuid.
Kortermaja on ideaalne projekt, mis pakub suurepäraseid võimalusi nii renoveerimiseks kui üürimiseks.
Huvilised saavad muuta ruumide jaotust, suurendades korterite arvu või viies lõpule osaliselt alustatud renoveerimistööd.
Maja asukoht pakub rahulikku elukeskkonda, samas olles piisavalt lähedal linna infrastruktuuridele ja teenustele.
KORTERITE SUURUSED
Esimene korrus:
Korter 1: 106.8 m² (4-toaline)
Korter 2: 107.2 m² (4-toaline)
Teine korrus:
Korter 3: 51.7 m² (2-toaline)
Korter 4: 55.2 m² (3-toaline)
Korter 5: 56.1 m² (3-toaline)
Korter 6: 52.9 m² (2-toaline)
TEHNOSÜSTEEMID
Elektrivõimsus: 3 x 20 amprit
Lokaalne puurkaev - vesi majja toodud
Lokaalne kanalisatsioon - majja toodud
Ahjuküte - tubades eestiaegsed pottahjud ja köökides puupliidid.
ASUKOHT
Võhma asub Põhja-Sakala vallas Viljandimaal.
Hea bussiühendus Viljandiga.
Raudteejaam asub maja kõrval.
VAHEMAAD
Rongiga Tallinna tund ja 30min.
Tallinn 116km
Tartu 85km
Pärnu 80km
Viljandi 30 km
Türi 30 km
ÜMBRUSKOND
Võhma on väike linn, vahetus läheduses asub kõik eluks vajalik: toidu- ja ehituspoed, spordihoone, staadion, autoteenindus, perearstikeskus, hambaarst, kohvik, juuksur, raamatukogu, postkontor, seltsimaja, juuksurisalong, põhikool, noortekeskus, laste mänguväljak, raudteejaam, bussijaam ja palju muud.
NB! Kinnistuga tutvumiseks palun lepi minuga aeg kokku. Iseseisvalt võõral kinnistul viibimine on keelatud!
Astu oma unistustele vastu juba täna!
Helista mulle palun ette ja lepime kokku sobiva aja!
Pangad pakuvad Domus Kinnisvara klientidele eluasemelaenu lepingutasu soodustusi. Küsi lisainfot Domus Kinnisvara maaklerilt või hindajalt.
Müü ja hinda meiega! Teeme kinnisvara müügi Sinu jaoks sujuvaks ja pingevabaks.



























































