Müügile on tulnud harukordne võimalus soetada kinnisvara Pärnu armastatuimas piirkonnas - rannarajoonis. See ainulaadne maja asub vaikses ja rohelises piirkonnas, samas vaid jalutuskäigu kaugusel rannast, parkidest ning südalinna melust. Ideaalne valik neile, kes hindavad rahulikku ja turvalist elukeskkonda, olles samal ajal kõigest sammu kaugusel Pärnu parimatest kohvikutest, restoranidest ja kultuurisündmustest.
Pärna 1 on ajalooline puitvilla, millel on mitmekesine ajalugu. Ajalugu ulatub 1895. aastasse, mil maalermeister Juhan Villems soetas krundi, millele 1896. aastal ehitati algselt ühekorruseline puidust elamu verandaga. Elamu paikneb tänavajoonest väikse tagasiastega, treppide võrra.
Krundi tänavapoolsel piiril oli juba olemas piklik abihoone, mis ehitati hiljem ümber elamuks, praegune Pärna 3 elamu.
1899. aastal muudeti Pärna 1 hoone kirdenurgas kahekorruseliseks. Esialgu oli hoones kolm korterit. Veranda lammutati enne 1958. a ning hiljem on hoonesse lisatud uusi ahjusid ja ümber ehitatud algupäraseid ahjusid.
1980. aastatel tehti hoones kapitaalremont, mille käigus vahetati aknad ja siseuksed, ka esimese korruse põrandad, samuti laiendati hooviküljel trepikoda. Välisfassaadi palju ei muudetud.
Krundist eraldati hiljem kirdepoolne osa ja see hoonestati Ehitisregistri andmetel 2012. aastal kortermajaga.
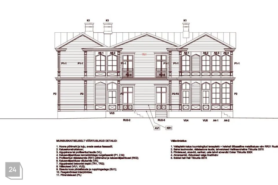
Pärna 1 hoone on väärtuslik näide kuurordi eeslinna puitarhitektuurist.
Hetkel puitvillas elanikke ei ole. Hoone tuleks tervikuna renoveerida. Olemas on kehtiv renoveerimisprojekt, mis on hoolikalt planeeritud, et säilitada hoone ajalooline väärtus ning pakkuda kaasaegseid elamistingimusi. Pärna 1 hoonesse on planeeritud 6 korterit, kinnistule 6 kuuriboksi ja 4 parkimiskohta.
Hoone renoveerimise ja juurdeehituse põhiprojekt on koostatud, arvestades muinsuskaitse eritingimusi.
Hoonele on kavandatud kaks korrust, kus esimesel asub 194,3 m2 elamispinda ja teisel korrusel 162,2 m2. Hoovipoolsed ühekorruselised eeskojad on projekteeritud kahekorruseliseks ja kavandatud neile kuurortarhitektuurist inspireeritud ja 1899. aasta projektist lähtuvad verandaaknad.
Lisaks on planeeritud tänavapoolsele küljele 2. korruse akende ette ajaloolises stiilis 8 m2 rõdu. Fassaadidel on kavas taastada 1985. aasta projekti eeskujul dekoratiivsed ehisdetailid. Hooviküljele on kavandatud 1. korrusele 4 terrassi, 43,4 m2.
Kinnistu suurus on 1023 m2, müüdav osa kinnistust 560 m2.
Sihtotstarve elamumaa 100%
Kasutusotstarve 11222 Muu kolme või enama korteriga elamu
Elamu netopind kokku on 356,5 m2 .
Elamu olemasolev ehitisealune pind 235 m2
Ehitisealused pinnad säilivad olemasolevad.
Planeeritud on pealisehitised ühekorruselistele hoonemahtudele hoovipoolses osas.
Säilivad olemasolevad:
Elamu 1 ehitisealune pind 235,0 m2
Elamu 2 ehitisealune pind 94,0 m2
Abihoone 3 (kuur) ehitisealune pind 39,0 m2
Abihoone 4 (pesuköök) ehitisealune pind 19 m2
Ehitisealune pind kokku 387 m2
Täisehitus 38%
Haljastus 331 m2 ehk 32%
Elamu olemasolev maht 1270 m3 EHR-i andmetel ilma pööningu ja soklita
Elamu olemasolev tegelik maht 1270 m3 + sokkel 220 m3 + pööning 160 m3 = 1650 m3
Lubatud juurdeehitus 33 % mahust 544 m3 ehk kokku lubatud maht 1650 + 544 = 2194 m3
Projekteeritud maht 1650 + 185=1830 m3
Kõrgus 8,9m ehk 12,00 abs.h
Laius 15,6m
Pikkus 18,5m
Kaugkütte liitumispunkt asub Pärna 1 ja Pärna 3 maja vahel.
Vee- ja kanalisatsioonileping Pärnu Veega on olemas.
Elektrileviga on liitumine, peakaitse 63A.
Ehitusluba on olemas.
Kinnistule seatakse notariaalne kasutuskord.
Projekti dokumentatsioon saadaval e-posti teel - küsi julgelt lisainfot ja tule tutvuma!
Pärna 1 on ajalooline puitvilla, millel on mitmekesine ajalugu. Ajalugu ulatub 1895. aastasse, mil maalermeister Juhan Villems soetas krundi, millele 1896. aastal ehitati algselt ühekorruseline puidust elamu verandaga. Elamu paikneb tänavajoonest väikse tagasiastega, treppide võrra.
Krundi tänavapoolsel piiril oli juba olemas piklik abihoone, mis ehitati hiljem ümber elamuks, praegune Pärna 3 elamu.
1899. aastal muudeti Pärna 1 hoone kirdenurgas kahekorruseliseks. Esialgu oli hoones kolm korterit. Veranda lammutati enne 1958. a ning hiljem on hoonesse lisatud uusi ahjusid ja ümber ehitatud algupäraseid ahjusid.
1980. aastatel tehti hoones kapitaalremont, mille käigus vahetati aknad ja siseuksed, ka esimese korruse põrandad, samuti laiendati hooviküljel trepikoda. Välisfassaadi palju ei muudetud.
Krundist eraldati hiljem kirdepoolne osa ja see hoonestati Ehitisregistri andmetel 2012. aastal kortermajaga.
Pärna 1 hoone on väärtuslik näide kuurordi eeslinna puitarhitektuurist.
Hetkel puitvillas elanikke ei ole. Hoone tuleks tervikuna renoveerida. Olemas on kehtiv renoveerimisprojekt, mis on hoolikalt planeeritud, et säilitada hoone ajalooline väärtus ning pakkuda kaasaegseid elamistingimusi. Pärna 1 hoonesse on planeeritud 6 korterit, kinnistule 6 kuuriboksi ja 4 parkimiskohta.
Hoone renoveerimise ja juurdeehituse põhiprojekt on koostatud, arvestades muinsuskaitse eritingimusi.
Hoonele on kavandatud kaks korrust, kus esimesel asub 194,3 m2 elamispinda ja teisel korrusel 162,2 m2. Hoovipoolsed ühekorruselised eeskojad on projekteeritud kahekorruseliseks ja kavandatud neile kuurortarhitektuurist inspireeritud ja 1899. aasta projektist lähtuvad verandaaknad.
Lisaks on planeeritud tänavapoolsele küljele 2. korruse akende ette ajaloolises stiilis 8 m2 rõdu. Fassaadidel on kavas taastada 1985. aasta projekti eeskujul dekoratiivsed ehisdetailid. Hooviküljele on kavandatud 1. korrusele 4 terrassi, 43,4 m2.
Kinnistu suurus on 1023 m2, müüdav osa kinnistust 560 m2.
Sihtotstarve elamumaa 100%
Kasutusotstarve 11222 Muu kolme või enama korteriga elamu
Elamu netopind kokku on 356,5 m2 .
Elamu olemasolev ehitisealune pind 235 m2
Ehitisealused pinnad säilivad olemasolevad.
Planeeritud on pealisehitised ühekorruselistele hoonemahtudele hoovipoolses osas.
Säilivad olemasolevad:
Elamu 1 ehitisealune pind 235,0 m2
Elamu 2 ehitisealune pind 94,0 m2
Abihoone 3 (kuur) ehitisealune pind 39,0 m2
Abihoone 4 (pesuköök) ehitisealune pind 19 m2
Ehitisealune pind kokku 387 m2
Täisehitus 38%
Haljastus 331 m2 ehk 32%
Elamu olemasolev maht 1270 m3 EHR-i andmetel ilma pööningu ja soklita
Elamu olemasolev tegelik maht 1270 m3 + sokkel 220 m3 + pööning 160 m3 = 1650 m3
Lubatud juurdeehitus 33 % mahust 544 m3 ehk kokku lubatud maht 1650 + 544 = 2194 m3
Projekteeritud maht 1650 + 185=1830 m3
Kõrgus 8,9m ehk 12,00 abs.h
Laius 15,6m
Pikkus 18,5m
Kaugkütte liitumispunkt asub Pärna 1 ja Pärna 3 maja vahel.
Vee- ja kanalisatsioonileping Pärnu Veega on olemas.
Elektrileviga on liitumine, peakaitse 63A.
Ehitusluba on olemas.
Kinnistule seatakse notariaalne kasutuskord.
Projekti dokumentatsioon saadaval e-posti teel - küsi julgelt lisainfot ja tule tutvuma!














































