Äärelinn on lastega peredele alati suurepärane valik – siin on ootel rikkalik maasikapeenar, naabruskonnas palju uusi sõpru, turvaline elurajoon ja ikkagi oma maja!
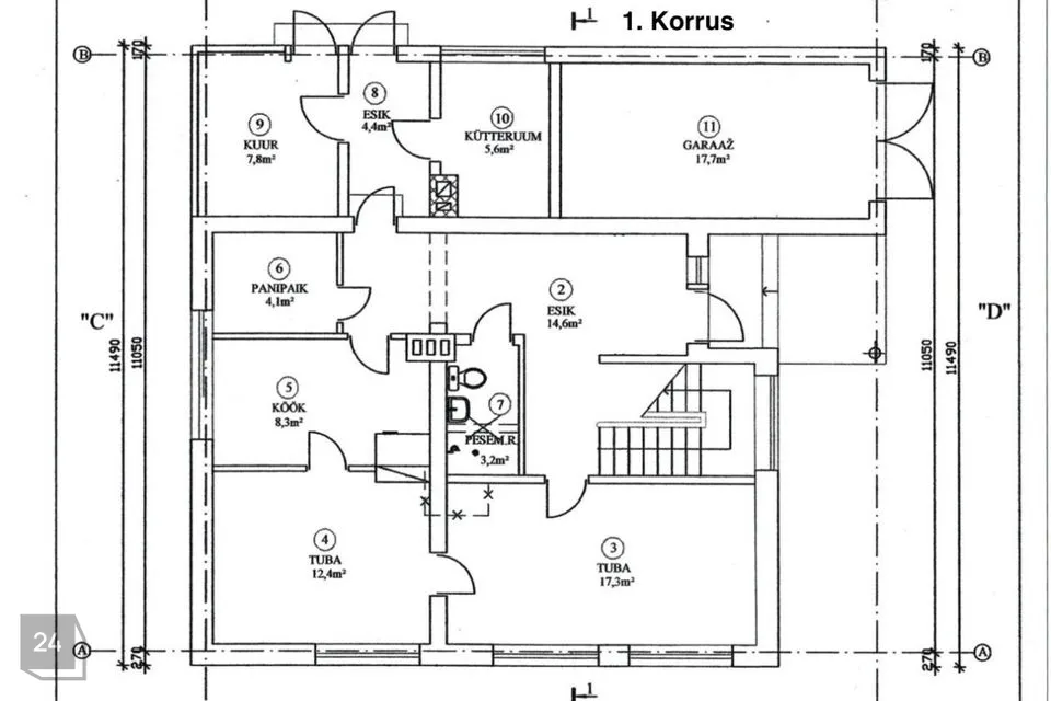
Hetkel on kodu mugandatud sobilikuks kahele perele. Esimesel korrusel on ühine sissepääs, kust siis edasi “oma” valdustesse: 1. korrusel asuvad esik, duširuum, sahver, köök, kaks tuba ja garaaž ning katlaruum.
Teisel korrusel on samuti köök, duširuum, avatud mängutuba, lausa 5 magamistuba ja juurdepääs rõdule.
Katus ja aknad on vahetatud, küttesüsteem uuendatud. Saate terve maja soojaks keskküttel puitkatlaga ning ka radiaatorid on vahetatud. Fassaad on samuti korda tehtud.
Jah, maja duširuumid tahavad uuendamist ja põrandad “laulavad”, kuid üldjoontes on tegu koli-kohe-sisse-majaga. Valgust on palju ja kui ruumid oskuslikult planeerida, saaks suurepärase ning moodsa kodu!
Lähedal asuvad lasteaiad ja kergliiklusteed ning rand on vaid jalutuskäigu kaugusel.
Ahjaa, isegi kasutusluba on olemas!
Hetkel on kodu mugandatud sobilikuks kahele perele. Esimesel korrusel on ühine sissepääs, kust siis edasi “oma” valdustesse: 1. korrusel asuvad esik, duširuum, sahver, köök, kaks tuba ja garaaž ning katlaruum.
Teisel korrusel on samuti köök, duširuum, avatud mängutuba, lausa 5 magamistuba ja juurdepääs rõdule.
Katus ja aknad on vahetatud, küttesüsteem uuendatud. Saate terve maja soojaks keskküttel puitkatlaga ning ka radiaatorid on vahetatud. Fassaad on samuti korda tehtud.
Jah, maja duširuumid tahavad uuendamist ja põrandad “laulavad”, kuid üldjoontes on tegu koli-kohe-sisse-majaga. Valgust on palju ja kui ruumid oskuslikult planeerida, saaks suurepärase ning moodsa kodu!
Lähedal asuvad lasteaiad ja kergliiklusteed ning rand on vaid jalutuskäigu kaugusel.
Ahjaa, isegi kasutusluba on olemas!

































