Rõõm on teatada, et müügipakkumiste hulka on lisandunud ridaelamukodud Reiu küla hinnatud elurajoonis, mida ümbritsevad elujõus metsa-alad, Reiu jõgi ning Pärnu laht.
Looduskaunis elupiirkond sobib koduotsijale, kes hindab vaikust linnulaulu taustal, aga samas soovib omada ka häid naabreid ja vajadusel vähese ajaga linnamelusse suunduda. Pakkumine sobib perele, kes ei taha võtta kohustust üksikelamu ja kinnistu peremehena, kuid siiski unistavad oma terrassist ja õuealast. Ridaelamu kinnistut ümbritsevad munitsipaalomandis metsamaad, ei saa olema üllatav, kui kitseke hommikul terrassil piilub või sügisel ei jaksa kõiki metsaande koju tuua. Jõgi vaid 400 m kaugusel, mereni otsetee 1,8 km. Kokkuhoidva kogukonna poolt on rajatud külaplats ja Tõlla mängulinnak lastele paikneb siinsamas tänavanurgal, golfisõltlased peavad vaid üle maantee minema ning Lottemaa Teemapark 5 minuti autosõidu kaugusel.
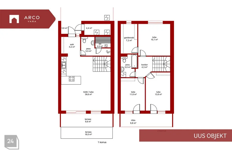
14 korteriga Bauroc konstruktsioonil raudbetoon vahelaega hoone on arhitektuurselt sobitatud ümbritsevasse keskkonda, välisviimistluses kasutatakse krohvi, puidu ja klaasi kooslust. Õhulised rõdud ja avarad terrassid paiknevad hoone lõunasuunal, hea planeeringuga eluruumid asetsevad läbi kahe korruse, lisaks abipinnana kasutatav tehnoruum. Esimese korruse võib nimetada pere koosolemise alaks, mille südameks 40 m2 suurune köök-elutuba, kuhu mahutab piisavalt külalisi ning loomulikult saunablokk tualeti ja dušiga. Teise korruse võib nimetada vaikseks korruseks magamistubade ning õdusa tualett-vannitoaga. A-energiaklassiga kodud on köetavad õhk-vesi-soojuspumpade baasil ja mõlemal korrusel põrandasisese küttetorustikuga, olemas soojustagastusega ventilatsioonisüsteem. Hoonesse on toodud valguskaabel ja valmidus sideteenuse tarbimiseks on olemas. Korteriomanditele kehtib kaheaastane garantii alates vara üleandmisest.
Hetkel veel pakume suurepärast võimalust kodu ostjatel ise otsustada eluruumide seinavärv, keraamiline plaat ja puitparkett, kokkulepete saavutamisel on võimalus ka teisigi siseviimistlusdetaile valida.
Kaugus bussipeatusest 1 km (Rae bussipeatus), Pärnu linnapiirist 5 km (Raeküla lasteaed, kool ja kauplus), Uulu keskusest 8 km (külas paiknevad lasteaed, kooli ja kauplus).
Lubame, et Sillatee kodud ehitatakse õnnelikeks kodudeks, mis on valmis sissekolimiseks kevad 2026. Kuna detaile ja infot on ehitatava kinnisavara osas on väga palju, siis hea koduotsija võtame koos aega ja luba endale põhjalik ülevaade uuest kodukandidaadist.
Looduskaunis elupiirkond sobib koduotsijale, kes hindab vaikust linnulaulu taustal, aga samas soovib omada ka häid naabreid ja vajadusel vähese ajaga linnamelusse suunduda. Pakkumine sobib perele, kes ei taha võtta kohustust üksikelamu ja kinnistu peremehena, kuid siiski unistavad oma terrassist ja õuealast. Ridaelamu kinnistut ümbritsevad munitsipaalomandis metsamaad, ei saa olema üllatav, kui kitseke hommikul terrassil piilub või sügisel ei jaksa kõiki metsaande koju tuua. Jõgi vaid 400 m kaugusel, mereni otsetee 1,8 km. Kokkuhoidva kogukonna poolt on rajatud külaplats ja Tõlla mängulinnak lastele paikneb siinsamas tänavanurgal, golfisõltlased peavad vaid üle maantee minema ning Lottemaa Teemapark 5 minuti autosõidu kaugusel.
14 korteriga Bauroc konstruktsioonil raudbetoon vahelaega hoone on arhitektuurselt sobitatud ümbritsevasse keskkonda, välisviimistluses kasutatakse krohvi, puidu ja klaasi kooslust. Õhulised rõdud ja avarad terrassid paiknevad hoone lõunasuunal, hea planeeringuga eluruumid asetsevad läbi kahe korruse, lisaks abipinnana kasutatav tehnoruum. Esimese korruse võib nimetada pere koosolemise alaks, mille südameks 40 m2 suurune köök-elutuba, kuhu mahutab piisavalt külalisi ning loomulikult saunablokk tualeti ja dušiga. Teise korruse võib nimetada vaikseks korruseks magamistubade ning õdusa tualett-vannitoaga. A-energiaklassiga kodud on köetavad õhk-vesi-soojuspumpade baasil ja mõlemal korrusel põrandasisese küttetorustikuga, olemas soojustagastusega ventilatsioonisüsteem. Hoonesse on toodud valguskaabel ja valmidus sideteenuse tarbimiseks on olemas. Korteriomanditele kehtib kaheaastane garantii alates vara üleandmisest.
Hetkel veel pakume suurepärast võimalust kodu ostjatel ise otsustada eluruumide seinavärv, keraamiline plaat ja puitparkett, kokkulepete saavutamisel on võimalus ka teisigi siseviimistlusdetaile valida.
Kaugus bussipeatusest 1 km (Rae bussipeatus), Pärnu linnapiirist 5 km (Raeküla lasteaed, kool ja kauplus), Uulu keskusest 8 km (külas paiknevad lasteaed, kooli ja kauplus).
Lubame, et Sillatee kodud ehitatakse õnnelikeks kodudeks, mis on valmis sissekolimiseks kevad 2026. Kuna detaile ja infot on ehitatava kinnisavara osas on väga palju, siis hea koduotsija võtame koos aega ja luba endale põhjalik ülevaade uuest kodukandidaadist.
--
Müüme, hindame ja teeme Sinu kinnisvara dokumendid korda - iga päev, suurima rõõmu ja pühendumisega!
Edasta müügisoov www.arcovara.ee/et/#edasta-myygisoov
Telli hindamine www.arcovara.ee/et/#telli-hindamine
Saada ehitus- või kasutusloa soov seadustamine.arcovara.ee

















