Valga maakond, Otepää vald, Nüpli küla, Köörimäe 6
Kirjeldus
Müüki tuli eriline eramu ligipääsuga Kivi järvele, Tehvandi Spordikeskusest vaid 10 minuti autosõidu kaugusel. Suur kõrghaljastusega kinnistu.
Hoonel olemas kasutusluba.
Kinnistu omanik on juriidiline isik. Müügihinnale lisandub käibemaks. Eramut on võimalik välja osta üksikuna või koos kõrvaloleva eramuga (aadress Köörimäe vkt 5). Hetkel kasutab omanik elamuid lühiajaliseks üürimiseks.
Kinnistu: Suur kõrghaljastusega kinnistu 4618.0 m². Väga privaatne, maanteest eemal ja puudub liiklusmüra. Osa Kivi järvest kuulub kinnistu juurde.
Elamu andmed:
Elamu on ehitatud vaivundamendile. '
Kande- ja jäigastavate konstruktsioonide materjali liik: puit.
Vahelagede kandva osa materjali liik: puit.
Välisseina välisviimistluse materjali liik: puit (vooder).
Ehitise mõõdud:
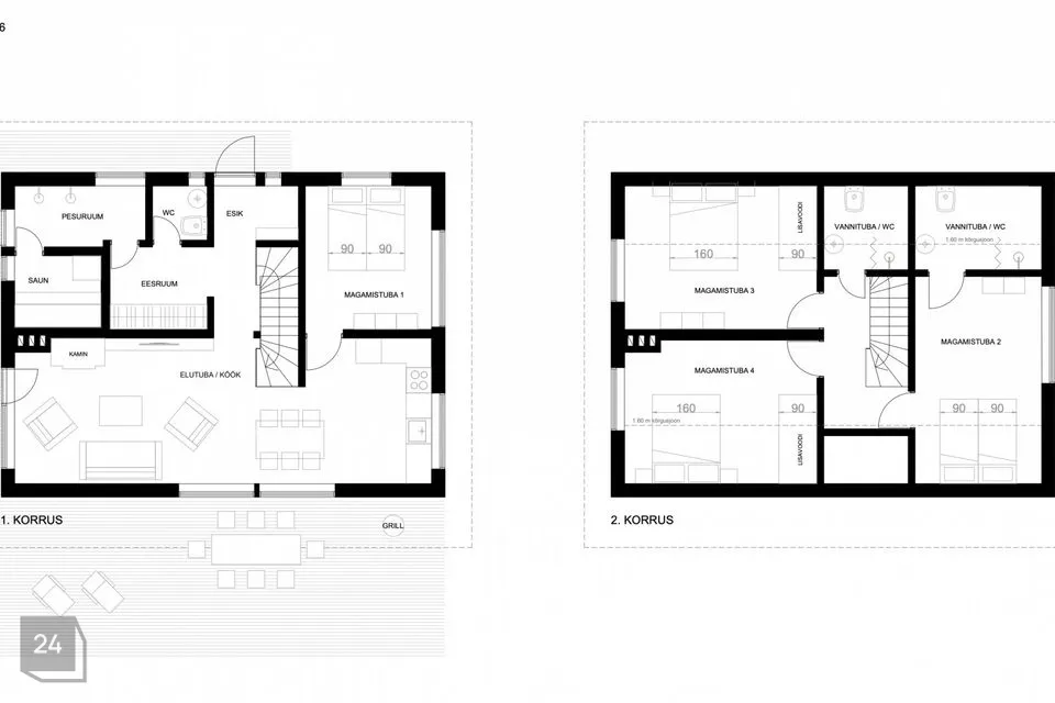
Ehitisealune pind on 79,9 ruutmeetrit.
Köetav/suletud netopind on 126,3 ruutmeetrit.
Kõrgus: 6 meetrit.
Maht: 432,8 kuupmeetrit.
Maapealsete korruste arv: 2.
Ehitise tehnilised näitajad:
Olemas elektrivõrk, kolm faasi, võrgu läbilaskevõime 20 A.
Lokaalne vesi. Joogivett saab salvkaevust ja tarbevett Kivi järvest. Veepump asub Köörimäe 5 maja juures. Sooja vett saab boileri kaudu.
Kanalisatsioon: lokaalne, biopuhasti, kanalisatsioon on ühine Köörimäe 5 hoonega, majade kanalisatsioon ühendatud toruga, pump asub Köörimäe 6 elamu juures. Võimalik luua servituut erastamiseks või paigaldada eraldi pump kui olemas soov erastada elamu üldsüsteemist.
Küte: Küttesüsteemideks on kohtküte kamina kujul ja elektriotseküte.
Ventilatsioon: loomulik ventilatsioon. Jahutust saab lisada kasutades õhk-õhk soojuspumpa.
Gaasiühendus puudub.
Viimistlusmaterjalid:
Hoone on uueväärne. Ehituse käigus kasutati kaasaegseid ehitusmaterjale. Hoonele paigaldatud puitalumiinium pakettaknad. Seinad on viimistletud puitlaudisega, mis tagab ruumis kerge õhu ja meeldiva aroomi. Elutoas on lamineeritud parkett, magamistubadel puitpõrand. Koridoris, San ruumis ja WC-s, pesemisruumides on plaaditud põrandad, Itaalia-pärase plaadiga. Kvaliteetne santehnika. Ruumidel on täispuidust sisseuksed ja plaatuksed.
Elamu disain harmoniseerub asukohaga, pehmed pastelsed toonid ja puukoor, selline kombinatsioon on alati silmapaistev kooslus. Enamik sisustusest on võimalik välja osta kokkuleppel.
Side ja turvalisus:
Olemas turvaseade, Internetti võimalik kasutada eraldi oleva Tele2 ruuteri kaudu.
Parkimine: maja ees on parkla, kus on piisavalt ruumi mitmele sõidukile.
Infrastruktuur ja ümbruskond:
Elamu asub unikaalses kohas, mis tagab maakodu privaatsuse ja linnalähedase mugavuse. Otepää jääb vaid lühikese autosõidu kaugusele. Hea infrastruktuur ja ümbruskonnas eluks vajalikud objektid nagu poed, koolid, lastehoid, söögikohad, tervisekeskus. Unikaalne sportimisvõimalus nii suvel kui ka talvel.
Väga head ja korralikud naabrid, kellega on omanik loonud usaldusväärsed ja sõbralikud suhted.
Kui tekkis tunne, et just see elamu võiks olla teie uus kodu, palun võtke minuga ühendust, lepime kokku sobiva aja ja sõidame objekti vaatama.
Kirjeldus
Müüki tuli eriline eramu ligipääsuga Kivi järvele, Tehvandi Spordikeskusest vaid 10 minuti autosõidu kaugusel. Suur kõrghaljastusega kinnistu.
Hoonel olemas kasutusluba.
Kinnistu omanik on juriidiline isik. Müügihinnale lisandub käibemaks. Eramut on võimalik välja osta üksikuna või koos kõrvaloleva eramuga (aadress Köörimäe vkt 5). Hetkel kasutab omanik elamuid lühiajaliseks üürimiseks.
Kinnistu: Suur kõrghaljastusega kinnistu 4618.0 m². Väga privaatne, maanteest eemal ja puudub liiklusmüra. Osa Kivi järvest kuulub kinnistu juurde.
Elamu andmed:
Elamu on ehitatud vaivundamendile. '
Kande- ja jäigastavate konstruktsioonide materjali liik: puit.
Vahelagede kandva osa materjali liik: puit.
Välisseina välisviimistluse materjali liik: puit (vooder).
Ehitise mõõdud:
Ehitisealune pind on 79,9 ruutmeetrit.
Köetav/suletud netopind on 126,3 ruutmeetrit.
Kõrgus: 6 meetrit.
Maht: 432,8 kuupmeetrit.
Maapealsete korruste arv: 2.
Ehitise tehnilised näitajad:
Olemas elektrivõrk, kolm faasi, võrgu läbilaskevõime 20 A.
Lokaalne vesi. Joogivett saab salvkaevust ja tarbevett Kivi järvest. Veepump asub Köörimäe 5 maja juures. Sooja vett saab boileri kaudu.
Kanalisatsioon: lokaalne, biopuhasti, kanalisatsioon on ühine Köörimäe 5 hoonega, majade kanalisatsioon ühendatud toruga, pump asub Köörimäe 6 elamu juures. Võimalik luua servituut erastamiseks või paigaldada eraldi pump kui olemas soov erastada elamu üldsüsteemist.
Küte: Küttesüsteemideks on kohtküte kamina kujul ja elektriotseküte.
Ventilatsioon: loomulik ventilatsioon. Jahutust saab lisada kasutades õhk-õhk soojuspumpa.
Gaasiühendus puudub.
Viimistlusmaterjalid:
Hoone on uueväärne. Ehituse käigus kasutati kaasaegseid ehitusmaterjale. Hoonele paigaldatud puitalumiinium pakettaknad. Seinad on viimistletud puitlaudisega, mis tagab ruumis kerge õhu ja meeldiva aroomi. Elutoas on lamineeritud parkett, magamistubadel puitpõrand. Koridoris, San ruumis ja WC-s, pesemisruumides on plaaditud põrandad, Itaalia-pärase plaadiga. Kvaliteetne santehnika. Ruumidel on täispuidust sisseuksed ja plaatuksed.
Elamu disain harmoniseerub asukohaga, pehmed pastelsed toonid ja puukoor, selline kombinatsioon on alati silmapaistev kooslus. Enamik sisustusest on võimalik välja osta kokkuleppel.
Side ja turvalisus:
Olemas turvaseade, Internetti võimalik kasutada eraldi oleva Tele2 ruuteri kaudu.
Parkimine: maja ees on parkla, kus on piisavalt ruumi mitmele sõidukile.
Infrastruktuur ja ümbruskond:
Elamu asub unikaalses kohas, mis tagab maakodu privaatsuse ja linnalähedase mugavuse. Otepää jääb vaid lühikese autosõidu kaugusele. Hea infrastruktuur ja ümbruskonnas eluks vajalikud objektid nagu poed, koolid, lastehoid, söögikohad, tervisekeskus. Unikaalne sportimisvõimalus nii suvel kui ka talvel.
Väga head ja korralikud naabrid, kellega on omanik loonud usaldusväärsed ja sõbralikud suhted.
Kui tekkis tunne, et just see elamu võiks olla teie uus kodu, palun võtke minuga ühendust, lepime kokku sobiva aja ja sõidame objekti vaatama.



























































