Tule tutvuma Järve Kuma kodudega! 30. novembril kell 12:00-13:00 ootame Sind Järve Kumas avatud uste päevale, kus saad tutvuda värskelt valminud kodudega. Kohapeal saad vaadata saadaval olevaid majaosasid ning küsida lisainfot arenduse ja müügivõimaluste kohta. Lisaks on Musta Reede kampaania raames valitud kodud 15 000 eurot soodsama hinnaga!
Anna oma tulekust teada, registreerides kliendipäevale: https://jarvekuma.ee/kliendipaev/
*Kuulutuses kajastub kampaaniahind.
Otepää aedlinna rajatakse kolm kahekorruselist ridaelamut kolme majaosaga. Kõigi ridaelamute terrassidele kumab õhtupäike ning tagatud on piisavalt privaatsust majaosade vahel. Majade vahel olev ala on autovaba ning kõigi ridaelamute kasutuses on ühine ruum, kus pesta pärast sõitu jalgratast või määrida Tartu Maratoniks suusad.
Järve Kuma asub Otepää aedlinnas, kust jalutuskäigu kaugusele jäävad Pühajärve rand ning ratta- ja matkarajad. Pooleteist kilomeetri kaugusel paikneb Tehvandi Spordikeskus koos suusaradade ja Tartu Maratoni rajaga. Golfihuvilised saavad aga aega veeta Otepää Golfikeskuses. Lisaks asuvad ridaelamute läheduses GMP Clubhotel, Pühajärve SPA, kultuurimaja, kool ja lasteaed. Kõik vajalik on jalutuskäigu kaugusel.
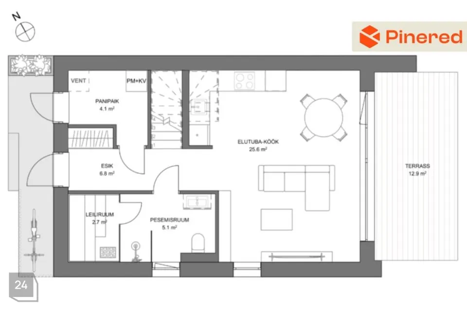
Selles kahekordses kodus on kolm magamistuba, avatud köögiga elutuba, mahukas panipaik ning kaks vannituba, millest ühes on saun. Hoonel on A-energiaklass ning toasoojust ammutatakse maasoojuspumbaga. Igas majaosas on eraldiseisev soojustagastusega sundventilatsioon ning majaosasid teenindab tsentraalne vee- ja kanalisatsioonisüsteem. Kodu siseviimistluse paketti iseloomustab ajatu Skandinaavia disain. Siin kohtuvad tumedad puitpinnad tagasihoidlike hallikate toonidega.
Rohkem infot ehituse, sisekujunduse ja müügiprotsessi kohta on leitav kodulehelt www.jarvekuma.ee
Anna oma tulekust teada, registreerides kliendipäevale: https://jarvekuma.ee/kliendipaev/
*Kuulutuses kajastub kampaaniahind.
Otepää aedlinna rajatakse kolm kahekorruselist ridaelamut kolme majaosaga. Kõigi ridaelamute terrassidele kumab õhtupäike ning tagatud on piisavalt privaatsust majaosade vahel. Majade vahel olev ala on autovaba ning kõigi ridaelamute kasutuses on ühine ruum, kus pesta pärast sõitu jalgratast või määrida Tartu Maratoniks suusad.
Järve Kuma asub Otepää aedlinnas, kust jalutuskäigu kaugusele jäävad Pühajärve rand ning ratta- ja matkarajad. Pooleteist kilomeetri kaugusel paikneb Tehvandi Spordikeskus koos suusaradade ja Tartu Maratoni rajaga. Golfihuvilised saavad aga aega veeta Otepää Golfikeskuses. Lisaks asuvad ridaelamute läheduses GMP Clubhotel, Pühajärve SPA, kultuurimaja, kool ja lasteaed. Kõik vajalik on jalutuskäigu kaugusel.
Selles kahekordses kodus on kolm magamistuba, avatud köögiga elutuba, mahukas panipaik ning kaks vannituba, millest ühes on saun. Hoonel on A-energiaklass ning toasoojust ammutatakse maasoojuspumbaga. Igas majaosas on eraldiseisev soojustagastusega sundventilatsioon ning majaosasid teenindab tsentraalne vee- ja kanalisatsioonisüsteem. Kodu siseviimistluse paketti iseloomustab ajatu Skandinaavia disain. Siin kohtuvad tumedad puitpinnad tagasihoidlike hallikate toonidega.
Rohkem infot ehituse, sisekujunduse ja müügiprotsessi kohta on leitav kodulehelt www.jarvekuma.ee




























