Müüki on tulnud väga ilus maja Narva-Jõesuu liivarannast 180 meetri kaugusel.
Maja siseviimistluses on kasutatud väga kvaliteetseid ja kalleid materjale.
Krundi pindala 1228 m².
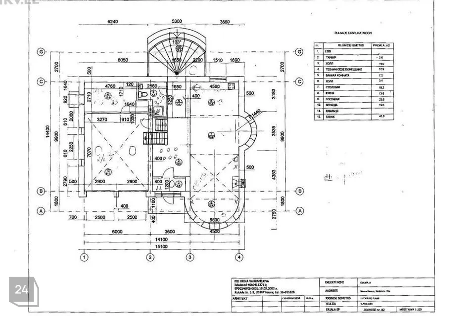
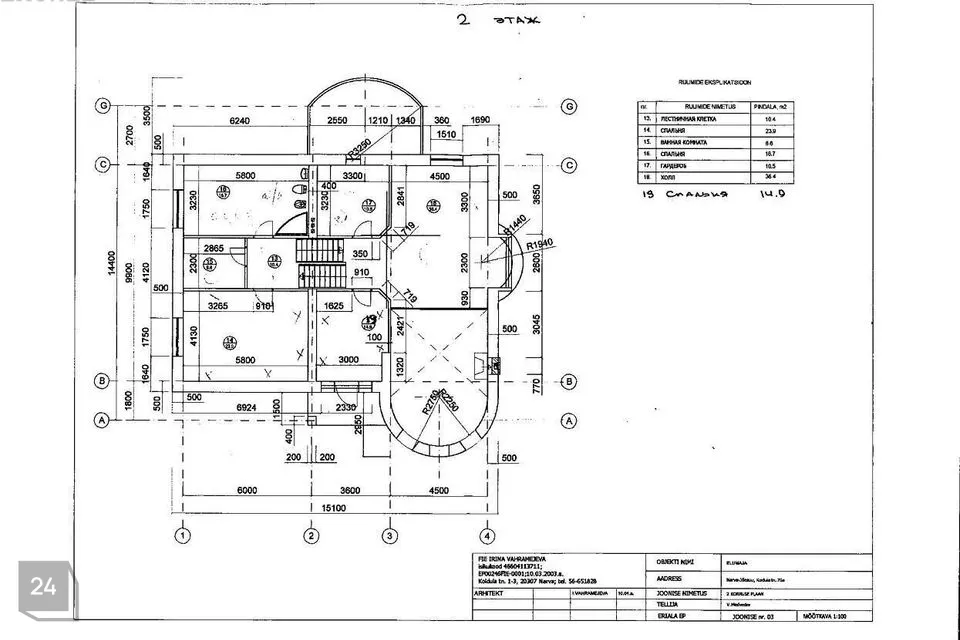
Maja on ehitatud 2007 aastal, kasulikku pinda kokku 276,8 m² (vt. korruste skeeme koos ruumide suurustega fotodel).
MAJA
Esimesel korrusel: tuulekoda, esik, avar elutuba koos söögitoa ja köögiga, duširuum, veranda, köetav garaaž 2-le autole ja tehniline ruum (katlaruum).
Teisel korrusel: peamine magamistuba, garderoob ja vannituba mullivanni ja aroomi aurusaunaga.
Kolmandal korrusel 2 magamistuba, suur esik ja kabinet koos raamatukoguga.
Esimese korruse saalis on Itaalia marmorist kamin.
Maja on täielikult sisustatud mööbli ja kodutehnikaga: neli smart-süsteemi ja internetiühendusega televiisorit, pesumasin, külmkapp, sügavkülmik, nõudepesumasin jne.
Majas on ka kahetasandilised katusealused ruumid üldpinnaga ca 150 ruutmeetrit. m, kuhu pääseb teiselt ja kolmandalt korruselt.
TEHNILISED ANDMED
Maja on ehitatud vahtbetoonplokkidest vahtplasti (200mm) soojustusega ja on mõeldud aastaringseks elamiseks.
Küttesüsteem: kõikides eluruumides reguleeritavad vesiküttega põrandad (garaažis ja katlaruumis radiaatorid). Küte ja soe vesi tulevad diislikütusel töötavast boilerist (võib töötada ka maagaasil).
Kütusekulu aastaringseks kütmiseks on ligikaudu 5000 liitrit (kaks paagi täitmist aastas).
Veevarustus on tsentraliseeritud (Narva Vesi) vee kvaliteedi parandusfiltriga, mis parandab mitte ainult vee puhtust, vaid ka mineraalset koostist. Filter puhastab end iga kahe nädala tagant lastes puhastatud jäätmeid tehnilisse kaevu.
Suletud drenaaži- ja kanalisatsioonisüsteem (maa-alused mahutid mahuga 9000 liitrit).
AIA ALA
Aia vasakpoolses nurgas on ehitatud eraldi grilliruum üldpinnaga 16,4 m².
ASUKOHT
Vahetus läheduses on mets (50 m) ja liivane mererand (180 m).
Narva-Jõesuu liivarand on Eesti pikim liivarand.
Toome bussipeatus on 2 minuti jalutuskäigu kaugusel.
Kui antud maja pakub Teile huvi, võtke minuga ühendust ja lepime objekti vaatamise kokku!
Maja siseviimistluses on kasutatud väga kvaliteetseid ja kalleid materjale.
Krundi pindala 1228 m².
Maja on ehitatud 2007 aastal, kasulikku pinda kokku 276,8 m² (vt. korruste skeeme koos ruumide suurustega fotodel).
MAJA
Esimesel korrusel: tuulekoda, esik, avar elutuba koos söögitoa ja köögiga, duširuum, veranda, köetav garaaž 2-le autole ja tehniline ruum (katlaruum).
Teisel korrusel: peamine magamistuba, garderoob ja vannituba mullivanni ja aroomi aurusaunaga.
Kolmandal korrusel 2 magamistuba, suur esik ja kabinet koos raamatukoguga.
Esimese korruse saalis on Itaalia marmorist kamin.
Maja on täielikult sisustatud mööbli ja kodutehnikaga: neli smart-süsteemi ja internetiühendusega televiisorit, pesumasin, külmkapp, sügavkülmik, nõudepesumasin jne.
Majas on ka kahetasandilised katusealused ruumid üldpinnaga ca 150 ruutmeetrit. m, kuhu pääseb teiselt ja kolmandalt korruselt.
TEHNILISED ANDMED
Maja on ehitatud vahtbetoonplokkidest vahtplasti (200mm) soojustusega ja on mõeldud aastaringseks elamiseks.
Küttesüsteem: kõikides eluruumides reguleeritavad vesiküttega põrandad (garaažis ja katlaruumis radiaatorid). Küte ja soe vesi tulevad diislikütusel töötavast boilerist (võib töötada ka maagaasil).
Kütusekulu aastaringseks kütmiseks on ligikaudu 5000 liitrit (kaks paagi täitmist aastas).
Veevarustus on tsentraliseeritud (Narva Vesi) vee kvaliteedi parandusfiltriga, mis parandab mitte ainult vee puhtust, vaid ka mineraalset koostist. Filter puhastab end iga kahe nädala tagant lastes puhastatud jäätmeid tehnilisse kaevu.
Suletud drenaaži- ja kanalisatsioonisüsteem (maa-alused mahutid mahuga 9000 liitrit).
AIA ALA
Aia vasakpoolses nurgas on ehitatud eraldi grilliruum üldpinnaga 16,4 m².
ASUKOHT
Vahetus läheduses on mets (50 m) ja liivane mererand (180 m).
Narva-Jõesuu liivarand on Eesti pikim liivarand.
Toome bussipeatus on 2 minuti jalutuskäigu kaugusel.
Kui antud maja pakub Teile huvi, võtke minuga ühendust ja lepime objekti vaatamise kokku!









































