Potentsiaalne kortermaja arendus Muhu saarel kuni 13 korteriga.
HOONE
Tegemist on endise Hellamaa kultuurimajaga, mis on ehitisregistri andmetel ehitatud 1961.aastal.
2-korruseline kõrgete lagedega kivimaja + kõrge pööning, ehitusaluse pinnaga 513m² ning potentsiaalselt 744 m² suletud netopinnaga, hetkel on registrijärgselt suletud neto 571,9 m². Hoonele on pandud uus klassikprofiil plekk-katus 2020.aastal.
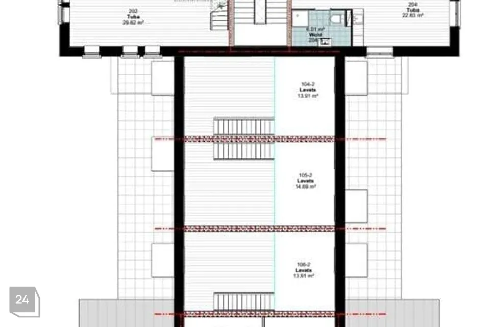
Et leida antud hoonele täna parim kasutus, siis üks variantidest on see rekonstrueerida kortermajaks. Koostatud on eskiis, milline võiks olla hoone parim lahendus korteritena. Tegemist on eskiisplaani ja joonistega, mis ei ole viidud ehitusloa küsimise staatuseni. Ostuhuvilisel on võimalus teha muudatusi või rakendada seal täiesti uus idee.
Olemasolev idee on luua sinna 13 korterit. Hoone annab võimalusi luua sinna populaarseid loft-stiilis omaette sissepääsuga ning ka läbi kahe korruse mugavaid kortereid. Rahuliku ja ilusa Muhu saare looduse keskel olev kaasaegselt mugav ja stiilne korter on kindlasti tugev märksõna!
KOMMUNIKATSIOONID
Olemas elektriliitumine 3x50A. Võimalus liituda tsentraalse vee ja kanalisatsiooniga ning Telia sideteenusega.
KRUNT
100% ärimaa, pindalaga 7494 m²
Krunt olemasoleva hoone ümber on heakorrastatud ja regulaarselt hooldatud. Ca pool kinnistust on metsamaa, kus kasvavad ilusad pikad sirged männid ja lehtpuud. Tubli lisaväärtus hoone kõrval parkmetsa näol. Krunt piirneb asfaltteega ning hooneni on aastaringselt väga hea juurdepääs.
ENERGIAMÄRGIS : G
Olemasoleva hoone energiamärgise teatis nr 211****/00172, 28.01.2021.a.
ASUKOHT
Endine Hellamaa kultuurimaja asub Hellamaa külas sees, kus ümberringi on valdavalt eramajad ning kus elatakse aastaringselt. Ca 240m kaugusele jääb bussipeatus, kus peatuvad ka kaugliini bussid. Hellamaa külas on COOP-i kauplus, mis jääb ca 1km kaugusele. Hellamaal on ka suur külaplats koos uue laululavaga, kus toimuvad iga-aastased valla jaanituled ning erinevad suvekontserdid ja – üritused. Läheduses ka populaarne Muhu Muusikatalu, mis on „Juu Jääb“ kontserdisarja eestvedajaks igal aastal. Ning inimeste seas hästi tuntud Tihuse hobuturismitalu.
Hellamaa jääb poolele teele Kuivastu sadamast Liiva keskuseni, kummastki suunast ca 5,6km.
Saare keskel, Liival, on Muhu Põhikool, lasteaed, noortekeskus, raamatukogu, spordihall, perearsti keskus, uus suur COOP-i kauplus, uus kaasaegne büroohoone "Muhu Maja", mitmed head söögikohad, Muhu turuplats, juuksur, iluteenindajad, pakiautomaadid (Omniva, SmartPost ja DPD), Alexela tankla.. Ühesõnaga kõik eluks vajalik on mugavalt lähedal!
HELISTA ja räägime lähemalt!
HOONE
Tegemist on endise Hellamaa kultuurimajaga, mis on ehitisregistri andmetel ehitatud 1961.aastal.
2-korruseline kõrgete lagedega kivimaja + kõrge pööning, ehitusaluse pinnaga 513m² ning potentsiaalselt 744 m² suletud netopinnaga, hetkel on registrijärgselt suletud neto 571,9 m². Hoonele on pandud uus klassikprofiil plekk-katus 2020.aastal.
Et leida antud hoonele täna parim kasutus, siis üks variantidest on see rekonstrueerida kortermajaks. Koostatud on eskiis, milline võiks olla hoone parim lahendus korteritena. Tegemist on eskiisplaani ja joonistega, mis ei ole viidud ehitusloa küsimise staatuseni. Ostuhuvilisel on võimalus teha muudatusi või rakendada seal täiesti uus idee.
Olemasolev idee on luua sinna 13 korterit. Hoone annab võimalusi luua sinna populaarseid loft-stiilis omaette sissepääsuga ning ka läbi kahe korruse mugavaid kortereid. Rahuliku ja ilusa Muhu saare looduse keskel olev kaasaegselt mugav ja stiilne korter on kindlasti tugev märksõna!
KOMMUNIKATSIOONID
Olemas elektriliitumine 3x50A. Võimalus liituda tsentraalse vee ja kanalisatsiooniga ning Telia sideteenusega.
KRUNT
100% ärimaa, pindalaga 7494 m²
Krunt olemasoleva hoone ümber on heakorrastatud ja regulaarselt hooldatud. Ca pool kinnistust on metsamaa, kus kasvavad ilusad pikad sirged männid ja lehtpuud. Tubli lisaväärtus hoone kõrval parkmetsa näol. Krunt piirneb asfaltteega ning hooneni on aastaringselt väga hea juurdepääs.
ENERGIAMÄRGIS : G
Olemasoleva hoone energiamärgise teatis nr 211****/00172, 28.01.2021.a.
ASUKOHT
Endine Hellamaa kultuurimaja asub Hellamaa külas sees, kus ümberringi on valdavalt eramajad ning kus elatakse aastaringselt. Ca 240m kaugusele jääb bussipeatus, kus peatuvad ka kaugliini bussid. Hellamaa külas on COOP-i kauplus, mis jääb ca 1km kaugusele. Hellamaal on ka suur külaplats koos uue laululavaga, kus toimuvad iga-aastased valla jaanituled ning erinevad suvekontserdid ja – üritused. Läheduses ka populaarne Muhu Muusikatalu, mis on „Juu Jääb“ kontserdisarja eestvedajaks igal aastal. Ning inimeste seas hästi tuntud Tihuse hobuturismitalu.
Hellamaa jääb poolele teele Kuivastu sadamast Liiva keskuseni, kummastki suunast ca 5,6km.
Saare keskel, Liival, on Muhu Põhikool, lasteaed, noortekeskus, raamatukogu, spordihall, perearsti keskus, uus suur COOP-i kauplus, uus kaasaegne büroohoone "Muhu Maja", mitmed head söögikohad, Muhu turuplats, juuksur, iluteenindajad, pakiautomaadid (Omniva, SmartPost ja DPD), Alexela tankla.. Ühesõnaga kõik eluks vajalik on mugavalt lähedal!
HELISTA ja räägime lähemalt!
















































