Kas unistate majast järve ääres? See valgusküllane, hubane ja ökoloogiline kodu Maardus on ideaalne pereeluks. Ruumikad toad, kamin, saun, mänguväljak, aed, kasvuhoone ja rand vaid 200 m kaugusel. Turvaline, piiratud sissepääsuga piirkond, kus elavad aastaringselt pered lastega. Loodus, värske õhk ja vaid 10 minutit Tallinnast!
Müügile pakutakse avarat 2‑korruselist maja pindalaga 196,5 m² ja hooldatud 1505 m² kinnistut Maardu järve kaldal.
Majast:
Ehitatud ökoloogilistest, naturaalkonstruktsioonidest (kuuspalk, puit, soojustatud seinad 200 mm kivivillaga, profiilkatusega katus).
Kõige suurem arve kõikide kommunaalteenuste (elekter, gaas, vesi, prügi) eest oli 350 € — jaanuaris (talvel).
Suvine arve oli 150 € — juunis!
Valmis kasutusele võetuna (KASUTUSLUBA) 2016. aastal, dokumentatsioon vastab kõikidele ehitusnormidele!
Ülimadalad kommunaalkulud ja energiasäästlik küttesüsteem! Majas on gaasikatlaga küttesüsteem: 1. korrusel vesipõrandaküte ja 2. korrusel radiaatorid, mis tagavad efektiivse ja majandusliku kütmise.
Suur pööning — sobib ideaalselt hoiuruumiks või pööningukorruse kujundamiseks.
Kaunis kamin elutoas.
Täielik kommunikatsioonitaristu: vesi, kanalisatsioon, elektri-/ventilatsioonisüsteem, gaas.
Planeering:
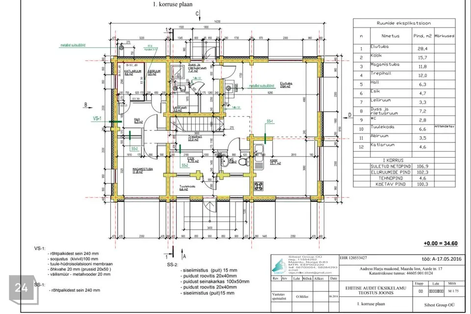
1. korrus:
Avatud elutuba köögiga– 44.1 m²
Magamistuba – 11,8 m²
Trepihall – 12,0 m²
Esik – 6,3 m²
Koridor – 4,7 m²
Saun – 3,3 m²
Dušinurk ja eesruum – 7,2 m²
WC – 2,8 m²
Avar esik välisukse ja põhisisendi vahel – 6,6 m²
Töötuba ja abihoone – 3,5 m²
Katlaruum – 4,6 m²
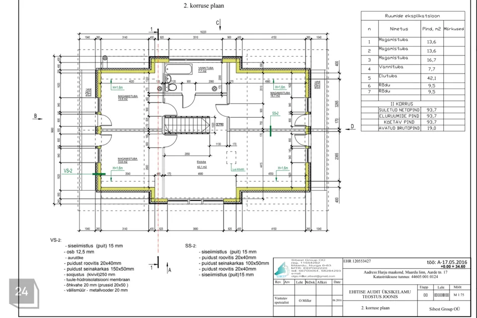
2. korrus:
Magamistuba – 13,6 m²
Magamistuba – 13,6 m²
Magamistuba – 16,7 m²
Vannituba koos WC-ga – 7,7 m²
Elutuba/kogunemisruum – 42,1 m²
Kaks avatud rõdu
Kinnistust:
Ilu aed õunapuude, kirsside, punase ja valge sõstraga, murakaga, sireli, tamme ja kasedega.
Suur kasvuhoone ja abiruumid, garaaž,aiamaja kus lapsed rõõmsalt veedavad aega
Laste mänguväljak kiikude ja liuväljakuga
Rand Maardu järve ääres ja ühine mänguväljak vaid 200 m jalutuskäiku
Privaatne ja perele sobilik:
Turvaline piirkond sissesõiduga läbi tõkkepuud mõlemalt poolt.
Sõbralik ja püsielanikest peredega naabruskond.
Peaaegu igal krundil elavad lastega perekonnad aasta ringi.
Asukoht:
Aarde tn 17, Maardu küla
Tallinnas kesklinna 15 km (15 min sõitu autoga), Lasnamäele 10 min
Miks seda kodu tasub osta?
Energiasäästlik, hubane ja hooldatud maja
Suurepärane kinnistu võimalustega perelapse jaoks, aias puhkealaga ja loodusega
Rahu, turvalisus ja elu vee ääres
Valmis elamiseks — sisene ja ela!
Ära maga maha võimalust! Võta ühendust ja tule vaatama — see kodu on loodud selleks, et teie pere tunneks siin tõelist kohaarmastust!





























































































