Müüakse võtmed kätte lahendust!
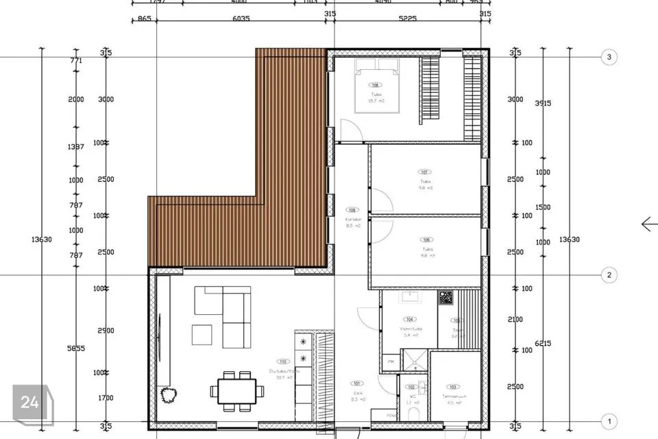
Kinnistule on ehitusluba väljastatud. Niipea kui ostjaga on kokkulepe saavutatud ning detailid võlaõiguslepingusse kirja pandud, siis hakatakse maja ehitama. Tulemus on selline nagu pildil.
Natukene on ostja soovi korral mänguruumi siseseinte korrigeerimiseks ja siseviimistlusmaterjalide valimiseks.
Hinnasisse kuulub:
+Köögimööbel koos tehnikaga;
+Kõik pinnad viimistletud: eluruumi põrndatel naturaalne parket, märjad ruumid plaaditud;
+Kütteliik on õhk-vesisoojuspump ja köetakse läbi põranda, radiaatoreid ei tule;
+Soojustagastusega ventilatsioon;
+Tsentraalne vee-ja kanalisatsiooniühendus;
+Elektriliitumine;
+3x pakettakenad;
+Elektrikerisega saun;
+Sanitaartehnika paigaldatud;
+Müüja kohustus on kasutusluba hankida;
+Ostu eelduseks on esialgu võlaõigusleping, kus lepitakse kõikides tingimustes, materjalides ja valmimisajas kokku, ostja sissemaks 10% ostuhinnast;
+Võtmed kätte lahendus!
Lisaküsimuste korral võta palun julgesti ühendust ja saame detailidest rääkida!
Kinnistule on ehitusluba väljastatud. Niipea kui ostjaga on kokkulepe saavutatud ning detailid võlaõiguslepingusse kirja pandud, siis hakatakse maja ehitama. Tulemus on selline nagu pildil.
Natukene on ostja soovi korral mänguruumi siseseinte korrigeerimiseks ja siseviimistlusmaterjalide valimiseks.
Hinnasisse kuulub:
+Köögimööbel koos tehnikaga;
+Kõik pinnad viimistletud: eluruumi põrndatel naturaalne parket, märjad ruumid plaaditud;
+Kütteliik on õhk-vesisoojuspump ja köetakse läbi põranda, radiaatoreid ei tule;
+Soojustagastusega ventilatsioon;
+Tsentraalne vee-ja kanalisatsiooniühendus;
+Elektriliitumine;
+3x pakettakenad;
+Elektrikerisega saun;
+Sanitaartehnika paigaldatud;
+Müüja kohustus on kasutusluba hankida;
+Ostu eelduseks on esialgu võlaõigusleping, kus lepitakse kõikides tingimustes, materjalides ja valmimisajas kokku, ostja sissemaks 10% ostuhinnast;
+Võtmed kätte lahendus!
Lisaküsimuste korral võta palun julgesti ühendust ja saame detailidest rääkida!







