Müüa Villa Tallinnast ainult 35km kaugusel, Keila-Joa lähedal ja merest vaid mõnesaja meetri kaugusel asub võrratu Villa. Tegemist on 5-st erinevast hoonest koosneva kompleksiga, mis asub 7423m2 (müüjakse Villa tee 1 ja Villa tee 1a) suurusel maa-alal. Krunt on mitme-tasapinnaline, hooned asuvad väiksema mäe otsas, läbi kõrghaljastatud ja hooldatud kinnistu voolab Türisalu oja ning olemas on ka oma väike kosekene.
Hoonetekompleks koosneb elumajast, viis autot mahutavast garaažist, hobuste tallist, talveaiast, grillmajast ja kuurist. Hoonete keskel ca 500m2 kivisillutisega kaetud sisehoov, kus on võimalik korraldada vastuvõtte üle 200-le inimesele.
Kõikides hoonetes signalisatsioon, kinnistul on 16 kaameraga videovalvesüsteem.
Hoonetekompleksi elektrivõimsus 3x40A.
NB!!! Hind ei ole kivist, saab kaubelda!
PEAHOONE
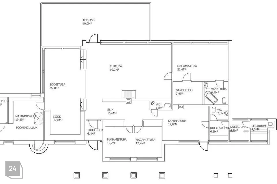
1-kordse eluhoone suurus on 239m2. Peauksest sisenedes satute avarasse esik/garderoobi, kuhu saab mugavalt jätta üleriided ja vahetusjalatsid. Edasi liigute avarasse elutuppa, kus suure kamina ääres on mõnus pere/sõprade/partneritega lõõgastuda. Avar köök koos söögitoaga annab suurpärase võimaluse lõuna- või õhtusöökide pidamiseks ka suuremale seltskonnale. Ilusaid suveõhtuid saab veeta ca 50m2 suurusel terrassil nautides imelist vaadet vulisevale ojale ja päikeseloojangule. Majas on avar köök, majapidamisruum, söögituba, elutuba, mõnusalt suur magamistuba kust saab suurde vannituppa ja garderoobi, kabinet (varem oli 2 eraldi lastemagamistuba), saun koos dušširuumiga, 3 wc-d, esik/garderoob.
Kütteks vesipõrandaküte maakütte baasil (varuks ka õliküttesüsteem). Kivikatusega hoone on ehitatud Soomes toodetud väga soojapidavast Leca Term plokkidest (www.leca.fi), 3-kordsed puitalumiiniumaknad ja alumiiniumprofiiluksed.
GARAAŽIHOONE
Garaažihoone suurus 174m2, mahutab 5 autot. 90m2 garaažipinnast on kütteta, mahutab 3 autot. 60m2 garaažipinnast on küttega ja mahutab 2 autot. Hoones asub katlamaja, suurus 23m2. Teisel korrusel 3 magamistuba (kokku 86m2) ja hallis eraldiseisev dušš ja wc. Köetavatel pindadel maakütte radiaatorid.
TALLIHOONE
Mõisatalli stiilis tallihoone suurus on 85m2, mahutab 2 hobust. Olemas on hobuste pesuruum, sadularuum, söödaruum. Lisaks on ruum vankrile või väiksemale traktorile. Talli peal ca 50m2 suurune pööning/lakk, mõeldud heina hoidmiseks. Heina saab allkorrusel asuvasse hobuste söögituppa kukutada läbi spetsiaalse ava. Kinnistul olemas väike koppel hobuste jalutamiseks.
Tallist võimalik teha ümberehitus vastavalt vajadusele.
TALVEAED
Oja ääres asub 18m2 suurune talveaed. Olemas köök koos tehnikaga, kiviahi, õhksoojuspump. Talveaia kõrval asub eraldiseisev väliköök, kus on grillahi, suitsuahi ja wok-pannid.
KUURIHOONE
Kivist kuurihoone suurus on 11m2, mõeldud kaminapuude ja aiatööriistade hoidmiseks.
Kinnistu on suures osas piiratud metallaiaga. Sissepääs kinnistule läbi sepistatud uhke värava, hoovini viib kivisillutisega tee üle silla (kandevõime ca 40t).
2022 ehitati piirkonda uus reovee puhastusjaam, paigaldati uued vee- ja kanalisatsioonitorud.
Huvi korral vastan meeleldi lisaküsimustele ja korraldan kiire visiidi objektile.
Aitan leida lahendusi kodu ostmisel- müümisel ja üürimisel. Pakun ka nõustamist, korterite haldamist, häid ideid, abi tehingutel ning hindamisteenuseid tunnustatud koostööpartneritelt.
Agenda Kinnisvara tegutseb Eesti turul alates 2004. aastast. Teenindame teid üle Eesti.
Hoonetekompleks koosneb elumajast, viis autot mahutavast garaažist, hobuste tallist, talveaiast, grillmajast ja kuurist. Hoonete keskel ca 500m2 kivisillutisega kaetud sisehoov, kus on võimalik korraldada vastuvõtte üle 200-le inimesele.
Kõikides hoonetes signalisatsioon, kinnistul on 16 kaameraga videovalvesüsteem.
Hoonetekompleksi elektrivõimsus 3x40A.
NB!!! Hind ei ole kivist, saab kaubelda!
PEAHOONE
1-kordse eluhoone suurus on 239m2. Peauksest sisenedes satute avarasse esik/garderoobi, kuhu saab mugavalt jätta üleriided ja vahetusjalatsid. Edasi liigute avarasse elutuppa, kus suure kamina ääres on mõnus pere/sõprade/partneritega lõõgastuda. Avar köök koos söögitoaga annab suurpärase võimaluse lõuna- või õhtusöökide pidamiseks ka suuremale seltskonnale. Ilusaid suveõhtuid saab veeta ca 50m2 suurusel terrassil nautides imelist vaadet vulisevale ojale ja päikeseloojangule. Majas on avar köök, majapidamisruum, söögituba, elutuba, mõnusalt suur magamistuba kust saab suurde vannituppa ja garderoobi, kabinet (varem oli 2 eraldi lastemagamistuba), saun koos dušširuumiga, 3 wc-d, esik/garderoob.
Kütteks vesipõrandaküte maakütte baasil (varuks ka õliküttesüsteem). Kivikatusega hoone on ehitatud Soomes toodetud väga soojapidavast Leca Term plokkidest (www.leca.fi), 3-kordsed puitalumiiniumaknad ja alumiiniumprofiiluksed.
GARAAŽIHOONE
Garaažihoone suurus 174m2, mahutab 5 autot. 90m2 garaažipinnast on kütteta, mahutab 3 autot. 60m2 garaažipinnast on küttega ja mahutab 2 autot. Hoones asub katlamaja, suurus 23m2. Teisel korrusel 3 magamistuba (kokku 86m2) ja hallis eraldiseisev dušš ja wc. Köetavatel pindadel maakütte radiaatorid.
TALLIHOONE
Mõisatalli stiilis tallihoone suurus on 85m2, mahutab 2 hobust. Olemas on hobuste pesuruum, sadularuum, söödaruum. Lisaks on ruum vankrile või väiksemale traktorile. Talli peal ca 50m2 suurune pööning/lakk, mõeldud heina hoidmiseks. Heina saab allkorrusel asuvasse hobuste söögituppa kukutada läbi spetsiaalse ava. Kinnistul olemas väike koppel hobuste jalutamiseks.
Tallist võimalik teha ümberehitus vastavalt vajadusele.
TALVEAED
Oja ääres asub 18m2 suurune talveaed. Olemas köök koos tehnikaga, kiviahi, õhksoojuspump. Talveaia kõrval asub eraldiseisev väliköök, kus on grillahi, suitsuahi ja wok-pannid.
KUURIHOONE
Kivist kuurihoone suurus on 11m2, mõeldud kaminapuude ja aiatööriistade hoidmiseks.
Kinnistu on suures osas piiratud metallaiaga. Sissepääs kinnistule läbi sepistatud uhke värava, hoovini viib kivisillutisega tee üle silla (kandevõime ca 40t).
2022 ehitati piirkonda uus reovee puhastusjaam, paigaldati uued vee- ja kanalisatsioonitorud.
Huvi korral vastan meeleldi lisaküsimustele ja korraldan kiire visiidi objektile.
Aitan leida lahendusi kodu ostmisel- müümisel ja üürimisel. Pakun ka nõustamist, korterite haldamist, häid ideid, abi tehingutel ning hindamisteenuseid tunnustatud koostööpartneritelt.
Agenda Kinnisvara tegutseb Eesti turul alates 2004. aastast. Teenindame teid üle Eesti.

















































