MAJA
Müüa kompaktne ja hästi hoitud ühekorruseline elumaja Laulasmaal, rahulikus ja rohelises piirkonnas.
Maja sobib suurepäraselt nii aastaringseks elamiseks kui ka suvekoduks.
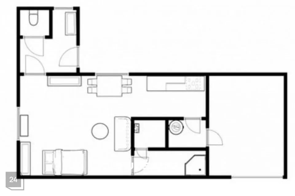
Koosseisu kuulub:
– Esik
– Avatud köök-elutuba ning magamistuba.
– Pesemisvõimalus (ning saun) ja WC eraldi.
-Garaaz, millega on võimalik suurendada elumaja.
Elamu on ehitatud fiboplokist ja heas seisukorras.
Katus on osaliselt uuendatud - üks pool 2024. aastal, teine 3 aastat tagasi.
Küttesüsteem on mitmekülgne ja toimiv:
– Õhksoojuspump (paigaldatud 2025)
– Puit või brikettküttel ahi, millega saab ruumid soojaks isegi krõbedatel talvepäevadel (2x päevas kütmisega).
– Soe vesi 80-liitrise boileriga (paigaldatud 2025)
TEHNOSÜSTEEMID
– Elekter: 3×25 A
– vesi ning kanalisatsioon olemas
Kinnistul toimiv taristu võimaldab kohe sisse kolida ja elada ilma lisainvesteeringuteta.
ÜMBRUS
Kinnistu suurus on 1627 m², piiratud aiaga, mis tagab privaatsuse ja turvatunde. Tegemist on kinnise elurajooniga, kus valitseb rahulik ja peresõbralik atmosfäär.
Avaral krundil on rohkelt ruumi aianduseks, laste mängualaks või lisahoone(de) paigaldamiseks. Soovi korral saab kujundada oma unistuste rohelise oaasi mere lähedal.
ASUKOHT
Laulasmaa on tuntud oma looduslähedase ja kvaliteetse elukeskkonna poolest.
Meri, mets ja terviserajad on lähedal, samuti koolid, poed ja ühistransport.
Tallinna kesklinn jääb umbes 35 minuti autosõidu kaugusele, mis teeb sellest asukohast hea valiku nii püsieluks kui nädalalõpu tagala rajamiseks.
Kui otsid privaatset, funktsionaalset ja taskukohast kodu või suvekodu looduskaunis Laulasmaal, siis see kinnistu võib olla just sinu jaoks!
JAGA MINU KONTAKTI KÕIGILE, KES VAJAVAD KINNISVARANÕU!
- - - - - - - - - -
Telli hindamine UUS MAA Kinnisvarabüroolt https://uusmaa.ee/teenused/hindamine/
ning saad:
- Eksperthinnangu kuni 20% soodsamalt kui võtad koduga seotud laenu Swedbankist
- Pankadest parimad kodulaenutingimused
- Kiire, kvaliteetse ning usaldusväärse hindamisteenuse Eestis
UUS MAA KINNISVARABÜROO EKSPERTHINNANGUID AKTSEPTEERIVAD KÕIK FINANTSASUTUSED.
- - - - - - - - - -
Liitu Uus Maa uudiskirjaga ja saa homset kinnisvarainfot juba täna!
https://www.uusmaa.ee/uudiskirjagaliitumine/
- - - - - - - - - -
Kodu aitab osta Swedbank.
Pakkumise saamiseks kasuta koodi UUSMAA ja Sind teenindatakse eelisjärjekorras.
Võtame ühendust 1 tööpäeva jooksul.
Uus Maa kliendile soodsam lepingutasu. Küsi täpsemat infot maaklerilt.
Finantsteenuseid pakub Swedbank AS. Tutvu tingimustega, pea nõu.
Müüa kompaktne ja hästi hoitud ühekorruseline elumaja Laulasmaal, rahulikus ja rohelises piirkonnas.
Maja sobib suurepäraselt nii aastaringseks elamiseks kui ka suvekoduks.
Koosseisu kuulub:
– Esik
– Avatud köök-elutuba ning magamistuba.
– Pesemisvõimalus (ning saun) ja WC eraldi.
-Garaaz, millega on võimalik suurendada elumaja.
Elamu on ehitatud fiboplokist ja heas seisukorras.
Katus on osaliselt uuendatud - üks pool 2024. aastal, teine 3 aastat tagasi.
Küttesüsteem on mitmekülgne ja toimiv:
– Õhksoojuspump (paigaldatud 2025)
– Puit või brikettküttel ahi, millega saab ruumid soojaks isegi krõbedatel talvepäevadel (2x päevas kütmisega).
– Soe vesi 80-liitrise boileriga (paigaldatud 2025)
TEHNOSÜSTEEMID
– Elekter: 3×25 A
– vesi ning kanalisatsioon olemas
Kinnistul toimiv taristu võimaldab kohe sisse kolida ja elada ilma lisainvesteeringuteta.
ÜMBRUS
Kinnistu suurus on 1627 m², piiratud aiaga, mis tagab privaatsuse ja turvatunde. Tegemist on kinnise elurajooniga, kus valitseb rahulik ja peresõbralik atmosfäär.
Avaral krundil on rohkelt ruumi aianduseks, laste mängualaks või lisahoone(de) paigaldamiseks. Soovi korral saab kujundada oma unistuste rohelise oaasi mere lähedal.
ASUKOHT
Laulasmaa on tuntud oma looduslähedase ja kvaliteetse elukeskkonna poolest.
Meri, mets ja terviserajad on lähedal, samuti koolid, poed ja ühistransport.
Tallinna kesklinn jääb umbes 35 minuti autosõidu kaugusele, mis teeb sellest asukohast hea valiku nii püsieluks kui nädalalõpu tagala rajamiseks.
Kui otsid privaatset, funktsionaalset ja taskukohast kodu või suvekodu looduskaunis Laulasmaal, siis see kinnistu võib olla just sinu jaoks!
JAGA MINU KONTAKTI KÕIGILE, KES VAJAVAD KINNISVARANÕU!
- - - - - - - - - -
Telli hindamine UUS MAA Kinnisvarabüroolt https://uusmaa.ee/teenused/hindamine/
ning saad:
- Eksperthinnangu kuni 20% soodsamalt kui võtad koduga seotud laenu Swedbankist
- Pankadest parimad kodulaenutingimused
- Kiire, kvaliteetse ning usaldusväärse hindamisteenuse Eestis
UUS MAA KINNISVARABÜROO EKSPERTHINNANGUID AKTSEPTEERIVAD KÕIK FINANTSASUTUSED.
- - - - - - - - - -
Liitu Uus Maa uudiskirjaga ja saa homset kinnisvarainfot juba täna!
https://www.uusmaa.ee/uudiskirjagaliitumine/
- - - - - - - - - -
Kodu aitab osta Swedbank.
Pakkumise saamiseks kasuta koodi UUSMAA ja Sind teenindatakse eelisjärjekorras.
Võtame ühendust 1 tööpäeva jooksul.
Uus Maa kliendile soodsam lepingutasu. Küsi täpsemat infot maaklerilt.
Finantsteenuseid pakub Swedbank AS. Tutvu tingimustega, pea nõu.




























