Soovid kodu lähedal kala püüda ja saunakuumust oma kinnistult jõkke jahutama minna? Siia võid kohe puhkama ja vaikset maaelu nautima tulla, kuid soovi korral saad sellele kinnistule rajada oma jõeäärse kodu.
KINNISTU
See 6125 m2 suurune elamumaa piirneb Vasalemma jõega, jõepiiri on 25 meetrit. Kinnistu on kaasomandis, sõlmitud on kasutuskorra kokkulepe. Kinnistul paikneb kolm hoonet, 3 aastat tagasi ehitatud soojustatud saunamaja, uus mahukas kuur ning lammutamist vajav kuur. Kinnistule on võimalik projekteerimistingimuste alusel ehitada lisaks eluhoone. Alustatud on kinnistut läbiva tee asukoha viimist kinnistu serva, et planeeritava eluhoone ette jääks tulevikus hubane hooviala ja tee ei poolitaks kinnistut. Tee ümberehitusele on taotletud praeguse omaniku poolt omavalitsuse luba ning võetud hinnapakkumine. Mullakiht uue tee asukohast on eemaldatud, saab jätkata tee rajamisega. Kinnistul on nii kõrghaljastust kui ka viljapuid ja marjapõõsaid, usinat rohenäppu ootavad ka kaks kasvuhoonet ning kastipeenrad.
HOONED
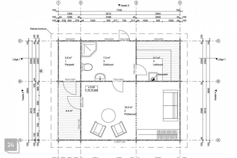
Kinnistul paikneb 35,1 m2 suletud netopinnaga freespuit saunamaja. Ehitusega on alustatud kolm aastat tagasi, hoone on rajatud lintvundamendile, katusekatteks plekk. Hoones on avatud kööginurgaga tuba, pesuruum, leiliruum ning eraldi sissepääsuga tehnoruum. Veevarustus kinnistul paiknevast puurkaevust, sooja vett toodab elektriboiler, toa kütab soojaks kamin. Kanalisatsioon lahendatud kinnise mahuti abil. Seinad soojustatud 100 mm kivivillaga, põranda all liiv, 100 mm peno mida katab OSB plaat. Seintel tugevduseks OSB plaat, toa seinad on kaetud tapeediga, vannituba plaaditud. Tänu soojustusele on sauna mugav kasutada ka talveperioodil. Teine uus hoone kinnistul on 64,1 m2 suletud netopinnaga abihoone. Hoonete kasutusload puuduvad.
Elektrivarustus 1 x 25 A. Ligipääs kinnistule avalikult teelt.
ASUKOHT
Põllküla on looduskaunis paik metsade, jõe, järve ning mere läheduses. Kinnistult jõuab autoga Tallinna 45 minutiga. Plussiks on ka hea raudteeühendus. Põllküla raudteejaama on maad 2,5 km, rongiga Balti jaama jõudmiseks kulub 50 minutit, väljumised igal tunnil, terve päeva jooksul. Jaamas on ka parkimiskohad, kuhu saab vajadusel jätta auto. Mereni 5 km, nii Paldiskisse kui Laulasmaale, kus asuvad kauplused, söögikohad, koolid ja lasteaiad on maad 14 km. Keilasse 19 km, 2026 aasta kevadel avatakse Keilas meeleleahutus- ja kogukonnakeskus https://keilakeskus.ee/. Uude keskusesse on planeeritud kino, spordiklubi, mitmed kohvikud ja kauplused ja palju muud millest väikelinna elanikud siiani on puudust tundnud.
Helista ja läheme vaatame selle jõeäärse maatüki koos üle!
Soovid oma kinnisvara müüa, välja üürida või saada hinnangut?
Võta minuga ühendust! Margit Mikkus +372 **** 7998
JAGA MINU KONTAKTI KÕIGILE, KES VAJAVAD KINNISVARANÕU!
- - - - - - - - - -
Telli hindamine UUS MAA Kinnisvarabüroolt https://uusmaa.ee/teenused/hindamine/
ning saad:
- Eksperthinnangu kuni 20% soodsamalt kui võtad koduga seotud laenu Swedbankist
- Pankadest parimad kodulaenutingimused
- Kiire, kvaliteetse ning usaldusväärse hindamisteenuse Eestis
UUS MAA KINNISVARABÜROO EKSPERTHINNANGUID AKTSEPTEERIVAD KÕIK FINANTSASUTUSED.
- - - - - - - - - -
Liitu Uus Maa uudiskirjaga ja saa homset kinnisvarainfot juba täna!
https://www.uusmaa.ee/uudiskirjagaliitumine/
- - - - - - - - - -
Kodu aitab osta Swedbank.
Pakkumise saamiseks kasuta koodi UUSMAA ja Sind teenindatakse eelisjärjekorras.
Võtame ühendust 1 tööpäeva jooksul.
Uus Maa kliendile soodsam lepingutasu. Küsi täpsemat infot maaklerilt.
Finantsteenuseid pakub Swedbank AS. Tutvu tingimustega, pea nõu.
KINNISTU
See 6125 m2 suurune elamumaa piirneb Vasalemma jõega, jõepiiri on 25 meetrit. Kinnistu on kaasomandis, sõlmitud on kasutuskorra kokkulepe. Kinnistul paikneb kolm hoonet, 3 aastat tagasi ehitatud soojustatud saunamaja, uus mahukas kuur ning lammutamist vajav kuur. Kinnistule on võimalik projekteerimistingimuste alusel ehitada lisaks eluhoone. Alustatud on kinnistut läbiva tee asukoha viimist kinnistu serva, et planeeritava eluhoone ette jääks tulevikus hubane hooviala ja tee ei poolitaks kinnistut. Tee ümberehitusele on taotletud praeguse omaniku poolt omavalitsuse luba ning võetud hinnapakkumine. Mullakiht uue tee asukohast on eemaldatud, saab jätkata tee rajamisega. Kinnistul on nii kõrghaljastust kui ka viljapuid ja marjapõõsaid, usinat rohenäppu ootavad ka kaks kasvuhoonet ning kastipeenrad.
HOONED
Kinnistul paikneb 35,1 m2 suletud netopinnaga freespuit saunamaja. Ehitusega on alustatud kolm aastat tagasi, hoone on rajatud lintvundamendile, katusekatteks plekk. Hoones on avatud kööginurgaga tuba, pesuruum, leiliruum ning eraldi sissepääsuga tehnoruum. Veevarustus kinnistul paiknevast puurkaevust, sooja vett toodab elektriboiler, toa kütab soojaks kamin. Kanalisatsioon lahendatud kinnise mahuti abil. Seinad soojustatud 100 mm kivivillaga, põranda all liiv, 100 mm peno mida katab OSB plaat. Seintel tugevduseks OSB plaat, toa seinad on kaetud tapeediga, vannituba plaaditud. Tänu soojustusele on sauna mugav kasutada ka talveperioodil. Teine uus hoone kinnistul on 64,1 m2 suletud netopinnaga abihoone. Hoonete kasutusload puuduvad.
Elektrivarustus 1 x 25 A. Ligipääs kinnistule avalikult teelt.
ASUKOHT
Põllküla on looduskaunis paik metsade, jõe, järve ning mere läheduses. Kinnistult jõuab autoga Tallinna 45 minutiga. Plussiks on ka hea raudteeühendus. Põllküla raudteejaama on maad 2,5 km, rongiga Balti jaama jõudmiseks kulub 50 minutit, väljumised igal tunnil, terve päeva jooksul. Jaamas on ka parkimiskohad, kuhu saab vajadusel jätta auto. Mereni 5 km, nii Paldiskisse kui Laulasmaale, kus asuvad kauplused, söögikohad, koolid ja lasteaiad on maad 14 km. Keilasse 19 km, 2026 aasta kevadel avatakse Keilas meeleleahutus- ja kogukonnakeskus https://keilakeskus.ee/. Uude keskusesse on planeeritud kino, spordiklubi, mitmed kohvikud ja kauplused ja palju muud millest väikelinna elanikud siiani on puudust tundnud.
Helista ja läheme vaatame selle jõeäärse maatüki koos üle!
Soovid oma kinnisvara müüa, välja üürida või saada hinnangut?
Võta minuga ühendust! Margit Mikkus +372 **** 7998
JAGA MINU KONTAKTI KÕIGILE, KES VAJAVAD KINNISVARANÕU!
- - - - - - - - - -
Telli hindamine UUS MAA Kinnisvarabüroolt https://uusmaa.ee/teenused/hindamine/
ning saad:
- Eksperthinnangu kuni 20% soodsamalt kui võtad koduga seotud laenu Swedbankist
- Pankadest parimad kodulaenutingimused
- Kiire, kvaliteetse ning usaldusväärse hindamisteenuse Eestis
UUS MAA KINNISVARABÜROO EKSPERTHINNANGUID AKTSEPTEERIVAD KÕIK FINANTSASUTUSED.
- - - - - - - - - -
Liitu Uus Maa uudiskirjaga ja saa homset kinnisvarainfot juba täna!
https://www.uusmaa.ee/uudiskirjagaliitumine/
- - - - - - - - - -
Kodu aitab osta Swedbank.
Pakkumise saamiseks kasuta koodi UUSMAA ja Sind teenindatakse eelisjärjekorras.
Võtame ühendust 1 tööpäeva jooksul.
Uus Maa kliendile soodsam lepingutasu. Küsi täpsemat infot maaklerilt.
Finantsteenuseid pakub Swedbank AS. Tutvu tingimustega, pea nõu.











































