See kaunis maja asub vaid 26 km kaugusel Tallinnast ning pakub suurepärast hinna ja kvaliteedi suhet.
Maja on ehitatud avatud planeeringuga ning on täis loomulikku valgust.
Lõunapoolne osa sisaldab suurt 43m2 terrassi ning teisel pool on ka 11m2 rõdu.
Hoone alus on plokist kandekonstruktsioonidel ning puit vahelagedega, välisfassaad on krohvitud.
Majal on tsentraalne vesi ja kanalisatsioon ning elekter 25A.
Ehitusprojekt, ehitusluba ning kasutusluba on kõik olemas.
Majal on kaks täiskorrust:
Esimene korrus sisaldab esikut, duširuumi ja WC-d, sauna, kööki, elutuba, magamistuba (mida võib kasutada ka kabinetina), tehnilist ruumi ning suurt terrassi. Esikus on suur sisseehitatud kapp ja plaaditud põrand. Duširuumi seinad ja põrand on plaaditud ning seal on olemas vannitoamööbel, kraanikauss koos kappide ja peegliga, klaasseinaga eraldatud dušinurk, cersanit WC, pesumasina jaoks vajalikud kommunikatsioonid ning LED-valgustus. Leiliruumis on puuküttega ahi ning elutoas on kaunis kamin, kvaliteetne laminaatpõrand, seinad on värvitud ning LED-valgustus. Köögis on valmistatud tellimuse järgi mööbel ja sisseehitatud Electrolux tehnika (külmkapp, pliit, ahi, nõudepesumasin, schlosser õhupuhastaja) ning LED-valgustus. Magamistoa seinad on värvitud ning põrandal on kvaliteetne laminaat.
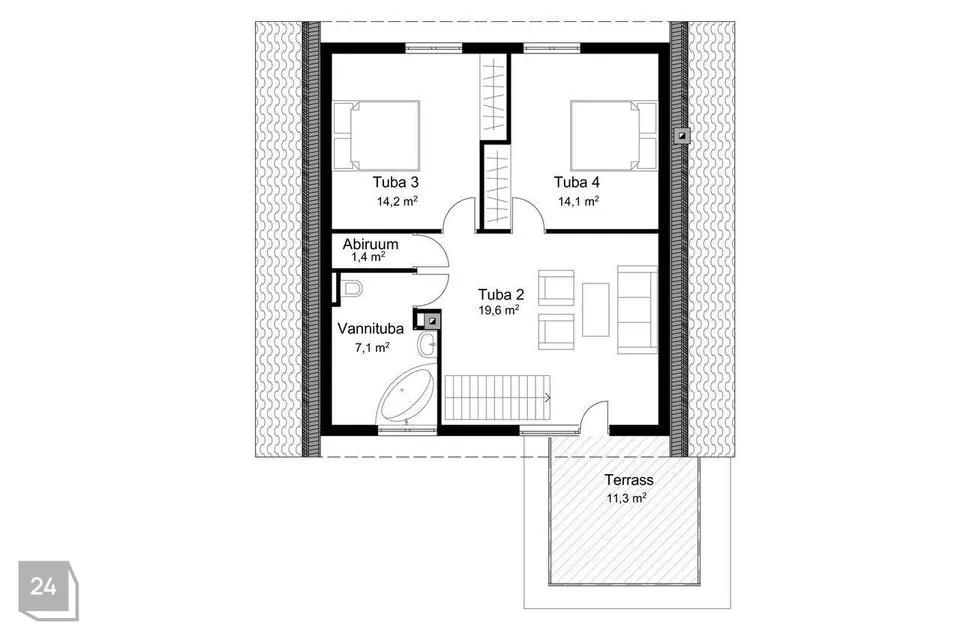
Teine korrus sisaldab kahte magamistuba, elutuba/trepihalli, rõdu, walk-in garderoobi, vannituba ning WC-d. Magamistubades on sisseehitatud kapid ning trepihallis on mõeldud töölaua nurgale, kus on olemas interneti- ja TV-pistikud. Magamistubade, trepihalli ja walk-in garderoobi põrandatel on laminaat ning seinad on värvitud. Vannitoa põrand ja seinad on plaaditud, balteco vann, cersanit WC ning sisseehitatud vannitoamööbel. See maja on tõeline unistuste kodu, mis pakub kvaliteetset elamist ning mugavust nii suuremale kui ka väiksemale perele!
Kogu maja on valgustatud LED-valgustusega ja kvaliteetsed siseuksed on valmistatud naturaalsest tammespoonist. Majas on nii kamin kui ka elektriküte, kus Atlantic elektriradiaatoritel on termostaadid ja temperatuuri andurid.
See kinnisvara paikneb Horisondi AÜ territooriumil vaiksel tupiktänaval, ümbritsetud eramajadest, kus naabrid elavad aastaringselt. Üle tee asub looduskaunis Keila-Joa park. Maja asukoht on logistiliselt mugav, kuna bussipeatuseni on vaid 300 meetrit ning pood jääb 200 meetri kaugusele. Mererand asub vaid 1 km kaugusel. Lisaks on lähedal lasteaed ja kool ning sõidab koolibuss. Krunt on piiratud aiaga, mille väravad on korralikud. Maja ees on unikivist plats, kuhu mahub vähemalt kaks autot parkima. Väline valgustus on varustatud liikumisanduritega.
Hea meelega vastan tekkinud küsimustele!
Maja on ehitatud avatud planeeringuga ning on täis loomulikku valgust.
Lõunapoolne osa sisaldab suurt 43m2 terrassi ning teisel pool on ka 11m2 rõdu.
Hoone alus on plokist kandekonstruktsioonidel ning puit vahelagedega, välisfassaad on krohvitud.
Majal on tsentraalne vesi ja kanalisatsioon ning elekter 25A.
Ehitusprojekt, ehitusluba ning kasutusluba on kõik olemas.
Majal on kaks täiskorrust:
Esimene korrus sisaldab esikut, duširuumi ja WC-d, sauna, kööki, elutuba, magamistuba (mida võib kasutada ka kabinetina), tehnilist ruumi ning suurt terrassi. Esikus on suur sisseehitatud kapp ja plaaditud põrand. Duširuumi seinad ja põrand on plaaditud ning seal on olemas vannitoamööbel, kraanikauss koos kappide ja peegliga, klaasseinaga eraldatud dušinurk, cersanit WC, pesumasina jaoks vajalikud kommunikatsioonid ning LED-valgustus. Leiliruumis on puuküttega ahi ning elutoas on kaunis kamin, kvaliteetne laminaatpõrand, seinad on värvitud ning LED-valgustus. Köögis on valmistatud tellimuse järgi mööbel ja sisseehitatud Electrolux tehnika (külmkapp, pliit, ahi, nõudepesumasin, schlosser õhupuhastaja) ning LED-valgustus. Magamistoa seinad on värvitud ning põrandal on kvaliteetne laminaat.
Teine korrus sisaldab kahte magamistuba, elutuba/trepihalli, rõdu, walk-in garderoobi, vannituba ning WC-d. Magamistubades on sisseehitatud kapid ning trepihallis on mõeldud töölaua nurgale, kus on olemas interneti- ja TV-pistikud. Magamistubade, trepihalli ja walk-in garderoobi põrandatel on laminaat ning seinad on värvitud. Vannitoa põrand ja seinad on plaaditud, balteco vann, cersanit WC ning sisseehitatud vannitoamööbel. See maja on tõeline unistuste kodu, mis pakub kvaliteetset elamist ning mugavust nii suuremale kui ka väiksemale perele!
Kogu maja on valgustatud LED-valgustusega ja kvaliteetsed siseuksed on valmistatud naturaalsest tammespoonist. Majas on nii kamin kui ka elektriküte, kus Atlantic elektriradiaatoritel on termostaadid ja temperatuuri andurid.
See kinnisvara paikneb Horisondi AÜ territooriumil vaiksel tupiktänaval, ümbritsetud eramajadest, kus naabrid elavad aastaringselt. Üle tee asub looduskaunis Keila-Joa park. Maja asukoht on logistiliselt mugav, kuna bussipeatuseni on vaid 300 meetrit ning pood jääb 200 meetri kaugusele. Mererand asub vaid 1 km kaugusel. Lisaks on lähedal lasteaed ja kool ning sõidab koolibuss. Krunt on piiratud aiaga, mille väravad on korralikud. Maja ees on unikivist plats, kuhu mahub vähemalt kaks autot parkima. Väline valgustus on varustatud liikumisanduritega.
Hea meelega vastan tekkinud küsimustele!
























































