Ainulaadne võimalus saada uue A-energiaklassi elamu omanikuks Kuusalu vallas, Harjumaal.
Äsja müüki tulnud Tallinna kesklinnast kõigest 40 minutilise autosõidu kaugusel asuv uuselamu ootab vaikust, rahu ja mere lähedust hindavaid elanikke.
Maja iseloomustavateks joonteks on avarus, valgusküllus, läbimõeldud planeering ja hoolikalt valitud siseviimistlusmaterjalid, mis aitavad muuta selles majas elamise puhtaks naudinguks.
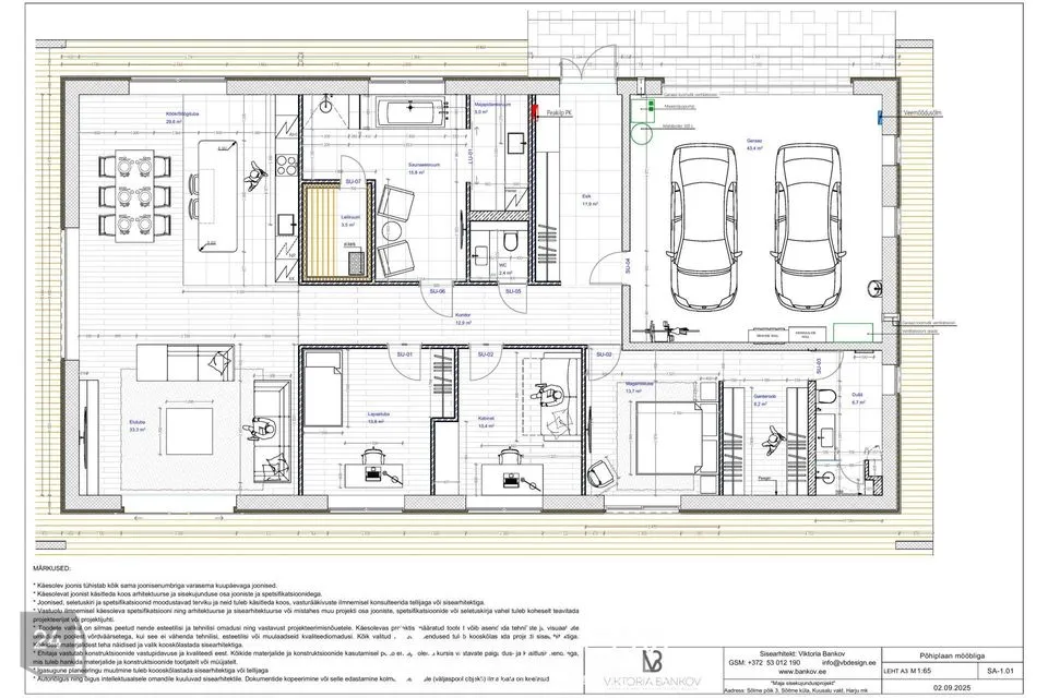
MAJA PLANEERING
-Avatud köögiga elutuba 61,4 m²
-Peamine magamistuba 15 m², mille juurde kuulub avatud garderoob 8,3 m² ja vannituba 6,8 m²
- Magamistuba 1 13,8 m²
- Magamistuba 2 12,9 m²
- Tualett 2,2 m²
- Saun koos lõõgastusalaga 20,8 m²
- Esik 11,7 m² ja sellest edasi viiv koridor 11,6 m²
- Majapidamisruum 4,5 m²
- Garaaž kahele autole 42,4 m²
- Terrass ligi 100m²
SISEVIIMISTLUS
Maja siseviimistluses on kasutatud looduslikke ja väga kvaliteetseid materjale. Põrandatel on õlitatud täispuidust tammeparkett, seinad on värvitud heledates toonides. Elutoas on sisseehitatud karniisitagune valgustus, põhimagamistoas erilahendusega avatud lagi.
Vannitubades on kvaliteetne sanitaartehnika firmadelt Geberit, Hansgrohe ja Vitra.
Piltidel on sisearhitekti nägemus maja sisekujundusest.
Maja müüakse möbleerimata kujul. Sarnast sisekujunduslahendust on võimalik tellida.
Sisearhitekt: Viktoria Bankov (bankov.ee)
KÜTE JA VENTILATSIOON
Paigaldatud on ökonoomne maaküttesüsteem, majas on vesipõrandaküte. Temperatuuri on võimalik ruumipõhiselt reguleerida. Lisaks on paigaldatud soojustagastusega sundventilatsioon.
Energiaklass A.
ASUKOHT
Sinu uus kodu asub kõigest 500 m kaugusel Salmistu lahest. Asukoht on privaatne, mere ja metsa lähedal.
Mereni on vaid 500 meetrit ning Sinu ees avaneb kaunis liivarand. Olemas on asfaltkattega tee.
Täpsema huvi korral võta ühendust:
Lii Salusaar
+372 **** 0956
***@***.ee
LUXUM on pühendunud kõige eksklusiivsema ja unikaalsema kinnisvara müügile Eestis. Meie 30-aastane kogemus, luksuskinnisvarale spetsialiseerunud maaklerid, ulatuslik kontaktivõrgustik ja värske turuinfo annavad meile võimaluse leida teie kinnisvarale sobiva ostja – või teile kodu, millest olete unistanud.
Kui soovite osta, müüa või üürida premium-klassi kinnisvara, võtke julgelt ühendust!
JAGA MINU KONTAKTI KÕIGILE, KES VAJAVAD KINNISVARANÕU!
- - - - - - - - - -
Telli hindamine UUS MAA Kinnisvarabüroolt https://uusmaa.ee/teenused/hindamine/
ning saad:
- Eksperthinnangu kuni 20% soodsamalt kui võtad koduga seotud laenu Swedbankist
- Pankadest parimad kodulaenutingimused
- Kiire, kvaliteetse ning usaldusväärse hindamisteenuse Eestis
UUS MAA KINNISVARABÜROO EKSPERTHINNANGUID AKTSEPTEERIVAD KÕIK FINANTSASUTUSED.
- - - - - - - - - -
Liitu Uus Maa uudiskirjaga ja saa homset kinnisvarainfot juba täna!
https://www.uusmaa.ee/uudiskirjagaliitumine/
- - - - - - - - - -
Kodu aitab osta Swedbank.
Pakkumise saamiseks kasuta koodi UUSMAA ja Sind teenindatakse eelisjärjekorras.
Võtame ühendust 1 tööpäeva jooksul.
Uus Maa kliendile soodsam lepingutasu. Küsi täpsemat infot maaklerilt.
Finantsteenuseid pakub Swedbank AS. Tutvu tingimustega, pea nõu.
Äsja müüki tulnud Tallinna kesklinnast kõigest 40 minutilise autosõidu kaugusel asuv uuselamu ootab vaikust, rahu ja mere lähedust hindavaid elanikke.
Maja iseloomustavateks joonteks on avarus, valgusküllus, läbimõeldud planeering ja hoolikalt valitud siseviimistlusmaterjalid, mis aitavad muuta selles majas elamise puhtaks naudinguks.
MAJA PLANEERING
-Avatud köögiga elutuba 61,4 m²
-Peamine magamistuba 15 m², mille juurde kuulub avatud garderoob 8,3 m² ja vannituba 6,8 m²
- Magamistuba 1 13,8 m²
- Magamistuba 2 12,9 m²
- Tualett 2,2 m²
- Saun koos lõõgastusalaga 20,8 m²
- Esik 11,7 m² ja sellest edasi viiv koridor 11,6 m²
- Majapidamisruum 4,5 m²
- Garaaž kahele autole 42,4 m²
- Terrass ligi 100m²
SISEVIIMISTLUS
Maja siseviimistluses on kasutatud looduslikke ja väga kvaliteetseid materjale. Põrandatel on õlitatud täispuidust tammeparkett, seinad on värvitud heledates toonides. Elutoas on sisseehitatud karniisitagune valgustus, põhimagamistoas erilahendusega avatud lagi.
Vannitubades on kvaliteetne sanitaartehnika firmadelt Geberit, Hansgrohe ja Vitra.
Piltidel on sisearhitekti nägemus maja sisekujundusest.
Maja müüakse möbleerimata kujul. Sarnast sisekujunduslahendust on võimalik tellida.
Sisearhitekt: Viktoria Bankov (bankov.ee)
KÜTE JA VENTILATSIOON
Paigaldatud on ökonoomne maaküttesüsteem, majas on vesipõrandaküte. Temperatuuri on võimalik ruumipõhiselt reguleerida. Lisaks on paigaldatud soojustagastusega sundventilatsioon.
Energiaklass A.
ASUKOHT
Sinu uus kodu asub kõigest 500 m kaugusel Salmistu lahest. Asukoht on privaatne, mere ja metsa lähedal.
Mereni on vaid 500 meetrit ning Sinu ees avaneb kaunis liivarand. Olemas on asfaltkattega tee.
Täpsema huvi korral võta ühendust:
Lii Salusaar
+372 **** 0956
***@***.ee
LUXUM on pühendunud kõige eksklusiivsema ja unikaalsema kinnisvara müügile Eestis. Meie 30-aastane kogemus, luksuskinnisvarale spetsialiseerunud maaklerid, ulatuslik kontaktivõrgustik ja värske turuinfo annavad meile võimaluse leida teie kinnisvarale sobiva ostja – või teile kodu, millest olete unistanud.
Kui soovite osta, müüa või üürida premium-klassi kinnisvara, võtke julgelt ühendust!
JAGA MINU KONTAKTI KÕIGILE, KES VAJAVAD KINNISVARANÕU!
- - - - - - - - - -
Telli hindamine UUS MAA Kinnisvarabüroolt https://uusmaa.ee/teenused/hindamine/
ning saad:
- Eksperthinnangu kuni 20% soodsamalt kui võtad koduga seotud laenu Swedbankist
- Pankadest parimad kodulaenutingimused
- Kiire, kvaliteetse ning usaldusväärse hindamisteenuse Eestis
UUS MAA KINNISVARABÜROO EKSPERTHINNANGUID AKTSEPTEERIVAD KÕIK FINANTSASUTUSED.
- - - - - - - - - -
Liitu Uus Maa uudiskirjaga ja saa homset kinnisvarainfot juba täna!
https://www.uusmaa.ee/uudiskirjagaliitumine/
- - - - - - - - - -
Kodu aitab osta Swedbank.
Pakkumise saamiseks kasuta koodi UUSMAA ja Sind teenindatakse eelisjärjekorras.
Võtame ühendust 1 tööpäeva jooksul.
Uus Maa kliendile soodsam lepingutasu. Küsi täpsemat infot maaklerilt.
Finantsteenuseid pakub Swedbank AS. Tutvu tingimustega, pea nõu.
































