Müüa Harjumaa ja Raplamaa piiril, Aespa alevikus, suvila. Aespa asub 30km ja 30minuti autosõidu kaugusel Tallinna südalinnast.
Suvila asub väga privaatsel krundil. Kinnistu taha jääb Kohila vallale kuuluv väike parkmets, mis on arvel transpordimaana.
KOMMUNIKATSIOONID JA ÜLDINFO
Vesi: oma puurkaevust
Kanalisatsioon: mahuti
Ventilatsioon: loomulik
Elekter: 3x25A
Küte: kamin elutoas
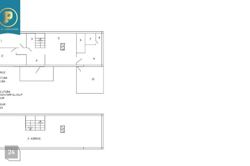
Suvila: suletud netopind 108,3m2, köetav pind 92,1m2
Esmase kasutuselevõtu aasta: 1990
Kinnistu: elamumaa 100%, 1602m2
KONSTRUKTSIOONID
Suvila on ehitatud lintvundamendil, välisseinad on tellistest ja vaheseinad plokist. Vahelaed ja katusekonstruktsioonid on puidust. Katus on eterniidist. Võimalik on ehitada välja kogu teine korrus.
ÜMBRUSKOND
Aespa asub Sakust u 13km ja Kohilast u 10km kaugusel. Lähim toidukauplus Ikaruse pood on u 2km kaugusel, Meie toidukaubad asub umbes 3km kaugusel ja Grossi toidukaubad umbes 5km kaugusel. Bussid Tallinnasse ja Tallinnast väljuvad iga tunni tagant ja buss sõidab Solarise juurde u 40min. 1,9 km kaugusel asub Aespa uus lasteaed. Kohalikud lapsed käivad koolis Kohilas, Kurtnas, Sakus ja Tallinnas.
Helista julgelt ja lähme tutvuma!
Plus Kinnisvarabüroo on butiikstiilis kinnisvarabüroo neile, kes hindavad personaalset lähenemist.
Plus Kinnisvarabüroo keskendub kvaliteedile, mitte kvantiteedile. Iga klient on meie jaoks tähtis ning töötame oma kliendi maksimaalse heaolu nimel!
Teenused, mida pakume:
Elamispindade müük, üürimine ja haldamine
Äripindade müük ja üürimine
Arendusprojektide müük
Investeerimisobjektide müük
Kinnisvara hinnastamine
Kinnisvara ostuesindus
Kinnisvara müügiks ettevalmistamine
Omame kontakte kõikides Eesti pankades ja läbi meie ostes saate laenulepingu soodustust, kiiremat teenindust ning professionaalset abi!
Rohkem infot meist ja meie teenustest / inimestest: www.plus.ee
Suvila asub väga privaatsel krundil. Kinnistu taha jääb Kohila vallale kuuluv väike parkmets, mis on arvel transpordimaana.
KOMMUNIKATSIOONID JA ÜLDINFO
Vesi: oma puurkaevust
Kanalisatsioon: mahuti
Ventilatsioon: loomulik
Elekter: 3x25A
Küte: kamin elutoas
Suvila: suletud netopind 108,3m2, köetav pind 92,1m2
Esmase kasutuselevõtu aasta: 1990
Kinnistu: elamumaa 100%, 1602m2
KONSTRUKTSIOONID
Suvila on ehitatud lintvundamendil, välisseinad on tellistest ja vaheseinad plokist. Vahelaed ja katusekonstruktsioonid on puidust. Katus on eterniidist. Võimalik on ehitada välja kogu teine korrus.
ÜMBRUSKOND
Aespa asub Sakust u 13km ja Kohilast u 10km kaugusel. Lähim toidukauplus Ikaruse pood on u 2km kaugusel, Meie toidukaubad asub umbes 3km kaugusel ja Grossi toidukaubad umbes 5km kaugusel. Bussid Tallinnasse ja Tallinnast väljuvad iga tunni tagant ja buss sõidab Solarise juurde u 40min. 1,9 km kaugusel asub Aespa uus lasteaed. Kohalikud lapsed käivad koolis Kohilas, Kurtnas, Sakus ja Tallinnas.
Helista julgelt ja lähme tutvuma!
Plus Kinnisvarabüroo on butiikstiilis kinnisvarabüroo neile, kes hindavad personaalset lähenemist.
Plus Kinnisvarabüroo keskendub kvaliteedile, mitte kvantiteedile. Iga klient on meie jaoks tähtis ning töötame oma kliendi maksimaalse heaolu nimel!
Teenused, mida pakume:
Elamispindade müük, üürimine ja haldamine
Äripindade müük ja üürimine
Arendusprojektide müük
Investeerimisobjektide müük
Kinnisvara hinnastamine
Kinnisvara ostuesindus
Kinnisvara müügiks ettevalmistamine
Omame kontakte kõikides Eesti pankades ja läbi meie ostes saate laenulepingu soodustust, kiiremat teenindust ning professionaalset abi!
Rohkem infot meist ja meie teenustest / inimestest: www.plus.ee






































