Müüa kaasaegne ja valgusküllane 1-korruseline maja Kohila alevikus!
Kohila alevik on hinnatud elupaik tänu oma suurepärasele asukohale, sõbralikule kogukonnale ja looduse lähedusele. Siin on kõik eluks vajalik käeulatuses – mitu lasteaeda (Kohila Lasteaed Sipsik, Kohila Lasteaed Männi), Kohila Gümnaasium, Muusikakool, Spordikompleks, raamatukogu, ning mitmed poed ja söögikohad.
Kohila on tuntud ka oma aktiivse kogukonna ja rohkete vaba aja veetmise võimaluste poolest – spordirajad, kergliiklusteed, terviserada ning kaunis Keila jõgi, mis voolab otse läbi Kohila.
Tallinna suunas liiklemine on väga mugav – rong ja buss ühendavad Kohilat pealinnaga tiheda graafikuga, mis teeb sellest ideaalse kodu neile, kes hindavad rahulikku elukeskkonda, kuid ei soovi linnamugavustest loobuda.
MAJA
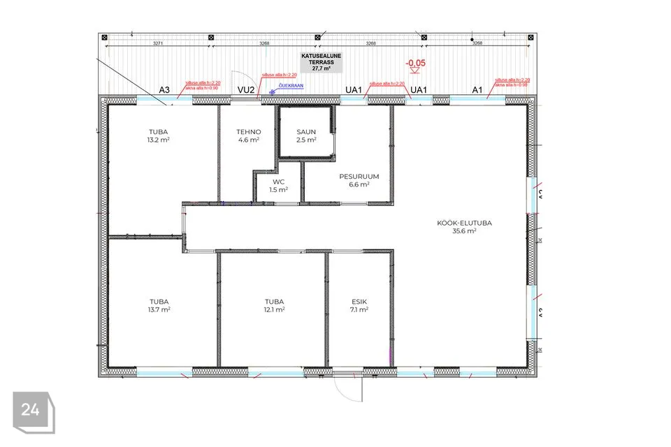
Kaasaegne ja energiatõhus Timber Element puitkarkassmaja on ehitusaluse pinnaga 154,3 m², köetav üldpind 106,2 m², millele lisandub 27,7 m² suurune katusega terrass – suurepärane koht hommikukohviks või suviseks lõõgastuseks.
Kinnistu on 990 m², piiratud aiaga ja pakub piisavalt privaatsust ja ruumi perele.
PLANEERING
Elamu plaanilahendus on läbimõeldud ja funktsionaalne – kõik vajalik on mugavalt paigutatud ühele korrusele:
avatud köögiga elutuba (35,6 m²) – valgusküllane ja avar, kust pääseb otse terrassile
3 magamistuba (13,2 m², 13,7 m² ja 12,1 m²)
pesuruum koos saunaga (9,1 m²), kust pääseb otse terrassile
esik (7,1 m²) ja koridor (9,3 m²)
eraldi WC (1,5 m²)
tehnoruum (4,6 m²)
Läbimõeldult planeering, et kodu oleks mugav ja praktiline igapäevaeluks.
TEHNILISED ANDMED
Kütteallikaks õhk-vesi soojuspump
vesipõrandaküte kõikides tubades (iga ruumi temperatuuri saab reguleerida eraldi)
soojustagastusega ventilatsioonisüsteem
tsentraalne vesi ja kanalisatsioon
elektriliitumine 3x20A
energiaklass B – madalad ülalpidamiskulud ja energiasäästlik eluviis
Maja müüakse koos köögimööbliga, mille paigaldus toimub novembrikuu jooksul.
ASUKOHT
Suurepärane asukoht looduslähedust ja privaatsust hindavale inimesele, kes väärtustab samas ka head ühendust linnaga.
Kohilast sõidab rong Tallinna suunas 17 korda päevas, sõit kestab vaid 35–44 minutit.
See teeb Kohilast ideaalse elupaiga – rahulik ja roheline, ent samas linnalähedane ja mugav.
See kodu ühendab endas kaasaegse mugavuse, energiatõhususe ja looduslähedase elukeskkonna.
Tule ja avasta, miks üha rohkem peresid valib oma uueks koduks just Kohila aleviku – turvalise, sõbraliku ja areneva kogukonna! Küsi ka partnerpakkumiste kohta!
Kodu aitab osta Swedbank:
- Pakkumise saamiseks kasuta koodi OBERHAUS ja Teid teenindatakse eelisjärjekorras.
Haldur võtab Teiega ühendust 1 tööpäeva jooksul.
-Swedbanki klientidele hindamisteenus Ober-Hausist soodsamalt.
Lisainfo: swedbank.ee/kodulaen
Pakkumine kehtib, kui ostad kodu Ober-Haus Kinnisvara vahendusel. Kodulaenu pakub Swedbank AS. Tutvuge tingimustega ja pea nõu www.swedbank.ee.



















































