Kolimiseks valmis 5-toalised A-energiaklassiga ridaelamuboksid roheluse keskel.
•MAJA•
Majad on ehitatud täisbetoneeritud betoonkividest ning vahekorrus ja katus betoonpaneelidest. See tagab parima helipidavuse korruste ja naabrite vahel. Korruste vaheline põrand on ca 23 cm lai ja naabrite vaheline betoneeritud sein on 24 cm lai. Ridaelamu katusele rajatakse päikesepaneelide park.
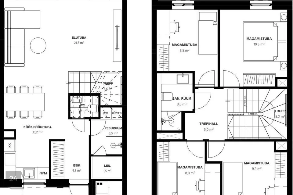
Korruse plaanid on lahendatud nelja magamistoa ja kahe pesuruumiga. Esimese korruse avatud köögiga elutoad on võimalikult avaraks tehtud. Igal boksil on esimesel korrusel majapidamise- ja saunaruumid, wc ja tehnoruum/panipaik. Teisel korrusel on magamistoad ja pesuruum.
•RIDAELAMUBOKS•
Ridaelamubokside kütteallikaks on õhk-vesi soojuspumbad, soojustagastusega sundventilatsioon, vee ja kanalisatsiooni liitumispunkt, eraldi elektriliitumine 3*16A ning sidekaabliühendus.
Iga ridaelamuboksi juurde kuulub tehnoruum/panipaik. Igale ridaelamuboksile ostjale kuulub ainukasutusõigusega hooviala. Ühisel alal asuv mänguväljak on kasutamiseks kõigile.
Ehitustehniline ja siseviimistluse info veebilehel www.kohilakodud.ee
•ÜMBRUSKOND JA PARKIMINE•
Sellest saab suurepärane koht elamiseks, sest elukorraldus Kohilas on mugav ja turvaline. Siin elades on kõik eluks vajalik jalutuskäigu kaugusel – COOP kauplus (170 m), lasteaiad (350 m), perearstikeskus (375 m), spordikompleks ja gümnaasium (520 m). Rongijaam asub 5-minutilise jalutuskäigu kaugusel. Kohila Kodud asuvad vaikses ja looduskaunis kohas. Ilusa männimetsa all on pargid ja metsarajad ning lähedal asub lai mitmete ujumiskohtadega Keila jõgi, mis läbib Kohila alevit.
Igale ridaelamuboksile ostjale kuulub kaks kindlaks määratud parkimiskohta, millest ühele on veetud elektriautode laadimise tarbeks kaablitoru.
P.S. Kõik 3D pildid on illustratiivsed ning ei ole siduvad.
Võtke ühendust ja tulge tutvuma!
Päevakorras kinnisvara müümine, ostmine või välja üürimine? Arutame seda kohtumisel!
•MAJA•
Majad on ehitatud täisbetoneeritud betoonkividest ning vahekorrus ja katus betoonpaneelidest. See tagab parima helipidavuse korruste ja naabrite vahel. Korruste vaheline põrand on ca 23 cm lai ja naabrite vaheline betoneeritud sein on 24 cm lai. Ridaelamu katusele rajatakse päikesepaneelide park.
Korruse plaanid on lahendatud nelja magamistoa ja kahe pesuruumiga. Esimese korruse avatud köögiga elutoad on võimalikult avaraks tehtud. Igal boksil on esimesel korrusel majapidamise- ja saunaruumid, wc ja tehnoruum/panipaik. Teisel korrusel on magamistoad ja pesuruum.
•RIDAELAMUBOKS•
Ridaelamubokside kütteallikaks on õhk-vesi soojuspumbad, soojustagastusega sundventilatsioon, vee ja kanalisatsiooni liitumispunkt, eraldi elektriliitumine 3*16A ning sidekaabliühendus.
Iga ridaelamuboksi juurde kuulub tehnoruum/panipaik. Igale ridaelamuboksile ostjale kuulub ainukasutusõigusega hooviala. Ühisel alal asuv mänguväljak on kasutamiseks kõigile.
Ehitustehniline ja siseviimistluse info veebilehel www.kohilakodud.ee
•ÜMBRUSKOND JA PARKIMINE•
Sellest saab suurepärane koht elamiseks, sest elukorraldus Kohilas on mugav ja turvaline. Siin elades on kõik eluks vajalik jalutuskäigu kaugusel – COOP kauplus (170 m), lasteaiad (350 m), perearstikeskus (375 m), spordikompleks ja gümnaasium (520 m). Rongijaam asub 5-minutilise jalutuskäigu kaugusel. Kohila Kodud asuvad vaikses ja looduskaunis kohas. Ilusa männimetsa all on pargid ja metsarajad ning lähedal asub lai mitmete ujumiskohtadega Keila jõgi, mis läbib Kohila alevit.
Igale ridaelamuboksile ostjale kuulub kaks kindlaks määratud parkimiskohta, millest ühele on veetud elektriautode laadimise tarbeks kaablitoru.
P.S. Kõik 3D pildid on illustratiivsed ning ei ole siduvad.
Võtke ühendust ja tulge tutvuma!
Päevakorras kinnisvara müümine, ostmine või välja üürimine? Arutame seda kohtumisel!






























