Opmani elamud on loodud sümbioos ilu ja praktilisuse vahel. Modernistlik arhitektuurikeel, detailideni läbimõeldud ruumiplaneering ja looduslikud ehitusmaterjalid tagavad tervisliku ning elegantse keskkonna kõigile elanikele.
Planeering
Elamu põhiplaanil on ruumikastus põhjalikult optimeeritud. Peasissepääsu teljest paremal asuvad kolm magamistuba, WC ja pesuruum koos panipaiga või saunaga. L tähe kujuline keskne ruum on tsoneeritud kolmeks. Kodu südames asub köök, selle kõrval läände suunatud akendega söögituba ja lõunapoole avanev elutoa osa. Kogu seina ulatuses maast laeni aknad ja avar katuseaken tagavad piisava loomuliku valguse jõudmise ka kööki, mis jääb välisperimeetrist eemale. Otse köögi kõrval paikneb majapidamisruum / sahver, kust pääseb tehnoruumi. Hoone lõunaküljel on peamine magamistuba koos garderoobi ja ensuite vannitoaga. Terrassid asuvad hoone lõuna- ja lääneküljel. Läänepoolsel terrassil on varikatus, mille alla saab rajada väliköögi ja kuhu pääseb ka pesuruumist. Pea- sissepääsu kõrval asub külm kuur ja kahte autot mahutav varjualune.
Fassaad
Hoone fassaadikatteks on värvitud/peitsitud puitlaudis. Hoonel on värvitud puitaknad ja välisuksed. Sokkel on eelviimistletud pinnaga plaatvundamendi L-elemendist. Katusekatteks on hele PVC kate.
Interjöör
Puitpõrandad on kaetud 1-lipilise puitparketiga. Märgade ruumide, esiku, majapidamisruumi ja tehnoruumi põrandatel on kiviplaatidest kate.
Seinad ja laed on pahteldatud ja värvitud. Pesuruumide seinad on plaaditud.
Saun on viimistletud termotöödeldud laudisega, lava on lepast. Sauna keriseks on Harvia Spirit koos puldiga, mis paikneb pesuruumi seinal.
Konstruktsioonid
Hoone rajatakse kiudbetoonist plaatvundamendile.
Hoone katus rajatakse puitfermidele. Katusekatteks on hele PVC kate.
Küte ja jahutus
Hoone kütmiseks kasutatakse maasoojuspumpa. Hoone jahutamiseks kasutakase maakontuuri vabajahutust.
Olemas valmidus päikesepaneelide paigaldamiseks.
Vesi, kanalisatsioon, elekter
Hoone veevarustuse ja kanalisatsioon on tsentraalsed. Sooja vee tootmine toimub maasoojuspumba abil.
Hoone ümber rajatakse drenaazitorustik, mis on ühenduses tsentraalse isevoolse sadevee kanalisatsioonisüsteemiga.
Hoonel on 32A 3-faasiline elektriliitumine.
Parkimiskohtadel on valmidus Enefit VOLT elektriautode laadija paigaldamiseks.
Majal on liitumine Enefit Connect valguskaabliga.
Eramus ehitatakse välja Loxone hooneautomaatikasüsteem. See juhib tehnoseadmete tööd (ventilatsioon, küte, põrandajahutus) ja sinna on ühendatud ka värava fonotelefon.
Automaatika juhtekraan asub esikus ja võimalik on kasutada ka Loxone rakendust nutiseadmetes. Lisatasu eest saab juurde tellida elektriauto
laadija, PV päikesepaneelid ning elutoa ja magamistoa suurte akende kardinate juhtimise. Samuti on võimalik automaatikaga liidestada valvekeskus.
Haljastus
Hoone kiviplatsid rajamisel kasutatakse halli nunnakivi.
Kinnistul on säilitatud maksimaalselt olemasolevad puud ja põõsad. Maaküte paigaldatakse tänava ja hoone vahelisele alale.
Kinnistul on helehalliks värvitud puitlippidest piirdeaed. Hoone autovärav on kahepoolne tiibvärav. Jalgvärav on käsitsi avatav.
Asukoht
Opmani elamud asuvad Vaelas, Kiili vallas. Vaela lasteaed jääb 1 kilomeetri kaugusele ja Kiili keskusesse, kus paiknevad gümnaasium, perearstikeskus, kauplused ja söögikohad, on 4 km. Kohe teisel pool Tallinna ringteed asub jõudsalt arenev Kurna park IKEA, Selveri, Decathloni ja teiste kauplustega. Ülemiste ja Järve keskused jäävad vähem kui 15 minutilise autosõidu kaugusele.
Arendaja
Lumberlov on kinnisvaraarenduse ettevõtte, mis esimesena Eestis on spetsialiseerunud puithoonete rajamisele.
Lumberlovi puithoonete rajamisel kasutatakse tehases toodetud elemente. Selline ehitusviis tagab kõrgeima kvaliteedi, kuna kriitilised konstruktsioonid ja sõlmed valmivad kontrollitud keskkonnas, mitte ilmastiku mõjudele valla ehitusplatsil.
Arenduse koduleht: opmanielamud.ee
Samas arenduses veel müügis:
- Ilbapõllu põik 3 - broneeritud
- Ilbapõllu põik 4
- Ilbapõllu põik 5
- Ilbapõllu põik 6
- Ilbapõllu põik 7
Lisaks ridaelamuboksid:
- Opmani tee 12-1
- Opmani tee 12-2
- Opmani tee 12-3
- Opmani tee 12-4
- Opmani tee 12-5
- Opmani tee 12-6
- Opmani tee 14-1 - broneeritud
- Opmani tee 14-2
- Opmani tee 14-3
- Opmani tee 14-4
- Opmani tee 14-5
- Opmani tee 14-6
Ehitus käib, vaata ka videot ja tule oma uue koduga tutvuma. Ehitise valmimine 2025 lõpuks.
Pildid on illustratiivsed ning võivad erineda lõplikult valminud tootest.
JAGA MINU KONTAKTI KÕIGILE, KES VAJAVAD KINNISVARANÕU!
- - - - - - - - - -
Telli hindamine UUS MAA Kinnisvarabüroolt https://uusmaa.ee/teenused/hindamine/
ning saad:
- Eksperthinnangu kuni 20% soodsamalt kui võtad koduga seotud laenu Swedbankist
- Pankadest parimad kodulaenutingimused
- Kiire, kvaliteetse ning usaldusväärse hindamisteenuse Eestis
UUS MAA KINNISVARABÜROO EKSPERTHINNANGUID AKTSEPTEERIVAD KÕIK FINANTSASUTUSED.
- - - - - - - - - -
Liitu Uus Maa uudiskirjaga ja saa homset kinnisvarainfot juba täna!
https://www.uusmaa.ee/uudiskirjagaliitumine/
- - - - - - - - - -
Kodu aitab osta Swedbank.
Pakkumise saamiseks kasuta koodi UUSMAA ja Sind teenindatakse eelisjärjekorras.
Võtame ühendust 1 tööpäeva jooksul.
Uus Maa kliendile soodsam lepingutasu. Küsi täpsemat infot maaklerilt.
Finantsteenuseid pakub Swedbank AS. Tutvu tingimustega, pea nõu.
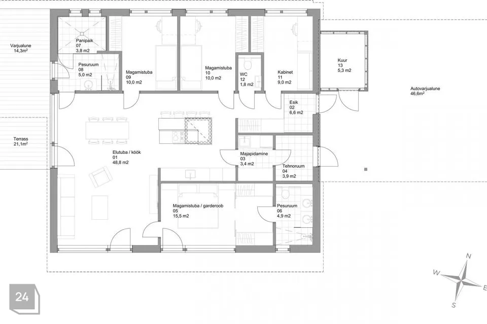
Planeering
Elamu põhiplaanil on ruumikastus põhjalikult optimeeritud. Peasissepääsu teljest paremal asuvad kolm magamistuba, WC ja pesuruum koos panipaiga või saunaga. L tähe kujuline keskne ruum on tsoneeritud kolmeks. Kodu südames asub köök, selle kõrval läände suunatud akendega söögituba ja lõunapoole avanev elutoa osa. Kogu seina ulatuses maast laeni aknad ja avar katuseaken tagavad piisava loomuliku valguse jõudmise ka kööki, mis jääb välisperimeetrist eemale. Otse köögi kõrval paikneb majapidamisruum / sahver, kust pääseb tehnoruumi. Hoone lõunaküljel on peamine magamistuba koos garderoobi ja ensuite vannitoaga. Terrassid asuvad hoone lõuna- ja lääneküljel. Läänepoolsel terrassil on varikatus, mille alla saab rajada väliköögi ja kuhu pääseb ka pesuruumist. Pea- sissepääsu kõrval asub külm kuur ja kahte autot mahutav varjualune.
Fassaad
Hoone fassaadikatteks on värvitud/peitsitud puitlaudis. Hoonel on värvitud puitaknad ja välisuksed. Sokkel on eelviimistletud pinnaga plaatvundamendi L-elemendist. Katusekatteks on hele PVC kate.
Interjöör
Puitpõrandad on kaetud 1-lipilise puitparketiga. Märgade ruumide, esiku, majapidamisruumi ja tehnoruumi põrandatel on kiviplaatidest kate.
Seinad ja laed on pahteldatud ja värvitud. Pesuruumide seinad on plaaditud.
Saun on viimistletud termotöödeldud laudisega, lava on lepast. Sauna keriseks on Harvia Spirit koos puldiga, mis paikneb pesuruumi seinal.
Konstruktsioonid
Hoone rajatakse kiudbetoonist plaatvundamendile.
Hoone katus rajatakse puitfermidele. Katusekatteks on hele PVC kate.
Küte ja jahutus
Hoone kütmiseks kasutatakse maasoojuspumpa. Hoone jahutamiseks kasutakase maakontuuri vabajahutust.
Olemas valmidus päikesepaneelide paigaldamiseks.
Vesi, kanalisatsioon, elekter
Hoone veevarustuse ja kanalisatsioon on tsentraalsed. Sooja vee tootmine toimub maasoojuspumba abil.
Hoone ümber rajatakse drenaazitorustik, mis on ühenduses tsentraalse isevoolse sadevee kanalisatsioonisüsteemiga.
Hoonel on 32A 3-faasiline elektriliitumine.
Parkimiskohtadel on valmidus Enefit VOLT elektriautode laadija paigaldamiseks.
Majal on liitumine Enefit Connect valguskaabliga.
Eramus ehitatakse välja Loxone hooneautomaatikasüsteem. See juhib tehnoseadmete tööd (ventilatsioon, küte, põrandajahutus) ja sinna on ühendatud ka värava fonotelefon.
Automaatika juhtekraan asub esikus ja võimalik on kasutada ka Loxone rakendust nutiseadmetes. Lisatasu eest saab juurde tellida elektriauto
laadija, PV päikesepaneelid ning elutoa ja magamistoa suurte akende kardinate juhtimise. Samuti on võimalik automaatikaga liidestada valvekeskus.
Haljastus
Hoone kiviplatsid rajamisel kasutatakse halli nunnakivi.
Kinnistul on säilitatud maksimaalselt olemasolevad puud ja põõsad. Maaküte paigaldatakse tänava ja hoone vahelisele alale.
Kinnistul on helehalliks värvitud puitlippidest piirdeaed. Hoone autovärav on kahepoolne tiibvärav. Jalgvärav on käsitsi avatav.
Asukoht
Opmani elamud asuvad Vaelas, Kiili vallas. Vaela lasteaed jääb 1 kilomeetri kaugusele ja Kiili keskusesse, kus paiknevad gümnaasium, perearstikeskus, kauplused ja söögikohad, on 4 km. Kohe teisel pool Tallinna ringteed asub jõudsalt arenev Kurna park IKEA, Selveri, Decathloni ja teiste kauplustega. Ülemiste ja Järve keskused jäävad vähem kui 15 minutilise autosõidu kaugusele.
Arendaja
Lumberlov on kinnisvaraarenduse ettevõtte, mis esimesena Eestis on spetsialiseerunud puithoonete rajamisele.
Lumberlovi puithoonete rajamisel kasutatakse tehases toodetud elemente. Selline ehitusviis tagab kõrgeima kvaliteedi, kuna kriitilised konstruktsioonid ja sõlmed valmivad kontrollitud keskkonnas, mitte ilmastiku mõjudele valla ehitusplatsil.
Arenduse koduleht: opmanielamud.ee
Samas arenduses veel müügis:
- Ilbapõllu põik 3 - broneeritud
- Ilbapõllu põik 4
- Ilbapõllu põik 5
- Ilbapõllu põik 6
- Ilbapõllu põik 7
Lisaks ridaelamuboksid:
- Opmani tee 12-1
- Opmani tee 12-2
- Opmani tee 12-3
- Opmani tee 12-4
- Opmani tee 12-5
- Opmani tee 12-6
- Opmani tee 14-1 - broneeritud
- Opmani tee 14-2
- Opmani tee 14-3
- Opmani tee 14-4
- Opmani tee 14-5
- Opmani tee 14-6
Ehitus käib, vaata ka videot ja tule oma uue koduga tutvuma. Ehitise valmimine 2025 lõpuks.
Pildid on illustratiivsed ning võivad erineda lõplikult valminud tootest.
JAGA MINU KONTAKTI KÕIGILE, KES VAJAVAD KINNISVARANÕU!
- - - - - - - - - -
Telli hindamine UUS MAA Kinnisvarabüroolt https://uusmaa.ee/teenused/hindamine/
ning saad:
- Eksperthinnangu kuni 20% soodsamalt kui võtad koduga seotud laenu Swedbankist
- Pankadest parimad kodulaenutingimused
- Kiire, kvaliteetse ning usaldusväärse hindamisteenuse Eestis
UUS MAA KINNISVARABÜROO EKSPERTHINNANGUID AKTSEPTEERIVAD KÕIK FINANTSASUTUSED.
- - - - - - - - - -
Liitu Uus Maa uudiskirjaga ja saa homset kinnisvarainfot juba täna!
https://www.uusmaa.ee/uudiskirjagaliitumine/
- - - - - - - - - -
Kodu aitab osta Swedbank.
Pakkumise saamiseks kasuta koodi UUSMAA ja Sind teenindatakse eelisjärjekorras.
Võtame ühendust 1 tööpäeva jooksul.
Uus Maa kliendile soodsam lepingutasu. Küsi täpsemat infot maaklerilt.
Finantsteenuseid pakub Swedbank AS. Tutvu tingimustega, pea nõu.





























