Müüa Keila linnas Jõepargi arenduses valmiv modernne hästi läbimõeldud planeeringuga paariselamu. Skandinaavia stiilis majal on A-energiaklass. Tegemist on avara kaasaegse koduga, mis sobib hästi ka nõudliku maitsega inimestele. Maja teeb eriliseks suurte akende ja kõrge laega (ca kuni 4,7 meetrit) valgusküllane avatud köögiga elutuba ning 2,8 m kõrgused laed ja põrandani ulatuvad aknad magamistubades.
PLANEERING:
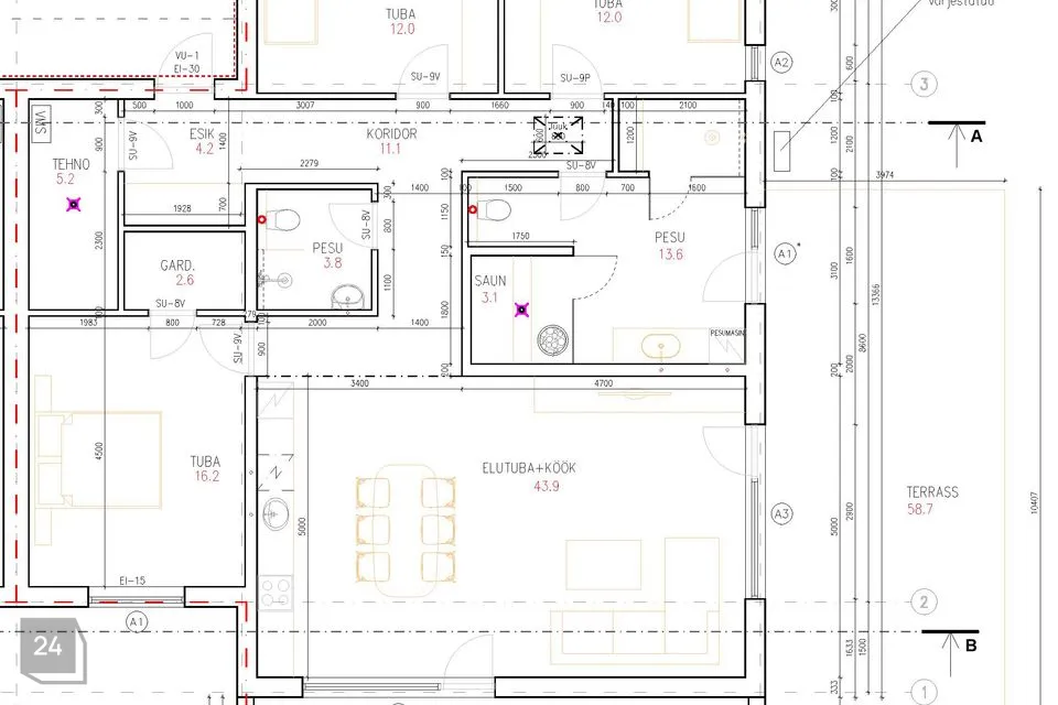
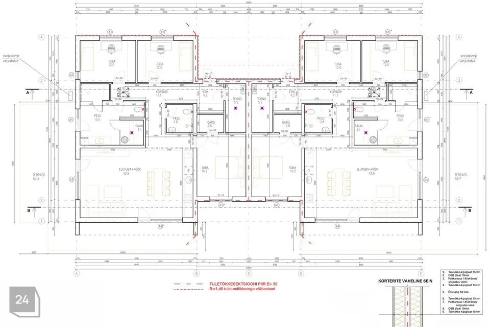
Kõik ruumid asuvad mugavalt ühel korrusel. Kaks magamistuba on maja põhjapoolses küljes vaatega maja ette. Suurim, walk-in garderoobiga, tuba on eraldi ja pääs sinna on elutoast. Maja keskel on kaks pesuruumi koos WC-dega. Üks neist on eriti suur ja pääsudega leiliruumi ning terrassile. Sauna eesruumi saab mahutada ka näiteks diivani või laua ja toolid. Maja südameks on avar kõrge lae, suurte akende ja avatud köögiga elutuba kahe pääsuga terrassile.
Köetav pind on 127,7 m², millele lisandub 54,4 m² või 58,7 m² suurune terrass.
Maja koosseisu kuulub: elutuba koos köögiga (43,9 m²), suur magamistuba (16,2 m²) koos 2,6 m² suuruse garderoobiga (kokku 18,8 m²), 2 magamistuba (mõlemad 12 m²), esik (4,2 m²), koridor (11,1 m²), tehnoruum/panipaik (5,2 m²), suur pesuruum (13,6 m²) pääsuga leiliruumi (3,1 m²) ja teine pesuruum koos WC-ga (3,8 m²).
HALJASTUS JA PARKIMISPLATS
Müügihind sisaldab kinnistu haljastust. Arendaja poolt tasandatakse pinnas ja külvatakse muruseeme. Sissesõidutee ja parkimisplats tehakse betoonkividest.
LIITUMISED, KÜTE JA VENTILATSIOON:
Olemas liitumised tsentraalse vee- ja kanalisatsioonivõrguga. Elekter 3x16A.
Kiire internet Telia valguskaabliga.
Järjest olulisemaks on saanud energiatarbimine ja eluasemega seotud kulud. Müüdav eluruum toetab energiasäästlikkust. Uue kodu energiaklass on A.
Mõlemal paariselamu poolel on oma õhk-vesi tüüpi soojuspump, mille sisemine agregaat asub tehnoruumis ning katusele paigaldatakse päikesepaneelid. Kõigis ruumides on mugav vesipõrandaküte ning ruumide temperatuuri saab termostaatidest eraldi reguleerida. Soojuspump kütab ka tarbevett. Värske õhu annab soojustagastusega ventilatsioonisüsteem.
ASUKOHT:
Keila Jõepargi elamurajoon asub Keila linna kaguservas, mis on logistiliselt suurepärane asukoht. Maa-alast põhja ning lääne pool asub ulatuslik Keila linna väikeelamute piirkond ning lõunas hoonestamata kõrghaljastusega alad. Uued majad tänavavalgustuse ja kergliiklusteedega moodustavad kaasaegse tervikliku elukeskkonna.
Linnakärast eemal asuv kinnistu annab võimaluse rahus päikesepaistet nautida ja linnulaulu kuulata, olles samas vaid lühikese autosõidu kaugusel Tallinna linnaelust. Keila on hinnatud elupiirkond olnud juba kaua ning lisaks põlistele Keila elanikele oskavad selle piirkonna rohelust, ilu ja vaikust hinnata ka üha rohkem kaugemalt tulijaid.
Keilas on kõik vajalik eluks olemas: Selver, Rõõmu kaubamaja, Maxima, Rimi, Coop, erinevad restoranid (Restoran JÄÄ, kohvik Kegel, Vaga Mama, Bistroo Gnoom, Scottish House), tervisekeskus, kultuurikeskus, suusarada, matka- ja õpperada, postkontor, tanklad, raamatukogu, Waldorfi kool, Keila Kool, lasteaiad, muusikakool, võimlemisklubi, pakiautomaadid (Omniva), mitu apteeki, elektriautode laadimispunkt, korvpalli-, jalgpalli- ja võrkpallikool, tantsustuudiod, ujula ja kaunis purskkaevuga Keila Keskpark.
ÜHISTRANSPORT:
Keilas on väga hea rongiühendus Tallinnaga (55-56 väljumist tööpäeviti nii Tallinna suunas kui ka tagasi). Tallinna piirini Laagri peatusesse jõuab rong 12-13 minutiga ning Tallinna kesklinna 33-34 minutiga. Lähedal on ka Eha ja Ülesõidu bussipeatused.
LISAINFO:
Arendaja annab majale uue ehitise garantii 2 aastat ja teostab kõik vajalikud kooskõlastused ning tagab kasutusloa väljastamise. Maja valmib kevadel 2026. Müügihind sisaldab käibemaksu.
Võimalus kaasa rääkida siseviimistluse ja materjalide valikul!
Huvi korral kirjuta või helista ja küsi lisainfot.






























