Kui otsid perele kaasaegset, energiatõhusat ja avara planeeringuga kodu turvalises ning rohelises elukeskkonnas, siis see pakkumine on just sulle.
A-energiaklass tagab väga madalad püsikulud ning kvaliteetne teostus loob mugava elukeskkonna aastateks.
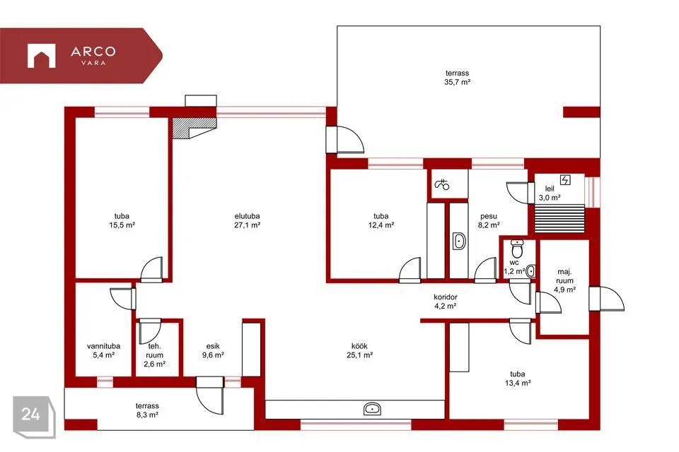
PLANEERING
Majal on läbimõeldud ja funktsionaalne ruumilahendus, mis sobib suurepäraselt pere igapäevaeluks.
Suur ja valgusküllane avatud köök-elutuba, köök on veidi eraldatud, võimalus ka täiesti eraldi köögiks. Elutost pääseb terrassile, kuhu paistab hommiku ja lõunapäike.
3 magamistuba
2 vannituba ja WC-d
Saun
Majapidamisruum
Eraldi tehnoruum
Avarad aknapinnad toovad tuppa rohkelt loomulikku valgust ning loovad õdusa tunde. Aknad avanevad peamiselt ida ja lääne suunas.
SISEVIIMISTLUS
Kodus on kasutatud kvaliteetseid ja ajas kestvaid materjale:
Põrandatel naturaalne parkett
Pesuruumides, sauna eesruumis, esikus ja majapidamisruumis keraamiline plaat
Korralikud siseuksed ja kvaliteetne sanitaartehnika
Kõik viimistluslahendused loovad tervikliku ja modernse üldmulje.
KOMMUNIKATSIOONID JA TEHNOSÜSTEEMID
Maja on ehitatud energiasäästlike lahendustega, mis tagavad madalad igakuised kulud:
Maaküte – väga ökonoomne küttevõimalus
Soojustagastusega ventilatsioon – tagab kvaliteetse sisekliima
Valmidus kamina paigaldamiseks elutoas
Elekter 3x16A
HOOV JA ÜMBRUS
Kinnistul on rajatud hooldatud muru ning maja ette ja ümber on paigaldatud kvaliteetne kiviparkett. Lisaks asub kinnistul tiik, mis ei ole ainult kaunis maastikuelement, vaid toimib ka tulekahju korral veevõtu kohana.
Keskkond on vaikne ja looduslähedane – ideaalne perele, kes hindab privaatsust, rohelust ja turvalisust.
A-energiaklass tagab väga madalad püsikulud ning kvaliteetne teostus loob mugava elukeskkonna aastateks.
PLANEERING
Majal on läbimõeldud ja funktsionaalne ruumilahendus, mis sobib suurepäraselt pere igapäevaeluks.
Suur ja valgusküllane avatud köök-elutuba, köök on veidi eraldatud, võimalus ka täiesti eraldi köögiks. Elutost pääseb terrassile, kuhu paistab hommiku ja lõunapäike.
3 magamistuba
2 vannituba ja WC-d
Saun
Majapidamisruum
Eraldi tehnoruum
Avarad aknapinnad toovad tuppa rohkelt loomulikku valgust ning loovad õdusa tunde. Aknad avanevad peamiselt ida ja lääne suunas.
SISEVIIMISTLUS
Kodus on kasutatud kvaliteetseid ja ajas kestvaid materjale:
Põrandatel naturaalne parkett
Pesuruumides, sauna eesruumis, esikus ja majapidamisruumis keraamiline plaat
Korralikud siseuksed ja kvaliteetne sanitaartehnika
Kõik viimistluslahendused loovad tervikliku ja modernse üldmulje.
KOMMUNIKATSIOONID JA TEHNOSÜSTEEMID
Maja on ehitatud energiasäästlike lahendustega, mis tagavad madalad igakuised kulud:
Maaküte – väga ökonoomne küttevõimalus
Soojustagastusega ventilatsioon – tagab kvaliteetse sisekliima
Valmidus kamina paigaldamiseks elutoas
Elekter 3x16A
HOOV JA ÜMBRUS
Kinnistul on rajatud hooldatud muru ning maja ette ja ümber on paigaldatud kvaliteetne kiviparkett. Lisaks asub kinnistul tiik, mis ei ole ainult kaunis maastikuelement, vaid toimib ka tulekahju korral veevõtu kohana.
Keskkond on vaikne ja looduslähedane – ideaalne perele, kes hindab privaatsust, rohelust ja turvalisust.
--
Müüme, hindame ja teeme Sinu kinnisvara dokumendid korda - iga päev, suurima rõõmu ja pühendumisega!
Edasta müügisoov www.arcovara.ee/et/#edasta-myygisoov
Telli hindamine www.arcovara.ee/et/#telli-hindamine
Saada ehitus- või kasutusloa soov seadustamine.arcovara.ee

















































