Paarismaja Jõhvis. Majaosad asuvad eraldi kinnistutel Pargi tn 37/1 ja Pargi tn 37/2. Kahe kinnistu pindala on kokku 663 m² ja majade maapealsete korruste suletud netopindala vastavalt 111,2 m² ja 109,6 m².
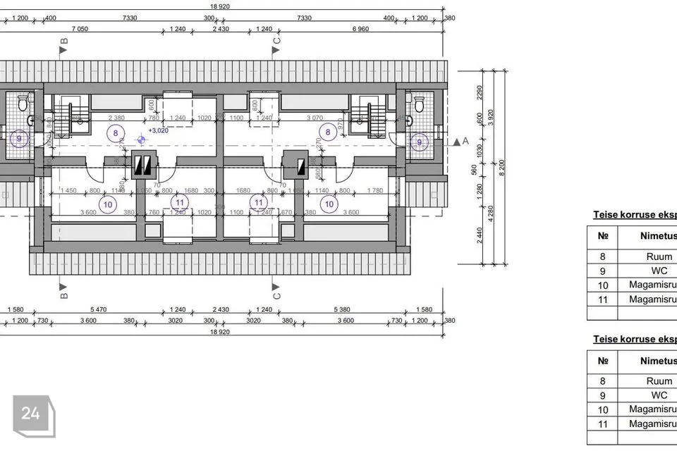
Majaosad on identsed - kummaski pooles on 1. korrusel 2 tuba, köök, duširuum, tualett ja 2 .korrusel 2 magamistuba, puhketuba, pesuruum-tualett. Paarismaja peale kokku on 8 tuba.
Maja on 2013. a renoveeritud, vahetatud on katusekate, aknad ja uksed, soojustatud vundament, välisseinad ja katus. Hoone välisviimistluse seisukord on väga hea. Hoones on vahetatud kõik tehnosüsteemid, paigaldatud uued kütteradiaatorid ja uus sanitaartehnika, san.ruumides paigaldatud põrandaküte. Ruumide siseviimistlus on samuti uus, siseviimistluse tase ja üldine seisukord väga hea.
Hoonesse on paigaldatud valvesignalisatsioon.
Tehnovõrgud:
Veevarustus - tsentraalne külmaveevarustus, uus torustik, soe vesi elektriboileriga;
Kanalisatsioon - tsentraalne, uus torustik;
Küttesüsteem - kaug-keskküte, uus soojatorustik ja uued plekkradiaatorid. Lisakson san.ruumides paigaldatud elektriline põrandaküte;
Elektrivarustus - 220V, uus elektrisüsteem;
Pliit / sanitaartehnika - elektripliit / uus, väga heas seisukorras;
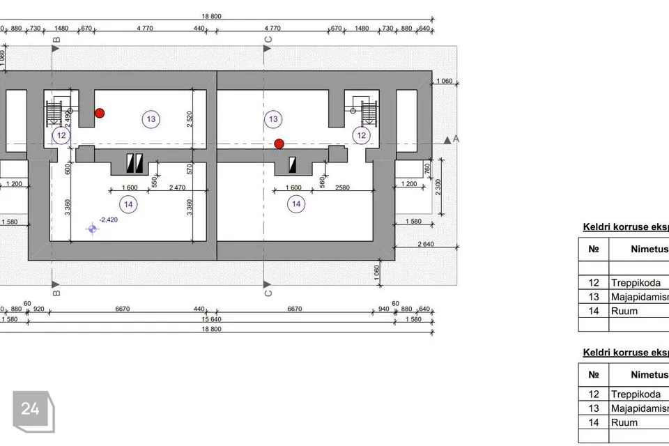
Majaosade maa-alusel korrusel asuvad puhkeruum-piljardisaal ning majandusruumid. Maa-aluste korruste pindala vastavalt 37,4 m² Pargi 37/1 ja 37,33 m² Pargi 37/2 (keldriruumid on omavahel ühendatud).
Maja ümber on tänavakividest pandus ning maja taga tänavakividest plats, mida võib kasutada mitmel otstarbel (terrassina, auto parklana).
Soovi korral võib osta ka ühe osa majast (ühe kinnistu).
SOBIB HÄSTI PEREELAMUKS VÕI ÜÜRIMAJAKS-HOSTELIKS.
JAGA MINU KONTAKTI KÕIGILE, KES VAJAVAD KINNISVARANÕU!
- - - - - - - - - -
Telli hindamine UUS MAA Kinnisvarabüroolt https://uusmaa.ee/teenused/hindamine/
ning saad:
- Eksperthinnangu kuni 20% soodsamalt kui võtad koduga seotud laenu Swedbankist
- Pankadest parimad kodulaenutingimused
- Kiire, kvaliteetse ning usaldusväärse hindamisteenuse Eestis
UUS MAA KINNISVARABÜROO EKSPERTHINNANGUID AKTSEPTEERIVAD KÕIK FINANTSASUTUSED.
- - - - - - - - - -
Liitu Uus Maa uudiskirjaga ja saa homset kinnisvarainfot juba täna!
https://www.uusmaa.ee/uudiskirjagaliitumine/
- - - - - - - - - -
Kodu aitab osta Swedbank.
Pakkumise saamiseks kasuta koodi UUSMAA ja Sind teenindatakse eelisjärjekorras.
Võtame ühendust 1 tööpäeva jooksul.
Uus Maa kliendile soodsam lepingutasu. Küsi täpsemat infot maaklerilt.
Finantsteenuseid pakub Swedbank AS. Tutvu tingimustega, pea nõu.
Majaosad on identsed - kummaski pooles on 1. korrusel 2 tuba, köök, duširuum, tualett ja 2 .korrusel 2 magamistuba, puhketuba, pesuruum-tualett. Paarismaja peale kokku on 8 tuba.
Maja on 2013. a renoveeritud, vahetatud on katusekate, aknad ja uksed, soojustatud vundament, välisseinad ja katus. Hoone välisviimistluse seisukord on väga hea. Hoones on vahetatud kõik tehnosüsteemid, paigaldatud uued kütteradiaatorid ja uus sanitaartehnika, san.ruumides paigaldatud põrandaküte. Ruumide siseviimistlus on samuti uus, siseviimistluse tase ja üldine seisukord väga hea.
Hoonesse on paigaldatud valvesignalisatsioon.
Tehnovõrgud:
Veevarustus - tsentraalne külmaveevarustus, uus torustik, soe vesi elektriboileriga;
Kanalisatsioon - tsentraalne, uus torustik;
Küttesüsteem - kaug-keskküte, uus soojatorustik ja uued plekkradiaatorid. Lisakson san.ruumides paigaldatud elektriline põrandaküte;
Elektrivarustus - 220V, uus elektrisüsteem;
Pliit / sanitaartehnika - elektripliit / uus, väga heas seisukorras;
Majaosade maa-alusel korrusel asuvad puhkeruum-piljardisaal ning majandusruumid. Maa-aluste korruste pindala vastavalt 37,4 m² Pargi 37/1 ja 37,33 m² Pargi 37/2 (keldriruumid on omavahel ühendatud).
Maja ümber on tänavakividest pandus ning maja taga tänavakividest plats, mida võib kasutada mitmel otstarbel (terrassina, auto parklana).
Soovi korral võib osta ka ühe osa majast (ühe kinnistu).
SOBIB HÄSTI PEREELAMUKS VÕI ÜÜRIMAJAKS-HOSTELIKS.
JAGA MINU KONTAKTI KÕIGILE, KES VAJAVAD KINNISVARANÕU!
- - - - - - - - - -
Telli hindamine UUS MAA Kinnisvarabüroolt https://uusmaa.ee/teenused/hindamine/
ning saad:
- Eksperthinnangu kuni 20% soodsamalt kui võtad koduga seotud laenu Swedbankist
- Pankadest parimad kodulaenutingimused
- Kiire, kvaliteetse ning usaldusväärse hindamisteenuse Eestis
UUS MAA KINNISVARABÜROO EKSPERTHINNANGUID AKTSEPTEERIVAD KÕIK FINANTSASUTUSED.
- - - - - - - - - -
Liitu Uus Maa uudiskirjaga ja saa homset kinnisvarainfot juba täna!
https://www.uusmaa.ee/uudiskirjagaliitumine/
- - - - - - - - - -
Kodu aitab osta Swedbank.
Pakkumise saamiseks kasuta koodi UUSMAA ja Sind teenindatakse eelisjärjekorras.
Võtame ühendust 1 tööpäeva jooksul.
Uus Maa kliendile soodsam lepingutasu. Küsi täpsemat infot maaklerilt.
Finantsteenuseid pakub Swedbank AS. Tutvu tingimustega, pea nõu.









































































