Ihasalus on müüki tulnud suur kinnistu oma liivaranna ja lauteri kohaga. Kinnistul asub kalurikülale omases stiilis elumaja 1930ndatest aastatest ja valmimisjärgus olev A-energiaklassiga eluhoone, mille saab projekti järgi galerii läbi vanema eluhoonega ühendada. Seega on võimalik nautida nii uue maja energiasäästlikust kui vana hoone ajaloolisust
UUS MAJA JA VANA MAJA
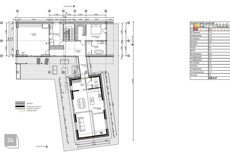
Hoone on projekteeritud A-energiaklassile vastavaks, katusel on 15 kW jagu päikesepaneele ja seinad on laotud Weber FIBO 5 200mm kergplokkidest. Maja on soojustatud 140 mm Kingspan soojustusplaadiga. Maja katusel on stiilne tume Velux katusekivi. Valmimisjärgus hoone on kahe korruseline. Maja peasissepääs on maja keskel, mille kaudu astute suurde koridori (19,4 m²), hoone õhtupäikese poolsel küljel on multifunktsionaalne töötuba (38,3 m²) kuhu saab rajada näiteks suure köögi või söögitoa, kodukontori või kasvõi piljardiruumi. Töötoast pääseb eraldi sissepääsuga soovi korral terrassile. Esimesel korrusel on veel kaks merevaatega ruumi: n.ö. master magamistuba (19,7 m²) ja vannituba (10,6 m²) Hoone keskele jääb 11,5 m² suurune tehnoruum, kus asuvad päikesepaneelide juhtseade, õhk-vesi soojuspumba ja ventilatsiooni agregaadid.
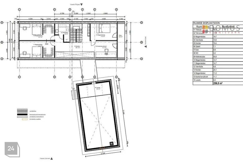
Teisele korrusele saab trepist kus asub koridor-trepihall (24,1 m²), vannituba (4,8 m²), kaks identse suurusega magamistuba (14,7 m²) mis jäävad sisehoovi ja õhtupäikese poole. Teises tiivas on magamistuba (11,2 m²) suure rõduga (9 m²) hunnitu vaatega Kaberneeme lahele. Teisel pool seina on kontorinurk, (11,1 m²), lisaseina ehitamisel saab soovi korral muuta selle ruumi neljandaks magamistoaks. Ka sellest ruumist pääseb rõdule merevaadet nautima.
Kahe maja vahele on projektis ette nähtud klaasist galerii (7,1 m²) ehitamine.
Vana maja on jäänud truuks klassikalisele kalurikülale omasele stiilile, maja esimesel korrusel on eksponeeritud vanad puitseinad ja originaal aknad. Sooja annab majas töökorras pliit ja soojamüür. Maja ise on Ehitusregistri andmetel 88,9 m² suurune ja kolme toaga. Kinnistul on salvkaev ja kinnistu piiril majast veidi eemal on biopuhasti. Eraldi, 109 m² suurusel kinnistul asub vana saun. Saunahoonega kinnistu müüakse koos suurema kinnistuga.
Mereranna piirist vaid kümnekonna meetri kaugusel asub rekonstrueeritud paadikuur, milles olemas nii garaaž paatidele ja sup laudadele kui ka mahukas puhkeruum tuleasemega. Suvel saab seal meeldivalt pere või sõpradega aega veeta ja merevaadet nautida! Maja sisehoovis on võimalik vanale vundamendile ehitada abihoone, näiteks saun või grillimaja. Kinnistul on veel tänapäevane puukuur (20 m²). Kinnistu maastik on mitmekesime, kinnistul on palju erinevaid viljapuid ja põõsaid.
ASUKOHT
Ihasalu küla on väga eriline koht elamiseks.
Siin on vaid mõned põhjused, miks seda kohta nii kõrgelt hinnatakse: Looduse ilu: Ihasalu paikneb mere ääres ning küla lähedal on kaunid rannad ja metsad. See loob rahuliku ja looduslähedase elukeskkonna, mis sobib ideaalselt neile, kes soovivad linnamelust eemale saada.
Lähedus Tallinnale: Kuigi küla ise on rahulik ja looduslähedane, on Tallinn suhteliselt lühikese (Tallinna kesklinn 35 km ja 35 minutilise) autosõidu kaugusel. See muudab küla suurepäraseks valikuks neile, kes soovivad maal elada, kuid peavad aeg-ajalt pealinnas käima.
Kogukond: Ihasalu küla on oma kogukonna kokkuhoidvuse poolest eriline. Siin on sõbralikud naabrid ja tihe läbikäimine kohalike inimeste vahel.
Ühisüritusi toimub Ihasalu Külaseltsi poolt hallatavas seltsimajas, mida saab soovi korral üritusteks rentida ja kus toimuvad ühised Vabariigi aastapäeva tähistamised, Muinastulede öö üritus jpm.
Vaikus ja rahu: Tänu väikesele elanike arvule on Ihasalu külas vaikne ja rahulik õhkkond. Siin saab tõeliselt lõõgastuda ja stressi maandada. Enamasti saab nautida linnulaulu ja merekohinat.
Kahe kilomeetri kaugusel Neeme külas asub Neeme kool ( 6-klassiline), lasteaed, rahvamaja, muusikakool, raamatukogu, Neeme kauplus ja kohvik ning sadam, kus on võimalik randuda väikestel ja keskmise suurusega alustel. Neemel asuvad ka hinnatud vahemerehõnguline restoran Mere Koho ja kevad-suvel avatud olev Wana Kala Kõrts.
Ihasalu on koht, kus paljud sooviksid elada kuid vähesed saavad oma unistuse teoks teha! Aga nüüd on ka Sinul see võimalus!
Võta palun ühendust ja lepime kokku, millal on võimalik selle ainulaadse kinnistuga tutvuma tulla!
P.S. Kui kaalud enda kinnisvara müümist, siis aitan Sind selles protsessis meeleldi!
Rain Õisnurm Maakler / Konsultant
Pangad pakuvad Domus Kinnisvara klientidele eluasemelaenu lepingutasu soodustusi. Küsi lisainfot Domus Kinnisvara maaklerilt või hindajalt.
Müü ja hinda meiega! Teeme kinnisvara müügi Sinu jaoks sujuvaks ja pingevabaks.
UUS MAJA JA VANA MAJA
Hoone on projekteeritud A-energiaklassile vastavaks, katusel on 15 kW jagu päikesepaneele ja seinad on laotud Weber FIBO 5 200mm kergplokkidest. Maja on soojustatud 140 mm Kingspan soojustusplaadiga. Maja katusel on stiilne tume Velux katusekivi. Valmimisjärgus hoone on kahe korruseline. Maja peasissepääs on maja keskel, mille kaudu astute suurde koridori (19,4 m²), hoone õhtupäikese poolsel küljel on multifunktsionaalne töötuba (38,3 m²) kuhu saab rajada näiteks suure köögi või söögitoa, kodukontori või kasvõi piljardiruumi. Töötoast pääseb eraldi sissepääsuga soovi korral terrassile. Esimesel korrusel on veel kaks merevaatega ruumi: n.ö. master magamistuba (19,7 m²) ja vannituba (10,6 m²) Hoone keskele jääb 11,5 m² suurune tehnoruum, kus asuvad päikesepaneelide juhtseade, õhk-vesi soojuspumba ja ventilatsiooni agregaadid.
Teisele korrusele saab trepist kus asub koridor-trepihall (24,1 m²), vannituba (4,8 m²), kaks identse suurusega magamistuba (14,7 m²) mis jäävad sisehoovi ja õhtupäikese poole. Teises tiivas on magamistuba (11,2 m²) suure rõduga (9 m²) hunnitu vaatega Kaberneeme lahele. Teisel pool seina on kontorinurk, (11,1 m²), lisaseina ehitamisel saab soovi korral muuta selle ruumi neljandaks magamistoaks. Ka sellest ruumist pääseb rõdule merevaadet nautima.
Kahe maja vahele on projektis ette nähtud klaasist galerii (7,1 m²) ehitamine.
Vana maja on jäänud truuks klassikalisele kalurikülale omasele stiilile, maja esimesel korrusel on eksponeeritud vanad puitseinad ja originaal aknad. Sooja annab majas töökorras pliit ja soojamüür. Maja ise on Ehitusregistri andmetel 88,9 m² suurune ja kolme toaga. Kinnistul on salvkaev ja kinnistu piiril majast veidi eemal on biopuhasti. Eraldi, 109 m² suurusel kinnistul asub vana saun. Saunahoonega kinnistu müüakse koos suurema kinnistuga.
Mereranna piirist vaid kümnekonna meetri kaugusel asub rekonstrueeritud paadikuur, milles olemas nii garaaž paatidele ja sup laudadele kui ka mahukas puhkeruum tuleasemega. Suvel saab seal meeldivalt pere või sõpradega aega veeta ja merevaadet nautida! Maja sisehoovis on võimalik vanale vundamendile ehitada abihoone, näiteks saun või grillimaja. Kinnistul on veel tänapäevane puukuur (20 m²). Kinnistu maastik on mitmekesime, kinnistul on palju erinevaid viljapuid ja põõsaid.
ASUKOHT
Ihasalu küla on väga eriline koht elamiseks.
Siin on vaid mõned põhjused, miks seda kohta nii kõrgelt hinnatakse: Looduse ilu: Ihasalu paikneb mere ääres ning küla lähedal on kaunid rannad ja metsad. See loob rahuliku ja looduslähedase elukeskkonna, mis sobib ideaalselt neile, kes soovivad linnamelust eemale saada.
Lähedus Tallinnale: Kuigi küla ise on rahulik ja looduslähedane, on Tallinn suhteliselt lühikese (Tallinna kesklinn 35 km ja 35 minutilise) autosõidu kaugusel. See muudab küla suurepäraseks valikuks neile, kes soovivad maal elada, kuid peavad aeg-ajalt pealinnas käima.
Kogukond: Ihasalu küla on oma kogukonna kokkuhoidvuse poolest eriline. Siin on sõbralikud naabrid ja tihe läbikäimine kohalike inimeste vahel.
Ühisüritusi toimub Ihasalu Külaseltsi poolt hallatavas seltsimajas, mida saab soovi korral üritusteks rentida ja kus toimuvad ühised Vabariigi aastapäeva tähistamised, Muinastulede öö üritus jpm.
Vaikus ja rahu: Tänu väikesele elanike arvule on Ihasalu külas vaikne ja rahulik õhkkond. Siin saab tõeliselt lõõgastuda ja stressi maandada. Enamasti saab nautida linnulaulu ja merekohinat.
Kahe kilomeetri kaugusel Neeme külas asub Neeme kool ( 6-klassiline), lasteaed, rahvamaja, muusikakool, raamatukogu, Neeme kauplus ja kohvik ning sadam, kus on võimalik randuda väikestel ja keskmise suurusega alustel. Neemel asuvad ka hinnatud vahemerehõnguline restoran Mere Koho ja kevad-suvel avatud olev Wana Kala Kõrts.
Ihasalu on koht, kus paljud sooviksid elada kuid vähesed saavad oma unistuse teoks teha! Aga nüüd on ka Sinul see võimalus!
Võta palun ühendust ja lepime kokku, millal on võimalik selle ainulaadse kinnistuga tutvuma tulla!
P.S. Kui kaalud enda kinnisvara müümist, siis aitan Sind selles protsessis meeleldi!
Rain Õisnurm Maakler / Konsultant
Pangad pakuvad Domus Kinnisvara klientidele eluasemelaenu lepingutasu soodustusi. Küsi lisainfot Domus Kinnisvara maaklerilt või hindajalt.
Müü ja hinda meiega! Teeme kinnisvara müügi Sinu jaoks sujuvaks ja pingevabaks.


































