MAJA
Maja ehitatud poorbetoonist plokkidest 400 mm, seinad väljast soojustatud 100 mm EPS, vundament on soojustatud. Katuse soojustus 350 mm kivivilla. Katusel bituumenrullmaterjal. Kütteallikaks on ökonoomne maaküte. Maja fassaad on krohvitud valgeks ning puitosad, välisuks ja aknaplekid on tumehallid. Eritellimusega köök koos tehnikuga: kaks külmikut, keraamiline pliit, võimasõhupasti, nõudepesumasin ja ahi. Vannitos akrüülvann, kaks WC ja sundventilatsioon.
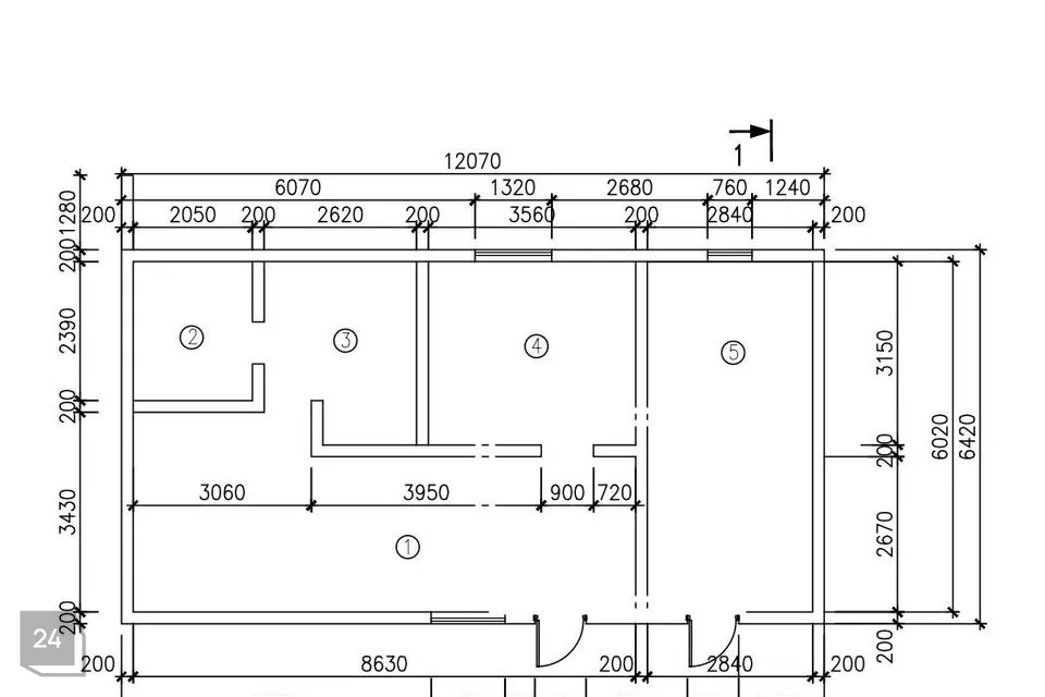
Majal on üks korrus suletud netopinnaga 103.1 m2, lisaks terrass 17.5 m2.
- Avar elutuba 22.4 m2 avatud köögiga 14.6 m2;
- 3 magamistuba suurustega 14.1 m2 + 11.6 m2 + 10.9 m2;
- vannituba 7.8 m2;
- Esik garderoobiga 11.6 m2
- Tehnoruum 8.6 m2;
- Eraldi wc ruum 1.5 m2;
- Terrass 17.5 m2;
PLANEERING
Maja koosseisu kuuluvad avar esik, suur elutuba kööginurgaga, 3 magamistuba, tehnoruum, dušširuum, wc. Planeeringuga tutvumiseks palume tutvuda kuulutuse piltide juurde lisatud plaaniga.
ABIHOONE
Suletud netopind kokku on 66.2 m2. Majas on elekter, vesi, kanalisatsioon ja saun. Planeeringuga tutvumiseks palume tutvuda kuulutuse piltide juurde lisatud plaaniga.
KÜTE / ELEKTER / VESI
Majas on vesipõrandaküte. Elektri peakaitse: 3 x 25A. Maja on ühendatud tsentraalse vee ja tsentraalse kanalisatsiooni trassidega (Loo vesi).
ÜHISTRANSPORT / ÜMBRUS
Maardu teel 400 m kaugusel asub Lepalinnu peatus, kuskohas peatuvad bussid 102,103,172,173 millised tagavad Tallinnaga, Maardu linnaga, Piritaga hea ühenduse. Maardu linn asub 1km kaugusel, kus asuvad poed: Maxima, Rimi, Prisma, Selver, koolid: Maardu Põhikool, Kallavere Keskkool, Maardu Gümnaasium, Maardu Kunstide Kool, 4 lasteaiad, spordikeskus, ujula, söögikohad, raamatukogu, kultuurikeskus, apteekid, tervisekeskus
LISAINFO
Kui soovid seda suurepärast kodu vaatama tulla siis anna mulle teada!
Maja ehitatud poorbetoonist plokkidest 400 mm, seinad väljast soojustatud 100 mm EPS, vundament on soojustatud. Katuse soojustus 350 mm kivivilla. Katusel bituumenrullmaterjal. Kütteallikaks on ökonoomne maaküte. Maja fassaad on krohvitud valgeks ning puitosad, välisuks ja aknaplekid on tumehallid. Eritellimusega köök koos tehnikuga: kaks külmikut, keraamiline pliit, võimasõhupasti, nõudepesumasin ja ahi. Vannitos akrüülvann, kaks WC ja sundventilatsioon.
Majal on üks korrus suletud netopinnaga 103.1 m2, lisaks terrass 17.5 m2.
- Avar elutuba 22.4 m2 avatud köögiga 14.6 m2;
- 3 magamistuba suurustega 14.1 m2 + 11.6 m2 + 10.9 m2;
- vannituba 7.8 m2;
- Esik garderoobiga 11.6 m2
- Tehnoruum 8.6 m2;
- Eraldi wc ruum 1.5 m2;
- Terrass 17.5 m2;
PLANEERING
Maja koosseisu kuuluvad avar esik, suur elutuba kööginurgaga, 3 magamistuba, tehnoruum, dušširuum, wc. Planeeringuga tutvumiseks palume tutvuda kuulutuse piltide juurde lisatud plaaniga.
ABIHOONE
Suletud netopind kokku on 66.2 m2. Majas on elekter, vesi, kanalisatsioon ja saun. Planeeringuga tutvumiseks palume tutvuda kuulutuse piltide juurde lisatud plaaniga.
KÜTE / ELEKTER / VESI
Majas on vesipõrandaküte. Elektri peakaitse: 3 x 25A. Maja on ühendatud tsentraalse vee ja tsentraalse kanalisatsiooni trassidega (Loo vesi).
ÜHISTRANSPORT / ÜMBRUS
Maardu teel 400 m kaugusel asub Lepalinnu peatus, kuskohas peatuvad bussid 102,103,172,173 millised tagavad Tallinnaga, Maardu linnaga, Piritaga hea ühenduse. Maardu linn asub 1km kaugusel, kus asuvad poed: Maxima, Rimi, Prisma, Selver, koolid: Maardu Põhikool, Kallavere Keskkool, Maardu Gümnaasium, Maardu Kunstide Kool, 4 lasteaiad, spordikeskus, ujula, söögikohad, raamatukogu, kultuurikeskus, apteekid, tervisekeskus
LISAINFO
Kui soovid seda suurepärast kodu vaatama tulla siis anna mulle teada!
















































