MAJA
Müügile on tulnud kaunis ja funktsionaalne targa maja lahendustega eramu, hinnatud rannarajoonis mändide all, Neeme külas. Rand ca 500 m kaugusel.
See hubane kodu pakub idüllilisi vaateid igal aastaajal, suurtest akendest, männimetsale.
Maja on valminud aastal 2022.
Planeering on läbi mõeldud ja väga praktiline.
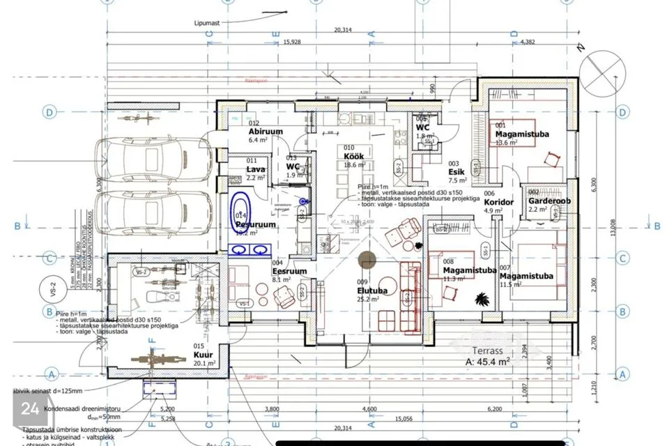
Maja suletud netopind on 156 m², ning eluruumide pind 131,8 m² - selle koosseisu kuuluvad:
Elutuba koos avatud köögiga, 3 eraldi magamistuba, suur esik, majapidamisruum, vannituba koos leiliruumi ja tualetiga ning avar sauna-eesruum, lisaks eraldi teine tualett esikus.
Tegemist on 1-korruselise eramuga, mille tehnoruum on viidud pööningule. Tekitatud on ka elutoa kohale avar rõdu, mida võiks kasutada näiteks kodukontorina.
Kodu südameks on kõrge laega avar elutuba, kus hubase meeleolu loob kamin ja imeline vaade suurest aknast männimetsale.
Köögi poolel on kvaliteetne ja hästi läbi mõeldud köögimööbel, koos integreeritud tehnikaga. Olemas on ka veinikülmik.
Köögi poolel on lisaväärtusena köögisegisti joogivee filtriga, jahutuse ja mulliga, köögihunt, et bio jäätmed mugavalt ära visata, Bora pliit, täiskõrguses jahekapp ja sama suur sügavkülmik abiruumis, XXL Electrolux nõudepesumasin koos kõrgemale tõstetava alumise riiuliga, mugavaks kasutamiseks.
Köögikappidesse on sisse ehitatud nutikad lahendused, köögis on väga palju kapiruumi ja panipaiku.
Köögist edasi pääseb majapidamisruumi, kus on samuti mahukas kvaliteetne sisse ehitatud mööbel, pesumasin ja kuivati ning mugavaks toimetamiseks kapi sisse ehitatud triikimissüsteem.
Avarasse vannituppa, mis on koos ilusa leiliruumi ja eraldi tualetiga, pääseb nii majapidamisruumi/köögi kaudu, kui ka eesruumi/elutoa kaudu.
Vannitoas on avar dušinurk, kaunis klaasist leiliruum ning jäetud on ka vanni paigaldamise võimalus. Vannitoast/saunast pääseb otse eesruumi, mida võib kasutada ka külalistetoana.
Privaatne eraldi ruum pääsuga otse terrassile, et mõnusaid saunaõhtuid nautida.
Majas on 3 avarat magamistuba, millest ühes walk-in garderoob. Kahest magamistoast, elutoast ja sauna-eesruumist pääs otse terrassile.
Terrassi pinda on maja taga 45 m² ning maja ees 20 m².
Lisaks on maja küljel kahele autole varjualune 32 m² ning eraldi soe kuur/garaaž 21 m² .
Maja juurde viib eratee, mida kasutavad vaid naabrid. Väga privaatne ja vaikne asukoht.
TEHNILISED ANDMED - KÜTE VENT
Välisseinad ehitatud Baurocist, lisaks soojustatud villaga.
Läbi viidud radooni uuring ja paigaldatud kaevud. Nii sise kui ka väliviimistluses kasutatud materjalid on hoolega valitud ja kvaliteetsed. Puitaknad Vikingist, uksed Haapsalu uksetehasest.
Küttelahendus on õhk-vesi soojuspump, ruumides vesi-põrandaküte.
Soojustagastusega sundventilatsioon ja soojust salvestav kamin-ahi.
Garaažis eraldi soojustagastusega ventseade. Majja tuleb teenusepakkujast sõltumatu optiline kaabel.
TARGA MAJA LAHENDUSED - mugav ja tuvaline kodu
Targa maja lahendused (Fibaro) ja G4S valve.
Targa maja lahendusega on ühendatud kardinad, valgustid, temperatuuri seadistamine, valve jm.
Kõike on võimalik juhtida app-ist, distantsilt, kasvõi reisil olles.
Majal on tark lukk, mille abiga saab ukse kaugjuhtimisel avada ning sulgeda.
* Majal on olemas kasutusluba ja kogu projekti dokumentatsioon.
LISAD
Garaažis on lõpuni välja ehitamata, aga olemas, koera dušš. Ideaalselt sobilik ka mustade sporditarvete pesemiseks, näiteks kalipsod jms.
Majas on generaatori ühendamise valmidus.
Elektriauto laadimise valmidus.
ÜMBRUS TRANSPORT
Neeme küla asub Tallinna kesklinnast vaid 30 minutilise autosõidu kaugusel.
Täielikult välja arenenud elukeskkond hinnatud rannarajoonis - Neeme külas on olemas lasteaed ja algkool (6-klassi), mis asub paarisaja meetri kaugusel majast.
Lisaks on külas mänguväljakud, noortetuba, rannavolle väljak ning tänavakorvpalli plats. Neeme pood ja kohvik, restoran Mere Koho, Wana Kala kõrts.
Majast paarisaja meetri kaugusele jääb bussipeatus Neeme.
5-minutilise jalutuskäigu kaugusel - buss 159 - Neeme-Balti Jaam.
LISAINFO
Oled väga oodatud selle imelise koduga tutvuma - palun võta ühendust telefoni või e-maili teel ning lepime maja vaatamise aja kokku.
Müügile on tulnud kaunis ja funktsionaalne targa maja lahendustega eramu, hinnatud rannarajoonis mändide all, Neeme külas. Rand ca 500 m kaugusel.
See hubane kodu pakub idüllilisi vaateid igal aastaajal, suurtest akendest, männimetsale.
Maja on valminud aastal 2022.
Planeering on läbi mõeldud ja väga praktiline.
Maja suletud netopind on 156 m², ning eluruumide pind 131,8 m² - selle koosseisu kuuluvad:
Elutuba koos avatud köögiga, 3 eraldi magamistuba, suur esik, majapidamisruum, vannituba koos leiliruumi ja tualetiga ning avar sauna-eesruum, lisaks eraldi teine tualett esikus.
Tegemist on 1-korruselise eramuga, mille tehnoruum on viidud pööningule. Tekitatud on ka elutoa kohale avar rõdu, mida võiks kasutada näiteks kodukontorina.
Kodu südameks on kõrge laega avar elutuba, kus hubase meeleolu loob kamin ja imeline vaade suurest aknast männimetsale.
Köögi poolel on kvaliteetne ja hästi läbi mõeldud köögimööbel, koos integreeritud tehnikaga. Olemas on ka veinikülmik.
Köögi poolel on lisaväärtusena köögisegisti joogivee filtriga, jahutuse ja mulliga, köögihunt, et bio jäätmed mugavalt ära visata, Bora pliit, täiskõrguses jahekapp ja sama suur sügavkülmik abiruumis, XXL Electrolux nõudepesumasin koos kõrgemale tõstetava alumise riiuliga, mugavaks kasutamiseks.
Köögikappidesse on sisse ehitatud nutikad lahendused, köögis on väga palju kapiruumi ja panipaiku.
Köögist edasi pääseb majapidamisruumi, kus on samuti mahukas kvaliteetne sisse ehitatud mööbel, pesumasin ja kuivati ning mugavaks toimetamiseks kapi sisse ehitatud triikimissüsteem.
Avarasse vannituppa, mis on koos ilusa leiliruumi ja eraldi tualetiga, pääseb nii majapidamisruumi/köögi kaudu, kui ka eesruumi/elutoa kaudu.
Vannitoas on avar dušinurk, kaunis klaasist leiliruum ning jäetud on ka vanni paigaldamise võimalus. Vannitoast/saunast pääseb otse eesruumi, mida võib kasutada ka külalistetoana.
Privaatne eraldi ruum pääsuga otse terrassile, et mõnusaid saunaõhtuid nautida.
Majas on 3 avarat magamistuba, millest ühes walk-in garderoob. Kahest magamistoast, elutoast ja sauna-eesruumist pääs otse terrassile.
Terrassi pinda on maja taga 45 m² ning maja ees 20 m².
Lisaks on maja küljel kahele autole varjualune 32 m² ning eraldi soe kuur/garaaž 21 m² .
Maja juurde viib eratee, mida kasutavad vaid naabrid. Väga privaatne ja vaikne asukoht.
TEHNILISED ANDMED - KÜTE VENT
Välisseinad ehitatud Baurocist, lisaks soojustatud villaga.
Läbi viidud radooni uuring ja paigaldatud kaevud. Nii sise kui ka väliviimistluses kasutatud materjalid on hoolega valitud ja kvaliteetsed. Puitaknad Vikingist, uksed Haapsalu uksetehasest.
Küttelahendus on õhk-vesi soojuspump, ruumides vesi-põrandaküte.
Soojustagastusega sundventilatsioon ja soojust salvestav kamin-ahi.
Garaažis eraldi soojustagastusega ventseade. Majja tuleb teenusepakkujast sõltumatu optiline kaabel.
TARGA MAJA LAHENDUSED - mugav ja tuvaline kodu
Targa maja lahendused (Fibaro) ja G4S valve.
Targa maja lahendusega on ühendatud kardinad, valgustid, temperatuuri seadistamine, valve jm.
Kõike on võimalik juhtida app-ist, distantsilt, kasvõi reisil olles.
Majal on tark lukk, mille abiga saab ukse kaugjuhtimisel avada ning sulgeda.
* Majal on olemas kasutusluba ja kogu projekti dokumentatsioon.
LISAD
Garaažis on lõpuni välja ehitamata, aga olemas, koera dušš. Ideaalselt sobilik ka mustade sporditarvete pesemiseks, näiteks kalipsod jms.
Majas on generaatori ühendamise valmidus.
Elektriauto laadimise valmidus.
ÜMBRUS TRANSPORT
Neeme küla asub Tallinna kesklinnast vaid 30 minutilise autosõidu kaugusel.
Täielikult välja arenenud elukeskkond hinnatud rannarajoonis - Neeme külas on olemas lasteaed ja algkool (6-klassi), mis asub paarisaja meetri kaugusel majast.
Lisaks on külas mänguväljakud, noortetuba, rannavolle väljak ning tänavakorvpalli plats. Neeme pood ja kohvik, restoran Mere Koho, Wana Kala kõrts.
Majast paarisaja meetri kaugusele jääb bussipeatus Neeme.
5-minutilise jalutuskäigu kaugusel - buss 159 - Neeme-Balti Jaam.
LISAINFO
Oled väga oodatud selle imelise koduga tutvuma - palun võta ühendust telefoni või e-maili teel ning lepime maja vaatamise aja kokku.

























































