MAJA KIRJELDUS:
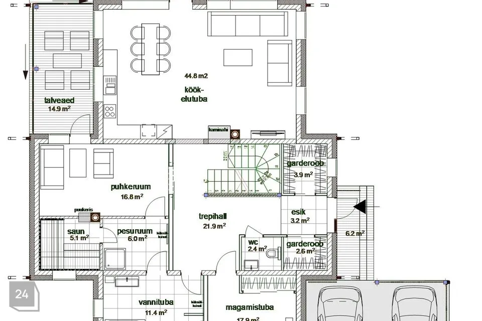
I korrus:
Köök-elutuba
Saun ja pesuruum
Puhkeruum
Trepihall
2 garderoobi
Vannituba
Magamistuba
WC
Tehniline ruum
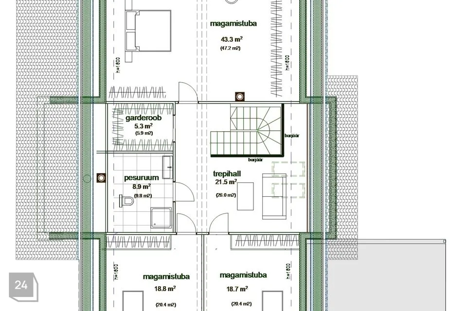
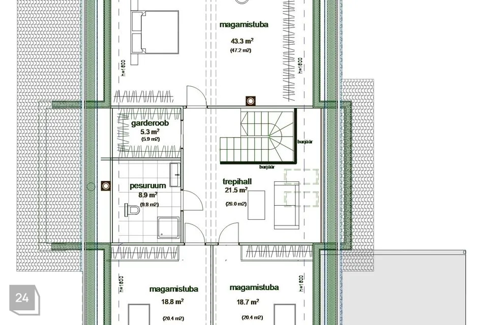
II korrus:
Magamistube 3
Garderoob
Pesuruum
Trepihall
KOMMUNIKATSIOONID:
Õhk-vesi küte
Vesi – tsentraalne
Kanalisatsioon – mahuti.
Kamin-ahi
KINNISTU:
Kinnistuni viib asfalttee, tagades kiire ja mugava ligipääsu.
Kinnistu piirneb jõega, pakkudes võimalusi rannas puhkamiseks, kalastamiseks või lihtsalt looduse nautimiseks.
Maakelder 20 m²
Kinnistut läbib ka oja
See kodu on ideaalne valik neile, kes hindavad looduse rahu, luksuslikku elukeskkonda ja turvalist elukeskkonda. Tule tutvu oma uue koduga juba täna!
PIIRKOND:
Rahulik väikeelamute piirkond Jägala külas – ideaalne koht neile, kes otsivad rahu ja looduse lähedust.
Kinnistu piirneb Jägala jõega.
Suvel saad nautida ujumist, kalastamist ja kanuusõitu.
Jõgi on ideaalne paik jalutamiseks, linnulaulu kuulamiseks ja looduse nautimiseks.
Turvaline elukeskkond linnakärast eemal, samas Tallinna kesklinna sõidab vaid 25 minutiga, mis tagab mugava igapäevase töö- ja elukorralduse.
POED JA TEENUSED:
Koogi pood – 4,8 km.
Olerex Jõelähtme – 6,8 km.
Maardu erinevad kauplused (Selver, Prisma, Rimi, Maxima) – 16 km kaugusel.
Rimi Peterburi mnt. – 19 km.
Lasnamäe Maximarket – 23 km kaugusel.
KOOLID JA LASTEAIAD:
Kooli- ja lasteaiavõimalused on saadaval lähedal asuvates kohtades: Kostivere, Kehras, Kuusalus, Maardus ja Lool.
See piirkond pakub ideaalset tasakaalu rahu, looduse ja igapäevaelu mugavuste vahel. Tule ja tutvu oma tulevase koduga Jägala külas juba täna!
OSTUPROTSESS
Võimalus koheselt välja osta:
Osta oma uus kodu koheselt välja ja saa oma unistuste kodu juba täna!
Võlaõiguslik broneerimisleping:
Kui soovid maja osta, kuid soovisid teha väiksema sissemakse kuni maja valmimiseni, siis saad sõlmida notariaalse Võlaõigusliku broneerimislepingu.
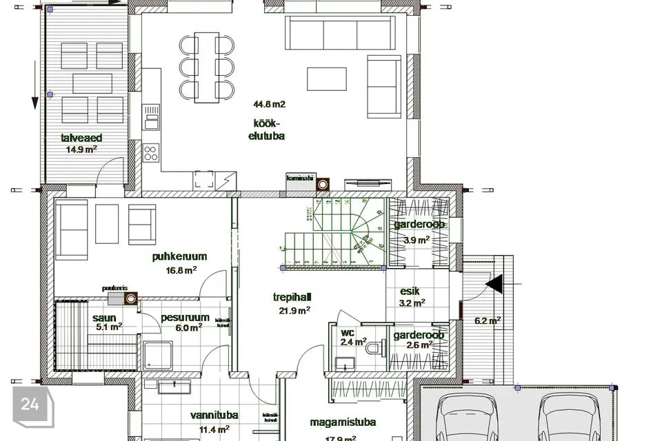
I korrus:
Köök-elutuba
Saun ja pesuruum
Puhkeruum
Trepihall
2 garderoobi
Vannituba
Magamistuba
WC
Tehniline ruum
II korrus:
Magamistube 3
Garderoob
Pesuruum
Trepihall
KOMMUNIKATSIOONID:
Õhk-vesi küte
Vesi – tsentraalne
Kanalisatsioon – mahuti.
Kamin-ahi
KINNISTU:
Kinnistuni viib asfalttee, tagades kiire ja mugava ligipääsu.
Kinnistu piirneb jõega, pakkudes võimalusi rannas puhkamiseks, kalastamiseks või lihtsalt looduse nautimiseks.
Maakelder 20 m²
Kinnistut läbib ka oja
See kodu on ideaalne valik neile, kes hindavad looduse rahu, luksuslikku elukeskkonda ja turvalist elukeskkonda. Tule tutvu oma uue koduga juba täna!
PIIRKOND:
Rahulik väikeelamute piirkond Jägala külas – ideaalne koht neile, kes otsivad rahu ja looduse lähedust.
Kinnistu piirneb Jägala jõega.
Suvel saad nautida ujumist, kalastamist ja kanuusõitu.
Jõgi on ideaalne paik jalutamiseks, linnulaulu kuulamiseks ja looduse nautimiseks.
Turvaline elukeskkond linnakärast eemal, samas Tallinna kesklinna sõidab vaid 25 minutiga, mis tagab mugava igapäevase töö- ja elukorralduse.
POED JA TEENUSED:
Koogi pood – 4,8 km.
Olerex Jõelähtme – 6,8 km.
Maardu erinevad kauplused (Selver, Prisma, Rimi, Maxima) – 16 km kaugusel.
Rimi Peterburi mnt. – 19 km.
Lasnamäe Maximarket – 23 km kaugusel.
KOOLID JA LASTEAIAD:
Kooli- ja lasteaiavõimalused on saadaval lähedal asuvates kohtades: Kostivere, Kehras, Kuusalus, Maardus ja Lool.
See piirkond pakub ideaalset tasakaalu rahu, looduse ja igapäevaelu mugavuste vahel. Tule ja tutvu oma tulevase koduga Jägala külas juba täna!
OSTUPROTSESS
Võimalus koheselt välja osta:
Osta oma uus kodu koheselt välja ja saa oma unistuste kodu juba täna!
Võlaõiguslik broneerimisleping:
Kui soovid maja osta, kuid soovisid teha väiksema sissemakse kuni maja valmimiseni, siis saad sõlmida notariaalse Võlaõigusliku broneerimislepingu.
--
Müüme, hindame ja teeme Sinu kinnisvara dokumendid korda - iga päev, suurima rõõmu ja pühendumisega!
Edasta müügisoov www.arcovara.ee/et/#edasta-myygisoov
Telli hindamine www.arcovara.ee/et/#telli-hindamine
Saada ehitus- või kasutusloa soov seadustamine.arcovara.ee






































