KLIENDIPÄEVA INFO
Neljapäeval, 4. detsembril 2025 kell 13:00-16:00 toimub antud maja kliendipäev.
Kliendipäeval osalemiseks ning parema teeninduse tagamiseks on vajalik eelregistreerimine.
Kliendipäeval osalemise soovist anna mulle päringuvormi või telefoni teel teada hiljemalt 3. detsembril 2025.
Tule tutvuma – ehk saab just sellest majast Sinu uus kodu.
–––––––––––––––––––––––––––––––––––-
MAJA
Värskelt valminud 4-toaline ning ühekorruseline maja on ehitatud plaatvundamendile ning laotud 420mm termoplokkidest (EPS150mm / raudbetoon 120mm / EPS150mm). Elamu märksõnadeks on energiatõhusus, praktilisus ja vastupidavus. Vundament on soojustatud 2x100mm EPS-iga. Mitte-kandvad seinad on kipsplaatidest, mille karkass on 50mm villaga vooderdatud. Lagi on soojustatud 500mm paksuselt puistevillaga ning seestpoolt kaetud topelt kipsplaatidega.
Aknad on plastikraamidel 3-kordse klaaspaketiga.
Maja fassaad on krohvitud helehalliks ning puitosad, uksed, aknaraamid ja profiilplekk katus on tumehallid, tekitades stiilse kontrasti.
Majaesine on kaetud tänavakividega, samuti on 50cm laiune tänavakivist äär paigaldatud ümber maja.
Sisehoovis paikneb 34,3m2 suurune päikesepoolne terrass.
Hoone suletud netopind: 149,7m2 (sisaldab garaaži 31,4m2)
Eluruumide pind: 118,3m2
Elektri peakaitse: 3 x 25A
Vee- ja kanalisatsiooni ühendused on tsentraalsed.
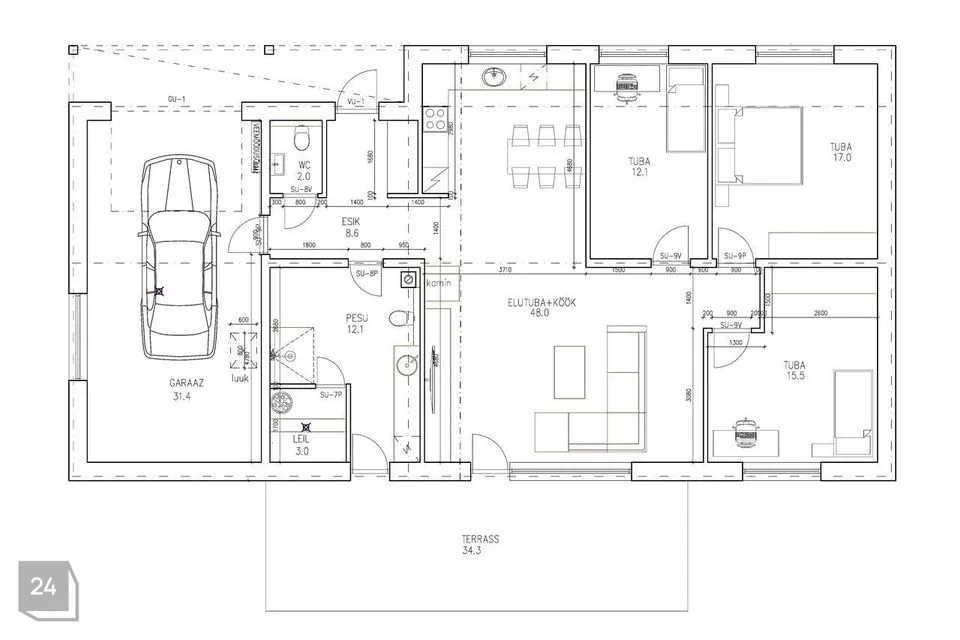
PLANEERING
Planeeringuga tutvumiseks palume tutvuda kuulutuse piltide juurde lisatud plaaniga.
SISEVIIMISTLUS
Lagi on värvitud valgeks, seinad on kruntvärviga kaetud. Uus omanik saab lõppviimistluse toonid ise valida ja värvida.
Garaaži põrand on plaaditud ning seinad värvitud. Esik ja sanitaarruumid on osaliselt plaaditud, osaliselt värvitud.
MÖÖBEL
Piltidel nähtav köögimööbel on paigaldatud ning kuulub müügihinna sisse. Köögitehnika soetab ning paigaldab ostja.
KASUTUSLUBA ENERGIAKLASS
Kasutusluba on majal olemas.
Väljastatud energiamärgis A.
GARANTII
Maja ostuga tuleb kaasa 2-aastane garantii.
KÜTE / VENTILATSIOON / KULUD
Maja kütteallikana on kasutusel Mitsubishi õhk-vesisoojuspump – vesipõrandaküte.
Igasse tuppa on paigaldatud kontroller, millest on võimalik iga toa temperatuuri eraldi muuta.
Värske õhu tagab igas ruumis soojustagastusega sundventilatsioon.
Oodatavad ülalpidamiskulud on väga madalad.
PÄIKESEPANEELID
Maja hoovipoolne katus on avatud päiksele ning katusekalle on orienteeruvalt 24 kraadi. Katusele on müüja poolt paigaldatud päikesepaneelid (3kw).
KINNISTU
Tegemist on 1496m2 suuruse tasandatud kinnistuga.
Parkimine on ette nähtud hoone ees paikneval tänavakividega sillutatud alal 2 parkimiskohaga ning üks koht on kinnises garaažis.
Kinnistu kolmes küljes on paigaldatud võrkaed. Tänavapoolne aed jääb uue omaniku poolt lahendada.
LÄHEDAL
Siin Loo aleviku piiril asuvas Liivamäe rajoonis kerkib järjest uusi, stiilsed ridaelamuid ja üksikelamuid. Piirkonna auto- ja kergliiklusteed on asfalteeritud ning valgustatud.
Loo keskus asub majast 1,8km kaugusel. Keskuses olemas toidupoed, Loo keskkool, Lasteaed, Ujula, Spordihoone, Staadion ja kõik muu vajalik.
ÜHISTRANSPORT
Saha tee ristumiskohas, 700m kaugusel asub Vanasauna tee peatus, kuskohas peatub buss 104a, mis tagab linnaga hea ühenduse.
Helista ja küsi lisainfot. Oled oodatud tutvuma!
Neljapäeval, 4. detsembril 2025 kell 13:00-16:00 toimub antud maja kliendipäev.
Kliendipäeval osalemiseks ning parema teeninduse tagamiseks on vajalik eelregistreerimine.
Kliendipäeval osalemise soovist anna mulle päringuvormi või telefoni teel teada hiljemalt 3. detsembril 2025.
Tule tutvuma – ehk saab just sellest majast Sinu uus kodu.
–––––––––––––––––––––––––––––––––––-
MAJA
Värskelt valminud 4-toaline ning ühekorruseline maja on ehitatud plaatvundamendile ning laotud 420mm termoplokkidest (EPS150mm / raudbetoon 120mm / EPS150mm). Elamu märksõnadeks on energiatõhusus, praktilisus ja vastupidavus. Vundament on soojustatud 2x100mm EPS-iga. Mitte-kandvad seinad on kipsplaatidest, mille karkass on 50mm villaga vooderdatud. Lagi on soojustatud 500mm paksuselt puistevillaga ning seestpoolt kaetud topelt kipsplaatidega.
Aknad on plastikraamidel 3-kordse klaaspaketiga.
Maja fassaad on krohvitud helehalliks ning puitosad, uksed, aknaraamid ja profiilplekk katus on tumehallid, tekitades stiilse kontrasti.
Majaesine on kaetud tänavakividega, samuti on 50cm laiune tänavakivist äär paigaldatud ümber maja.
Sisehoovis paikneb 34,3m2 suurune päikesepoolne terrass.
Hoone suletud netopind: 149,7m2 (sisaldab garaaži 31,4m2)
Eluruumide pind: 118,3m2
Elektri peakaitse: 3 x 25A
Vee- ja kanalisatsiooni ühendused on tsentraalsed.
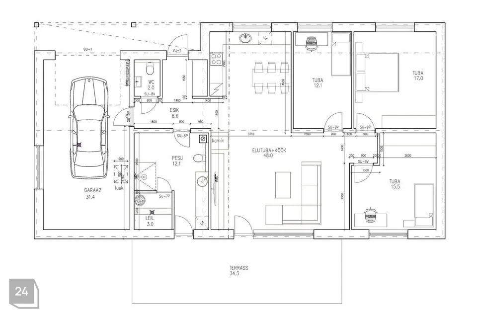
PLANEERING
Planeeringuga tutvumiseks palume tutvuda kuulutuse piltide juurde lisatud plaaniga.
SISEVIIMISTLUS
Lagi on värvitud valgeks, seinad on kruntvärviga kaetud. Uus omanik saab lõppviimistluse toonid ise valida ja värvida.
Garaaži põrand on plaaditud ning seinad värvitud. Esik ja sanitaarruumid on osaliselt plaaditud, osaliselt värvitud.
MÖÖBEL
Piltidel nähtav köögimööbel on paigaldatud ning kuulub müügihinna sisse. Köögitehnika soetab ning paigaldab ostja.
KASUTUSLUBA ENERGIAKLASS
Kasutusluba on majal olemas.
Väljastatud energiamärgis A.
GARANTII
Maja ostuga tuleb kaasa 2-aastane garantii.
KÜTE / VENTILATSIOON / KULUD
Maja kütteallikana on kasutusel Mitsubishi õhk-vesisoojuspump – vesipõrandaküte.
Igasse tuppa on paigaldatud kontroller, millest on võimalik iga toa temperatuuri eraldi muuta.
Värske õhu tagab igas ruumis soojustagastusega sundventilatsioon.
Oodatavad ülalpidamiskulud on väga madalad.
PÄIKESEPANEELID
Maja hoovipoolne katus on avatud päiksele ning katusekalle on orienteeruvalt 24 kraadi. Katusele on müüja poolt paigaldatud päikesepaneelid (3kw).
KINNISTU
Tegemist on 1496m2 suuruse tasandatud kinnistuga.
Parkimine on ette nähtud hoone ees paikneval tänavakividega sillutatud alal 2 parkimiskohaga ning üks koht on kinnises garaažis.
Kinnistu kolmes küljes on paigaldatud võrkaed. Tänavapoolne aed jääb uue omaniku poolt lahendada.
LÄHEDAL
Siin Loo aleviku piiril asuvas Liivamäe rajoonis kerkib järjest uusi, stiilsed ridaelamuid ja üksikelamuid. Piirkonna auto- ja kergliiklusteed on asfalteeritud ning valgustatud.
Loo keskus asub majast 1,8km kaugusel. Keskuses olemas toidupoed, Loo keskkool, Lasteaed, Ujula, Spordihoone, Staadion ja kõik muu vajalik.
ÜHISTRANSPORT
Saha tee ristumiskohas, 700m kaugusel asub Vanasauna tee peatus, kuskohas peatub buss 104a, mis tagab linnaga hea ühenduse.
Helista ja küsi lisainfot. Oled oodatud tutvuma!









































