Müüa energiatõhus ja kvaliteetne kivimaja looduskaunis Suurupis!
Tegemist on korralikult soojustatud kivimajaga, mille siseseinad on laotud kergplokkidest, tagades hea helipidavuse ja vastupidavuse.
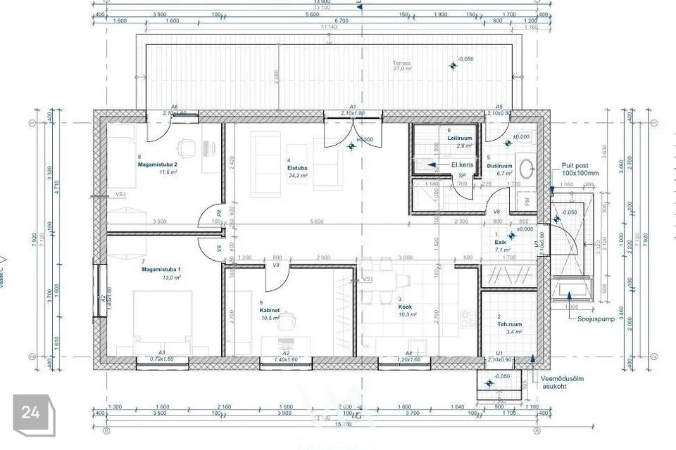
Majas on kolm magamistuba, valgusküllane elutuba ja avatud köögiala. Köögipõrand on viimistletud plaatidega. Maja müüakse ilma köögimööbli ja tehnikata, mis annab uuele omanikule võimaluse kujundada köök vastavalt oma maitsele.
Elutoast, ühest magamistoast ning saunast pääseb terrassile, mis pakub suurepärast võimalust lõõgastumiseks ja suvisteks koosviibimisteks.
• Köetav pind: 89,6 m²
• Üldpind koos terrassiga: 114,4 m²
Küte on lahendatud ökonoomse õhk-vesi põrandaküttega, lisaks on majas soojusvahetiga sundventilatsioon, mis tagab värske õhu ja madalad energiakulud. A-energiaklassi maja on varustatud kolmekordsete klaaspakettidega, mis aitavad hoida sisetemperatuuri stabiilsena igal aastaajal.
Majas on tsentraalne vesi ja kanalisatsioon. Kinnistule on paigaldatud sademeveemahuti, mille vett saab kasutada kastmiseks. Kinnistu müüakse ilma haljastuseta, jättes võimaluse kujundada aed oma soovide järgi.
Maja kasutusloa eest hoolitseb müüja.
Tegemist on korralikult soojustatud kivimajaga, mille siseseinad on laotud kergplokkidest, tagades hea helipidavuse ja vastupidavuse.
Majas on kolm magamistuba, valgusküllane elutuba ja avatud köögiala. Köögipõrand on viimistletud plaatidega. Maja müüakse ilma köögimööbli ja tehnikata, mis annab uuele omanikule võimaluse kujundada köök vastavalt oma maitsele.
Elutoast, ühest magamistoast ning saunast pääseb terrassile, mis pakub suurepärast võimalust lõõgastumiseks ja suvisteks koosviibimisteks.
• Köetav pind: 89,6 m²
• Üldpind koos terrassiga: 114,4 m²
Küte on lahendatud ökonoomse õhk-vesi põrandaküttega, lisaks on majas soojusvahetiga sundventilatsioon, mis tagab värske õhu ja madalad energiakulud. A-energiaklassi maja on varustatud kolmekordsete klaaspakettidega, mis aitavad hoida sisetemperatuuri stabiilsena igal aastaajal.
Majas on tsentraalne vesi ja kanalisatsioon. Kinnistule on paigaldatud sademeveemahuti, mille vett saab kasutada kastmiseks. Kinnistu müüakse ilma haljastuseta, jättes võimaluse kujundada aed oma soovide järgi.
Maja kasutusloa eest hoolitseb müüja.
Meie oleme VIA Kinnisvara – kutselised maaklerid, kes ühendavad kogemuse ja inimliku lähenemise.
VIA Kinnisvara sündis soovist pakkuda kinnisvarateenust, mis oleks korraga professionaalne ja inimlik. Me usume, et kinnisvara ei ole ainult ruutmeetrid, vaid ka lugu ja väärtus. VIA tähendab teekonda – kodud ja kinnisvara liiguvad ajas edasi ning meie ülesanne on teha see samm turvaliseks ja sujuvaks.

























