Eelregistreerimisega kliendipäev 30.11.2025 kell 13:00-14:00.
Müüa energiatõhus ja kvaliteetne kivimaja.
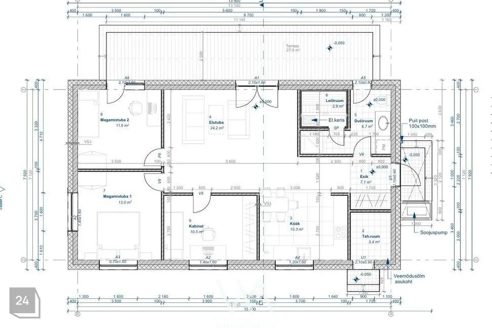
Tegemist on korralikult soojustatud kivimajaga, mille siseseinad on laotud kergplokkidest, tagades hea helipidavuse ja vastupidavuse.
Majas on kolm magamistuba, valgusküllane elutuba ja avatud köögiala. Köögipõrand on viimistletud plaatidega. Maja müüakse ilma köögimööbli ja tehnikata, mis annab uuele omanikule võimaluse kujundada köök vastavalt oma maitsele.
Elutoast, ühest magamistoast ning saunast pääseb terrassile, mis pakub suurepärast võimalust lõõgastumiseks ja suvisteks koosviibimisteks.
• Köetav pind: 89,6 m²
• Üldpind koos terrassiga: 114,4 m²
Küte on lahendatud ökonoomse õhk-vesi põrandaküttega, lisaks on majas soojusvahetiga sundventilatsioon, mis tagab värske õhu ja madalad energiakulud. A-energiaklassi maja on varustatud kolmekordsete klaaspakettidega, mis aitavad hoida sisetemperatuuri stabiilsena igal aastaajal.
Majas on tsentraalne vesi ja kanalisatsioon. Kinnistule on paigaldatud sademeveemahuti, mille vett saab kasutada kastmiseks. Kinnistu müüakse ilma haljastuseta, jättes võimaluse kujundada aed oma soovide järgi.
Kasutusluba on menetluses ning selle eest hoolitseb müüja.
Läheduses on mitmed koolid ja lasteaiad, sh Vääna-Jõesuu kool, Muraste kool, Vääna Mõisakool.
Lisaks on lähedal toidupood ning hinnatud Vääna-Jõesuu liivarand, mis pakub suurepäraseid võimalusi lõõgastuseks ja vaba aja veetmiseks
Müüa energiatõhus ja kvaliteetne kivimaja.
Tegemist on korralikult soojustatud kivimajaga, mille siseseinad on laotud kergplokkidest, tagades hea helipidavuse ja vastupidavuse.
Majas on kolm magamistuba, valgusküllane elutuba ja avatud köögiala. Köögipõrand on viimistletud plaatidega. Maja müüakse ilma köögimööbli ja tehnikata, mis annab uuele omanikule võimaluse kujundada köök vastavalt oma maitsele.
Elutoast, ühest magamistoast ning saunast pääseb terrassile, mis pakub suurepärast võimalust lõõgastumiseks ja suvisteks koosviibimisteks.
• Köetav pind: 89,6 m²
• Üldpind koos terrassiga: 114,4 m²
Küte on lahendatud ökonoomse õhk-vesi põrandaküttega, lisaks on majas soojusvahetiga sundventilatsioon, mis tagab värske õhu ja madalad energiakulud. A-energiaklassi maja on varustatud kolmekordsete klaaspakettidega, mis aitavad hoida sisetemperatuuri stabiilsena igal aastaajal.
Majas on tsentraalne vesi ja kanalisatsioon. Kinnistule on paigaldatud sademeveemahuti, mille vett saab kasutada kastmiseks. Kinnistu müüakse ilma haljastuseta, jättes võimaluse kujundada aed oma soovide järgi.
Kasutusluba on menetluses ning selle eest hoolitseb müüja.
Läheduses on mitmed koolid ja lasteaiad, sh Vääna-Jõesuu kool, Muraste kool, Vääna Mõisakool.
Lisaks on lähedal toidupood ning hinnatud Vääna-Jõesuu liivarand, mis pakub suurepäraseid võimalusi lõõgastuseks ja vaba aja veetmiseks
Meie oleme VIA Kinnisvara – kutselised maaklerid, kes ühendavad kogemuse ja inimliku lähenemise.
VIA Kinnisvara sündis soovist pakkuda kinnisvarateenust, mis oleks korraga professionaalne ja inimlik. Me usume, et kinnisvara ei ole ainult ruutmeetrid, vaid ka lugu ja väärtus. VIA tähendab teekonda – kodud ja kinnisvara liiguvad ajas edasi ning meie ülesanne on teha see samm turvaliseks ja sujuvaks.




























