Modernne eramu kõrgete lagedega – kodu Liikvas
Kui otsid kodu, kus looduslähedane rahu kohtub modernse mugavuse ja kvaliteediga, siis see eramu Liikva külas on just sinu jaoks. Tegemist on valgusküllase ja suurepärase planeeringuga B-energiaklassi koduga, mille igast detailist õhkub läbimõeldust ja kvaliteeti.
Sisenedes tervitab sind avarus ja kõrged 2,9-meetrised laed, mis annavad ruumidele erilise õhulisuse. Avar elutuba koos avatud köögiga on kodu südameks – koht, kus hommikupäike paitab aknaid ning õhtuti saab nautida kaminatule soojust. Köök on tõeline meistriteos: tammepuidust kapiuksed ja väärikas 30 mm paksune graniidist tööpind lisavad igapäevaelule luksust.
Majal on kaks magamistuba, mille kõrval asuv söögituba on soovi korral ümber kohandatav ka kolmandaks magamistoaks. Sanitaarruumid on elegantselt viimistletud – eraldi vannituba ja WC, dušinurk ning infrapunasaun, mis pakub tõelist spa-elamust oma kodus.
Kõik tehnilised lahendused on loodud mugavust ja ökonoomsust silmas pidades: Atlantic õhk-vesi soojuspump koos põrandaküttega, mille temperatuuri saab reguleerida tubade kaupa, ning Vallox soojustagastusega ventilatsioonisüsteem, mis tagab värske ja tervisliku sisekliima.
Kogu majas on kasutatud ainult kvaliteetseid materjale – naturaalne parkett, plaaditud põrandad, heli summutavad Porta siseuksed. Lisaväärtust annavad videovalve, turvasüsteem ning moodulkamin, mis loob hubasust ja turvatunnet.
Ka välisilme ei jää alla: vastupidav kivikatus, puitlaudis ja looduslik kivi annavad majale väärika ja ajatu ilme. Avarad PVC-pakettaknad täidavad ruumid valgusega.
Krunt ja ümbrus
Kinnistu on kaunilt haljastatud ja kaetud muruga, mida raamib privaatsust pakkuv elupuuhekk. Päikesepoolne terrass on ideaalne koht hommikukohvi nautimiseks või suviste õhtusöökide korraldamiseks. Ümberringi on sõbralik kogukond, naabrivalve ja tõeliselt toredad inimesed.
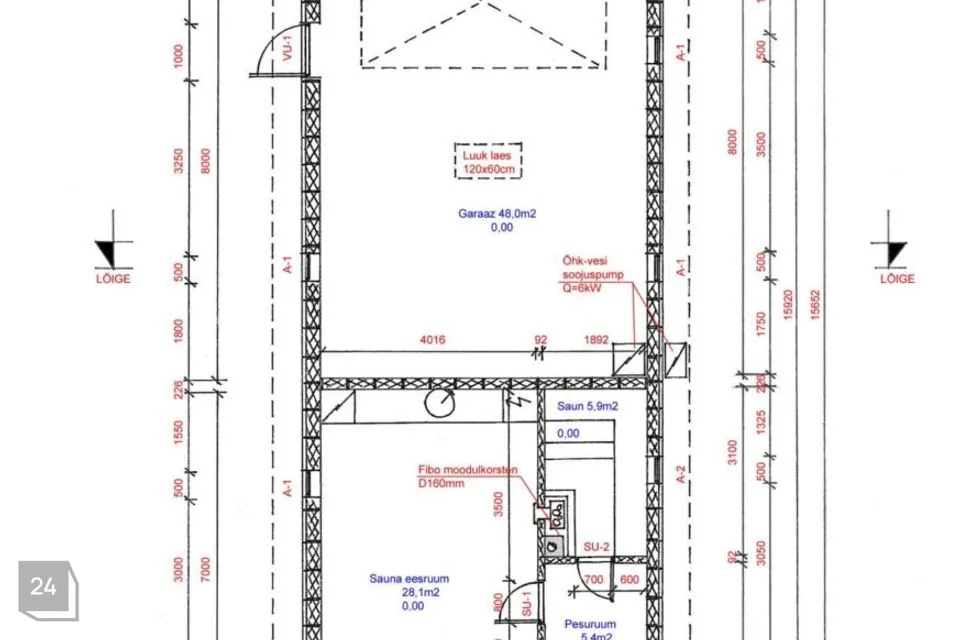
Olemas on ka garaaži ja sauna projekt koos ehitusloaga, vundamendi alus on ette valmistatud ning kommunikatsioonid – elekter, vesi ja kanalisatsioon – viidud kohale. See annab uuele omanikule võimaluse soovi korral kodu veelgi laiendada.
Asukoht
Liikva küla asukoht on justkui loodud neile, kes hindavad privaatsust ja looduslähedust, kuid ei soovi linnamugavustest loobuda. Rocca al Mare keskus jääb vaid 15-minutilise autosõidu kaugusele, Tallinna südalinna jõuab mugavalt 25 minutiga. Vääna rand – oma kauni liivaranna ja päikeseloojangu poolest hinnatud – on kõigest 10-minutilise autosõidu kaugusel.
Ka ühistransport on mugavalt kättesaadav: lähim bussipeatus jääb vaid 10-minutilise jalutuskäigu kaugusele. Lisaks on teed piirkonnas heas korras ning looduse kõrval pakuvad vaheldust metsarajad ja lähedal voolav Vääna jõgi.
See kodu on palju enamat kui lihtsalt maja – see on elustiil, mis pakub rahu, turvalisust ja igapäevast luksust. Siin on ühendatud parimad lahendused nii energiatõhususe, kvaliteedi kui ka esteetika vallas.
Kasutusluba on olemas. Kodu müüakse koos kvaliteetse köögimööbli ja tehnikaga, lisamööbli osas on võimalik teha kokkulepe.
LISAINFO
Kui tunned, et just see võiks olla sinu uus kodu, siis võta julgesti ühendust ja lähme koos vaatama.
Kui otsid kodu, kus looduslähedane rahu kohtub modernse mugavuse ja kvaliteediga, siis see eramu Liikva külas on just sinu jaoks. Tegemist on valgusküllase ja suurepärase planeeringuga B-energiaklassi koduga, mille igast detailist õhkub läbimõeldust ja kvaliteeti.
Sisenedes tervitab sind avarus ja kõrged 2,9-meetrised laed, mis annavad ruumidele erilise õhulisuse. Avar elutuba koos avatud köögiga on kodu südameks – koht, kus hommikupäike paitab aknaid ning õhtuti saab nautida kaminatule soojust. Köök on tõeline meistriteos: tammepuidust kapiuksed ja väärikas 30 mm paksune graniidist tööpind lisavad igapäevaelule luksust.
Majal on kaks magamistuba, mille kõrval asuv söögituba on soovi korral ümber kohandatav ka kolmandaks magamistoaks. Sanitaarruumid on elegantselt viimistletud – eraldi vannituba ja WC, dušinurk ning infrapunasaun, mis pakub tõelist spa-elamust oma kodus.
Kõik tehnilised lahendused on loodud mugavust ja ökonoomsust silmas pidades: Atlantic õhk-vesi soojuspump koos põrandaküttega, mille temperatuuri saab reguleerida tubade kaupa, ning Vallox soojustagastusega ventilatsioonisüsteem, mis tagab värske ja tervisliku sisekliima.
Kogu majas on kasutatud ainult kvaliteetseid materjale – naturaalne parkett, plaaditud põrandad, heli summutavad Porta siseuksed. Lisaväärtust annavad videovalve, turvasüsteem ning moodulkamin, mis loob hubasust ja turvatunnet.
Ka välisilme ei jää alla: vastupidav kivikatus, puitlaudis ja looduslik kivi annavad majale väärika ja ajatu ilme. Avarad PVC-pakettaknad täidavad ruumid valgusega.
Krunt ja ümbrus
Kinnistu on kaunilt haljastatud ja kaetud muruga, mida raamib privaatsust pakkuv elupuuhekk. Päikesepoolne terrass on ideaalne koht hommikukohvi nautimiseks või suviste õhtusöökide korraldamiseks. Ümberringi on sõbralik kogukond, naabrivalve ja tõeliselt toredad inimesed.
Olemas on ka garaaži ja sauna projekt koos ehitusloaga, vundamendi alus on ette valmistatud ning kommunikatsioonid – elekter, vesi ja kanalisatsioon – viidud kohale. See annab uuele omanikule võimaluse soovi korral kodu veelgi laiendada.
Asukoht
Liikva küla asukoht on justkui loodud neile, kes hindavad privaatsust ja looduslähedust, kuid ei soovi linnamugavustest loobuda. Rocca al Mare keskus jääb vaid 15-minutilise autosõidu kaugusele, Tallinna südalinna jõuab mugavalt 25 minutiga. Vääna rand – oma kauni liivaranna ja päikeseloojangu poolest hinnatud – on kõigest 10-minutilise autosõidu kaugusel.
Ka ühistransport on mugavalt kättesaadav: lähim bussipeatus jääb vaid 10-minutilise jalutuskäigu kaugusele. Lisaks on teed piirkonnas heas korras ning looduse kõrval pakuvad vaheldust metsarajad ja lähedal voolav Vääna jõgi.
See kodu on palju enamat kui lihtsalt maja – see on elustiil, mis pakub rahu, turvalisust ja igapäevast luksust. Siin on ühendatud parimad lahendused nii energiatõhususe, kvaliteedi kui ka esteetika vallas.
Kasutusluba on olemas. Kodu müüakse koos kvaliteetse köögimööbli ja tehnikaga, lisamööbli osas on võimalik teha kokkulepe.
LISAINFO
Kui tunned, et just see võiks olla sinu uus kodu, siis võta julgesti ühendust ja lähme koos vaatama.



























































