Soovid elada uues A-energiaklassi majas ning naudid turvalist ja rahulikku elukeskkonda? Siis see pakkumine on Sulle!
Ehitus on alanud! Hetkel on võimalus kaasa rääkida siseviimistlusmaterjalide valikul!
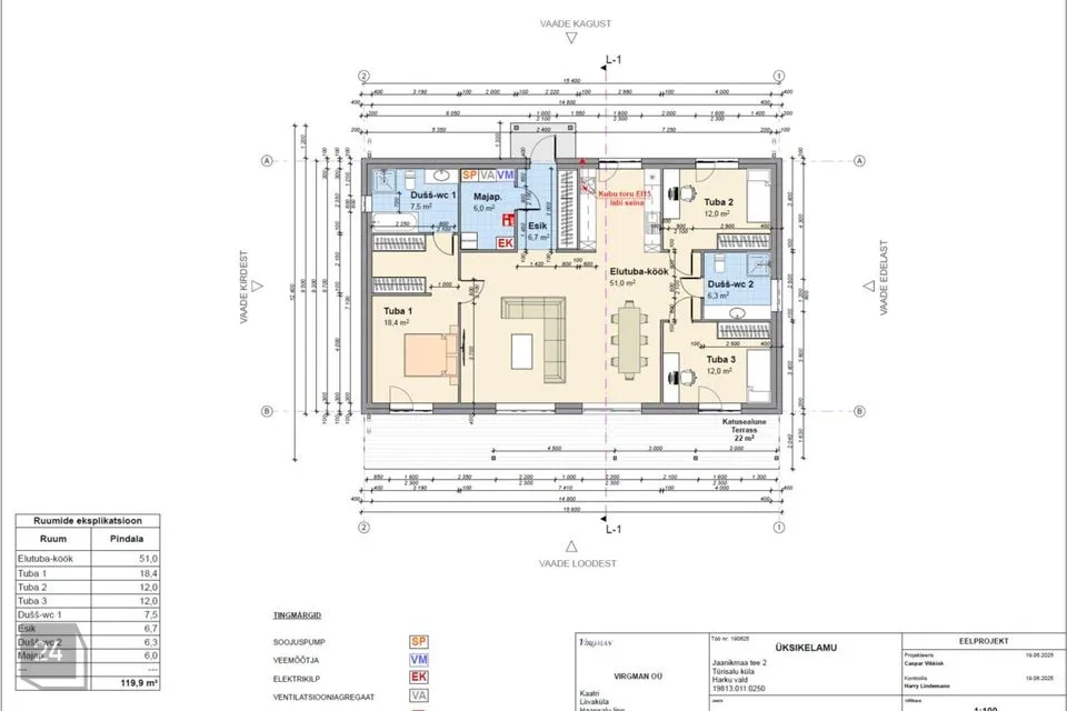
MAJA
Türisalu roheluses asuval haljastatud kinnistul on müügile tulnud 5-toaline A-energiaklassi kivimaja. Maja saab valmis orienteeruvalt 2026. aasta veebruaris.
Maja koosseisu kuuluvad avatud köök-söögituba ja elutuba (51 m²), kolm magamistuba (18.4m², 12m² ja 12m²), master bedroomil oma vannituba (7.5m²) ja garderoobiala, vannituba koos tualetiga (6.3m²), majapidamisruum (6m²) ja esik (6.7m²). Elutoast ja kahest magamistoast pääs, varjualusega, päikesepoolsele terrassile (22m²) kus suvel mõnus pere või sõpradega aega veeta.
Tänu funktsionaalsele ja läbimõeldud planeeringule ei ole majas kasutult seisvat pinda, köetav pind on kokku 119.9 m², lagede kõrgus 2.8-2.9m.
Maja seinad on ehitatud fiboplokkidest. Plaatvundamendi sisse on paigaldatud põrandaküttetorud ja radoonitõkkekile. Vundament on soojustatud 300 mm EPS paneelidega. Fassaadi viimistlusmaterjalina on kasutatud krohvi. Küttelahenduseks on ökonoomne õhk-vesi küte. Soojustagastusega sundventilatsiooni süsteem ja kolmekordsed maast-laeni pakettaknad. Vee- ja kanalisatsiooniühendus on tsentraalsed. Elektriühendus 3x16A. Elutoas kaminavalmidus.
SISEVIIMISTLUS - VÕTMED KÄTTE
Vannitoa ja WC seinad: Plaaditud
Vannitoa ja WC põrandad: Plaaditud
Põrandad: Parkett
Siseuksed: Uksed koos varustusega
Seinad: Värvitud
Lagi: Valge pinglagi
Pistikud ja stepslid
Valgustid: Spotvalgustid 20tk
Santehnika: 2 dušši, 1 vann, 2 vesiklosetti, 2 valamut segistiga
KINNISTU
Suurel (2336 m2) kinnistul on võimalus kujundada oma maitse järgi aed, ruumi jääb ka abihoone ehitamiseks.
Hinnas: Kivikatendide valmidus, terrass.
ASUKOHT/TRANSPORT
Rahulik ning looduskaunis Türisalu asub Tallinnast 25 kilomeetri kaugusel. Läheduses asuv suurim keskus on Keila-Joa, mis on tuntud oma mõisapargi ning joa poolest. Läheduses erinevad kauplused, Mõisakool-lasteaed ning erinevad terviserajad ja mererand.
Bussiliiklus toimub sagedasti, bussipeatus 15 minutilise jalutuskäigu kaugusel. Kohalik kauplus 5 minuti autosõidu kaugusel.
NB! Kuulutuse juures olevad sise- ja välipildid on tehtud eelnevalt valminud sarnasest eramust, seinte värvivalikut ja muid siseviimistlusmaterjale saab hetkel valida vastavalt oma soovidele.
Ehitus on alanud! Hetkel on võimalus kaasa rääkida siseviimistlusmaterjalide valikul!
MAJA
Türisalu roheluses asuval haljastatud kinnistul on müügile tulnud 5-toaline A-energiaklassi kivimaja. Maja saab valmis orienteeruvalt 2026. aasta veebruaris.
Maja koosseisu kuuluvad avatud köök-söögituba ja elutuba (51 m²), kolm magamistuba (18.4m², 12m² ja 12m²), master bedroomil oma vannituba (7.5m²) ja garderoobiala, vannituba koos tualetiga (6.3m²), majapidamisruum (6m²) ja esik (6.7m²). Elutoast ja kahest magamistoast pääs, varjualusega, päikesepoolsele terrassile (22m²) kus suvel mõnus pere või sõpradega aega veeta.
Tänu funktsionaalsele ja läbimõeldud planeeringule ei ole majas kasutult seisvat pinda, köetav pind on kokku 119.9 m², lagede kõrgus 2.8-2.9m.
Maja seinad on ehitatud fiboplokkidest. Plaatvundamendi sisse on paigaldatud põrandaküttetorud ja radoonitõkkekile. Vundament on soojustatud 300 mm EPS paneelidega. Fassaadi viimistlusmaterjalina on kasutatud krohvi. Küttelahenduseks on ökonoomne õhk-vesi küte. Soojustagastusega sundventilatsiooni süsteem ja kolmekordsed maast-laeni pakettaknad. Vee- ja kanalisatsiooniühendus on tsentraalsed. Elektriühendus 3x16A. Elutoas kaminavalmidus.
SISEVIIMISTLUS - VÕTMED KÄTTE
Vannitoa ja WC seinad: Plaaditud
Vannitoa ja WC põrandad: Plaaditud
Põrandad: Parkett
Siseuksed: Uksed koos varustusega
Seinad: Värvitud
Lagi: Valge pinglagi
Pistikud ja stepslid
Valgustid: Spotvalgustid 20tk
Santehnika: 2 dušši, 1 vann, 2 vesiklosetti, 2 valamut segistiga
KINNISTU
Suurel (2336 m2) kinnistul on võimalus kujundada oma maitse järgi aed, ruumi jääb ka abihoone ehitamiseks.
Hinnas: Kivikatendide valmidus, terrass.
ASUKOHT/TRANSPORT
Rahulik ning looduskaunis Türisalu asub Tallinnast 25 kilomeetri kaugusel. Läheduses asuv suurim keskus on Keila-Joa, mis on tuntud oma mõisapargi ning joa poolest. Läheduses erinevad kauplused, Mõisakool-lasteaed ning erinevad terviserajad ja mererand.
Bussiliiklus toimub sagedasti, bussipeatus 15 minutilise jalutuskäigu kaugusel. Kohalik kauplus 5 minuti autosõidu kaugusel.
NB! Kuulutuse juures olevad sise- ja välipildid on tehtud eelnevalt valminud sarnasest eramust, seinte värvivalikut ja muid siseviimistlusmaterjale saab hetkel valida vastavalt oma soovidele.

















































