HOUSE
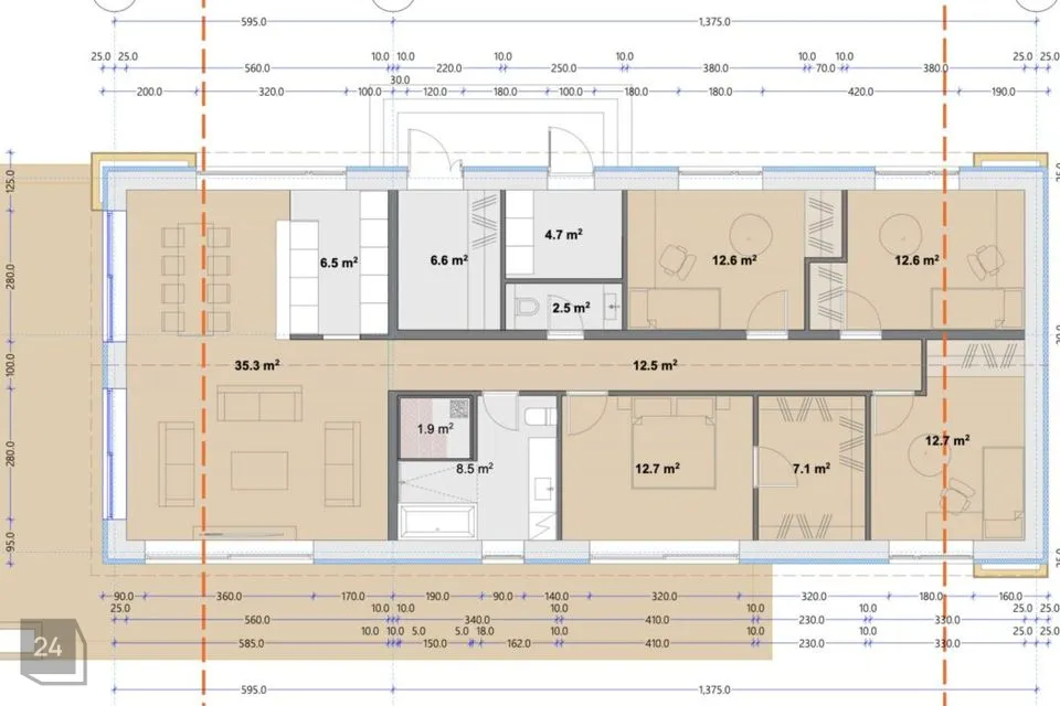
This is a high-quality house built on a slab foundation in Harku parish. A single-storey stone house with a total area of 136.2 m2. The house has a 5-room, four-bedroom layout. All bedrooms have wardrobes, a larger bedroom with a walk-in wardrobe and its own bathroom. There is also a sauna and a pleasantly large terrace.
The house has a stone roof, triple-glazed windows and stone partitions. The exterior wall is 375mm Bauroc with 50mm foam plastic.
INTERIOR FINISH
The interior finish of the walls is painted. The walls of the toilet and shower room are tiled. The floors in the rooms are covered with natural light solid wood parquet, the floors in the wet rooms are tiled.
HEATING AND COMMUNICATIONS
The house has water floor heating throughout and an air-to-water heat pump as the heating source. The heating is separately adjustable for each room. Energy-saving forced ventilation with heat recovery is used for ventilation. The energy class of the house is A when solar panels are installed.
Electrical connection 3x25A.
Water from a borehole and local sewage.
YARD AND PARKING
The yard will be landscaped and paving stones will be installed on the driveway. Several cars can be parked on the stone paving in front of and around the house.
Property size 2001 m2.
LOCATION/TRANSPORT
This is a rather quiet location. The bus stop is within walking distance and the center of Tabasalu can be reached by car in about 5-7 minutes.
An ideal opportunity to have a say in interior design solutions and design your home to your own taste.
The house will be completed in summer 2025.
You are welcome to take a look at the house!
This is a high-quality house built on a slab foundation in Harku parish. A single-storey stone house with a total area of 136.2 m2. The house has a 5-room, four-bedroom layout. All bedrooms have wardrobes, a larger bedroom with a walk-in wardrobe and its own bathroom. There is also a sauna and a pleasantly large terrace.
The house has a stone roof, triple-glazed windows and stone partitions. The exterior wall is 375mm Bauroc with 50mm foam plastic.
INTERIOR FINISH
The interior finish of the walls is painted. The walls of the toilet and shower room are tiled. The floors in the rooms are covered with natural light solid wood parquet, the floors in the wet rooms are tiled.
HEATING AND COMMUNICATIONS
The house has water floor heating throughout and an air-to-water heat pump as the heating source. The heating is separately adjustable for each room. Energy-saving forced ventilation with heat recovery is used for ventilation. The energy class of the house is A when solar panels are installed.
Electrical connection 3x25A.
Water from a borehole and local sewage.
YARD AND PARKING
The yard will be landscaped and paving stones will be installed on the driveway. Several cars can be parked on the stone paving in front of and around the house.
Property size 2001 m2.
LOCATION/TRANSPORT
This is a rather quiet location. The bus stop is within walking distance and the center of Tabasalu can be reached by car in about 5-7 minutes.
An ideal opportunity to have a say in interior design solutions and design your home to your own taste.
The house will be completed in summer 2025.
You are welcome to take a look at the house!































