Vääne-Jõesuus ootab uusi elanikke maaliline ja avar kodu, mida ümbritseb tõeliselt ilus ja hoolikalt kujundatud iluaed.
Pakutav krunt jaguneb kaheks erinevaks kinnistuks – elamumaa sihtotstarbega Kanarbiku tee 4, üldpinnaga 2394 m² ja maatulundusmaa sihtotstarbega Kanarbiku tee 5, üldpinnaga 1378 m². Kokku 3772 m².
Krundil paiknevad esinduslik elamu, garaaž ning Vääna jõe äärne pumbamaja, mille kohale on ehitatud romantiline suvemaja.
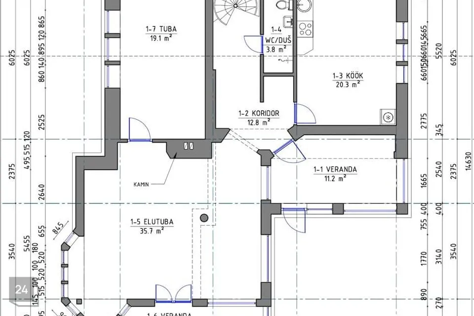
1997. aastal valminud elumajas on palju avarust ning ruumi kõigile. Esimesel korrusel paiknevad avar ja kvaliteetse köögimööbli ning -tehnikaga köök itaalia firmalt Camel, kaminaga elutuba, kabinet, kaks kinnist verandat ning sanitaarruumid.
Maja teiselt korruselt leiame kaks magamistuba, walk- in garderoobi ning ruumika vannitoa koos tualetiga. Teise korruse trepihallist ja suuremast magamistoast pääseb ka avarale rõdule.
Keldrikorrusel asuvad aga saun koos eesruumiga, panipaik ning tehnoruum.
Elamus on tsentraalne vesi- ja kanalisatsioon. Küte on lokaalküte ning põhineb pelletkatlal. Kõikides tubades on radiaatorid, elutoas, esikus ja sanitaarruumides on ka elektriline põrandaküte. Keskküttekatel toodab lisaks ka sooja vett, suvisel ajal on kasutusel ka 200 liitrine elektriline soojaveeboiler.
Elamu interjöörid on helged ja heledates toonides. Elutuba ja verandasid kaunistavad vitraažid. Kõigest kumab läbi, et maja on loodud endale elamiseks. Elutuba ja trepihall läbisid hiljuti värskenduse.
Kogu maja akendel on turvakardinad, mis osalt on elektriga juhitavad. Olemas ka signalisatsiooniseadmed ja turvafirmaga ühendatud valveteenus. Tehnoruum on varustatud sprinklersüsteemiga. Maja elektrisüsteemi läbilaskevõime on 63 A. Nii energia- kui veenäidud edastatakse automaatselt.
Maja ümbrus on maitsekas ja hooldatud, kogu kujundus on praeguse omaniku loodud. Garaažiesine on kaetud kiviparketiga, mujal kinnistul on armsad teerajad, sillad ja trepid. Siit leiab ka suvise istumisnurga välikaminaga. Lisaks asub kinnistul ka aed paljude erinevate viljapuude ja -põõsastega.
Ümbruskond on mugavaks eluks igati soodne. Lähedal asuvad kauplused, bussipeatus ja Vääna-Jõesuu kool. Vääna rand on 2 kilomeetri kaugusel.
Kui otsite imelist kodu, kus nautida täiel rinnal elamisrõõmu, siis helistage julgesti ja läheme seda oma silmaga vaatama.
JAGA MINU KONTAKTI KÕIGILE, KES VAJAVAD KINNISVARANÕU!
- - - - - - - - - -
Telli hindamine UUS MAA Kinnisvarabüroolt ***@***.ee
ning saad:
- Eksperthinnangu kuni 20% soodsamalt kui võtad koduga seotud laenu Swedbankist
- Pankadest parimad kodulaenutingimused
- Kiireima, kvaliteetseima ning usaldusväärseima hindamisteenuse Eestis
UUS MAA KINNISVARABÜROO EKSPERTHINNANGUID AKTSEPTEERIVAD KÕIK FINANTSASUTUSED.
- - - - - - - - - -
Liitu Uus Maa uudiskirjaga ja saa homset kinnisvarainfot juba täna!
https://www.uusmaa.ee/uudiskirjagaliitumine/
- - - - - - - - - -
Kodu aitab osta Swedbank.
Pakkumise saamiseks kasuta koodi UUSMAA ja Sind teenindatakse eelisjärjekorras.
Võtame ühendust 1 tööpäeva jooksul.
Uus Maa kliendile soodsam lepingutasu. Küsi täpsemat infot maaklerilt.
Finantsteenuseid pakub Swedbank AS. Tutvu tingimustega, pea nõu.
Pakutav krunt jaguneb kaheks erinevaks kinnistuks – elamumaa sihtotstarbega Kanarbiku tee 4, üldpinnaga 2394 m² ja maatulundusmaa sihtotstarbega Kanarbiku tee 5, üldpinnaga 1378 m². Kokku 3772 m².
Krundil paiknevad esinduslik elamu, garaaž ning Vääna jõe äärne pumbamaja, mille kohale on ehitatud romantiline suvemaja.
1997. aastal valminud elumajas on palju avarust ning ruumi kõigile. Esimesel korrusel paiknevad avar ja kvaliteetse köögimööbli ning -tehnikaga köök itaalia firmalt Camel, kaminaga elutuba, kabinet, kaks kinnist verandat ning sanitaarruumid.
Maja teiselt korruselt leiame kaks magamistuba, walk- in garderoobi ning ruumika vannitoa koos tualetiga. Teise korruse trepihallist ja suuremast magamistoast pääseb ka avarale rõdule.
Keldrikorrusel asuvad aga saun koos eesruumiga, panipaik ning tehnoruum.
Elamus on tsentraalne vesi- ja kanalisatsioon. Küte on lokaalküte ning põhineb pelletkatlal. Kõikides tubades on radiaatorid, elutoas, esikus ja sanitaarruumides on ka elektriline põrandaküte. Keskküttekatel toodab lisaks ka sooja vett, suvisel ajal on kasutusel ka 200 liitrine elektriline soojaveeboiler.
Elamu interjöörid on helged ja heledates toonides. Elutuba ja verandasid kaunistavad vitraažid. Kõigest kumab läbi, et maja on loodud endale elamiseks. Elutuba ja trepihall läbisid hiljuti värskenduse.
Kogu maja akendel on turvakardinad, mis osalt on elektriga juhitavad. Olemas ka signalisatsiooniseadmed ja turvafirmaga ühendatud valveteenus. Tehnoruum on varustatud sprinklersüsteemiga. Maja elektrisüsteemi läbilaskevõime on 63 A. Nii energia- kui veenäidud edastatakse automaatselt.
Maja ümbrus on maitsekas ja hooldatud, kogu kujundus on praeguse omaniku loodud. Garaažiesine on kaetud kiviparketiga, mujal kinnistul on armsad teerajad, sillad ja trepid. Siit leiab ka suvise istumisnurga välikaminaga. Lisaks asub kinnistul ka aed paljude erinevate viljapuude ja -põõsastega.
Ümbruskond on mugavaks eluks igati soodne. Lähedal asuvad kauplused, bussipeatus ja Vääna-Jõesuu kool. Vääna rand on 2 kilomeetri kaugusel.
Kui otsite imelist kodu, kus nautida täiel rinnal elamisrõõmu, siis helistage julgesti ja läheme seda oma silmaga vaatama.
JAGA MINU KONTAKTI KÕIGILE, KES VAJAVAD KINNISVARANÕU!
- - - - - - - - - -
Telli hindamine UUS MAA Kinnisvarabüroolt ***@***.ee
ning saad:
- Eksperthinnangu kuni 20% soodsamalt kui võtad koduga seotud laenu Swedbankist
- Pankadest parimad kodulaenutingimused
- Kiireima, kvaliteetseima ning usaldusväärseima hindamisteenuse Eestis
UUS MAA KINNISVARABÜROO EKSPERTHINNANGUID AKTSEPTEERIVAD KÕIK FINANTSASUTUSED.
- - - - - - - - - -
Liitu Uus Maa uudiskirjaga ja saa homset kinnisvarainfot juba täna!
https://www.uusmaa.ee/uudiskirjagaliitumine/
- - - - - - - - - -
Kodu aitab osta Swedbank.
Pakkumise saamiseks kasuta koodi UUSMAA ja Sind teenindatakse eelisjärjekorras.
Võtame ühendust 1 tööpäeva jooksul.
Uus Maa kliendile soodsam lepingutasu. Küsi täpsemat infot maaklerilt.
Finantsteenuseid pakub Swedbank AS. Tutvu tingimustega, pea nõu.









































































