Müüa korterelamu arendusprojekt, ehitusluba olemas.
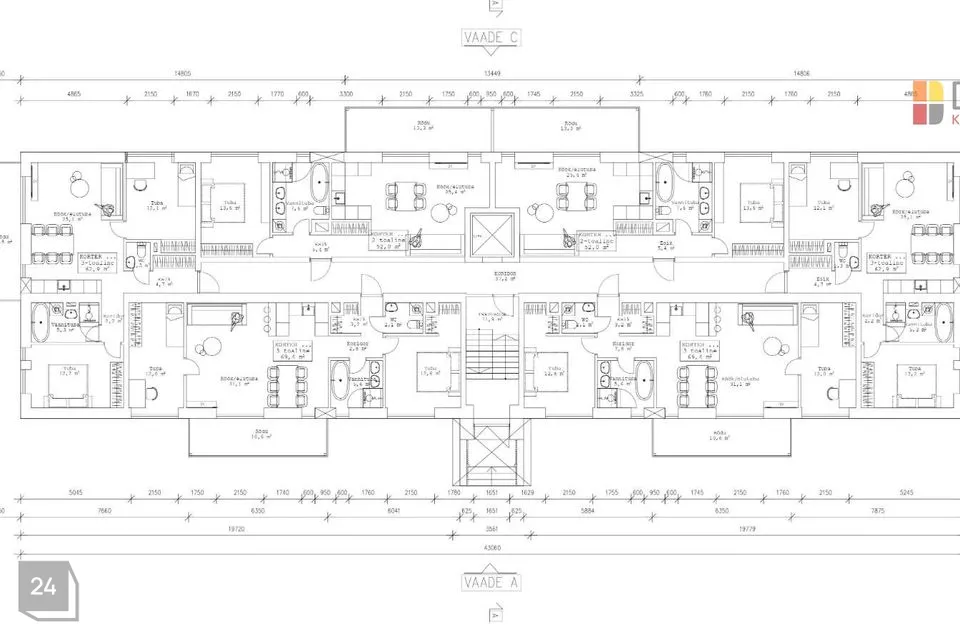
Eskiisprojekti kohaselt on planeeritud 4 korrust
1-4 korrus (tüüpkorrus)
3-toaline korter 69,4
3-toaline korter 62,9
2-toaline korter 52,0
2-toaline korter 52,0
3-toaline korter 62,9
3-toaline korter 69,4
trepikoda 11,9
koridor 37,2
TÜÜPKORRUS KOKKU 417,7
1-4 KORRUS KOKKU 1670,8
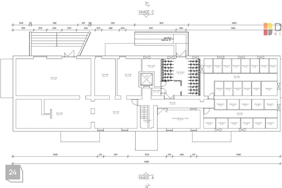
Lisaks soklikorrusel paiknevad panipaigad, jalgrattaruum, lapsevankrite ruum, tehnoruumid ja äripind 200m².
Igale korterile on planeeritud kindel parkimiskoht kinnistul.
Pangad pakuvad Domus Kinnisvara klientidele eluasemelaenu lepingutasu soodustusi. Küsi lisainfot Domus Kinnisvara maaklerilt või hindajalt.
Müü ja hinda meiega! Teeme kinnisvara müügi Sinu jaoks sujuvaks ja pingevabaks.
Eskiisprojekti kohaselt on planeeritud 4 korrust
1-4 korrus (tüüpkorrus)
3-toaline korter 69,4
3-toaline korter 62,9
2-toaline korter 52,0
2-toaline korter 52,0
3-toaline korter 62,9
3-toaline korter 69,4
trepikoda 11,9
koridor 37,2
TÜÜPKORRUS KOKKU 417,7
1-4 KORRUS KOKKU 1670,8
Lisaks soklikorrusel paiknevad panipaigad, jalgrattaruum, lapsevankrite ruum, tehnoruumid ja äripind 200m².
Igale korterile on planeeritud kindel parkimiskoht kinnistul.
Pangad pakuvad Domus Kinnisvara klientidele eluasemelaenu lepingutasu soodustusi. Küsi lisainfot Domus Kinnisvara maaklerilt või hindajalt.
Müü ja hinda meiega! Teeme kinnisvara müügi Sinu jaoks sujuvaks ja pingevabaks.

















