ÄSJA LISANDUS HINNATUD TÕLLAPULGA ELAMURAJOONIS PULGA TEEL UUS MAJA MÜÜGIPAKKUMINE
hinnatud merelähedases ja välja kujunenud Tõllapulga elamurajoonis, privaatsel ja looduskaunil Pulga teel, müüakse ära, eelistatud üldpinnaga (256.30 m²), kahel täistasapinnal laiuv 5-toaline individuaalelamu, millele loovad lisandväärtuse kvaliteetne köögimööbel, mahukas garderoob, elektrikerisega saun, suur ja privaatne välivalgustusega lõunapoolne terrass, kaugjuhtimise teel avatav/suletav garaaž, suur parkimisala, haljastatud ja heakorrastatud privaatne ning kõrgem päikeserohke kinnistu, suurepärane asetus päikese suhtes, majapõhine keskküte, hõlpsasti ligipääsetav asukoht, mis teeb igapäevelu mugavaks ja märkimisväärselt soodsad igakuised kõrvalkulud
MAJA
kivimaja, valminud ja kasutusele võetud 2016 aastal, kaks korrust, 5-toaline, üldpind 256.30 m² (millest eluruum 212.80 m² ja mitteeluruum 43.50 m²), kehtiv kasutusluba
SISUSTUS
kokkuleppel
PLANEERING
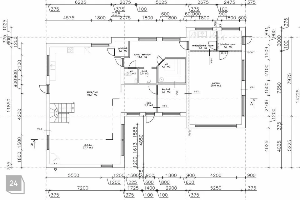
avara ja valgusküllase planeeringuga maja koosseisu kuuluvad:
I korrus: esik (koridor), trepihall, avar elutuba-köök, magamistuba, puhkeruum, duširuum, leiliruum, tualett, majapidamisruum, tehnoruum, garaaž
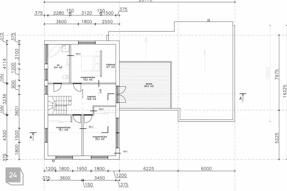
II korrus: trepihall, 3 magamistuba, tualett-vannituba, terrass
SEISUKORD
heaperemehelikult hoitud (esimesed omanikud), vajab väliviimistluse krohviparandusi ja parkimisalale unikivi paigaldust
TEHNILISED ANDMED
elekterisüsteem - võrk
veevarustus- võrk
kanalisatsioon - võrk
soojusallikas (küte) - õhk-vesi soojuspumbal põhinev keskküte vesi põrandaküttega
jahutussüsteem - puudub
ventilatsioon - sund/loomulik
sideteenus - võrk
IGAKUISED KÕRVALKULUD
mitte kütteperioodil – keskmiselt 120-130 eur/kuu
kütteperioodil – keskmiselt 240-250 eur/kuu
GARAAŽ
avar garaaž kaugjuhtimise teel avatav/suletav
PARKIMINE
parkimisalal ruumi mitmele autole
KONSTRUKTSIOONID JA MATERJALID
vundamendi liik - madalvundament
kande- ja jäigastavate konstruktsioonide materjal - väike- või suurplokk
välisseina välisviimistluse materjal - krohv
katuste ja katuselagede kandva osa materjal - monteeritav raudbetoon, puit
vahelagede kandva osa materjal - monteeritav raudbetoon
katusekatte materjal - rullmaterjal
ÕUEALA
kinnistu pindala 1 450 m², roheala, terrass, haljastatud, viljapuud ja põõsad, heakorrastatud, privaatne
ASUKOHT JA ÜMBRUSKOND
hinnatud merelähedane Tõllapulga elamurajoon sobib Sulle, kui hindad suvepealinna lähedale kinnisvara ostes välja kujunenud ja ühtse miljööga piirkonda, rohelust ja liivaranna lähedust, hõlpsasti ligipääsetavat asukohta, mis teeb igapäevaelu mugavaks, lisaks leiab piirkonnas mitmeid erinevaid vabaaja veetmise võimalusi ning kompaktsele Pärnu linnale omane hea infrastruktuur on hõlpsasti kättesaadav (kaubanduskeskus, toidupoed, koolid, lasteaiad, perearstikeskus, bussiühendus ning kergliiklusteed/terviserajad igal suunal, jne)
NOTARITASUD
maksavad Ostja ja Müüja võrdselt, riigilõivu tasub Ostja, üleandmise tähtaeg - 1 kuu jooksul peale notariaalse ostu-müügilepingu allkirjastamist
HEA KLIENT
kui pakkumine kõnetas, helista kindlasti ja tule tutvuma – sellest võib saada kodu või hea investeering just Sinule
MAAKLER
Siim Soots
+ 51 39 545
***@***.ee
(küsi maaklerilt sarnaseid mitteavalikke või peagi müüki tulevaid pakkumisi)
Võta minuga ühendust ja küsi lisa!
JAGA MINU KONTAKTI KÕIGILE, KES VAJAVAD KINNISVARANÕU!
JAGA MINU KONTAKTI KÕIGILE, KES VAJAVAD KINNISVARANÕU!
- - - - - - - - - -
Telli hindamine UUS MAA Kinnisvarabüroolt https://uusmaa.ee/teenused/hindamine/
ning saad:
- Eksperthinnangu kuni 20% soodsamalt kui võtad koduga seotud laenu Swedbankist
- Pankadest parimad kodulaenutingimused
- Kiire, kvaliteetse ning usaldusväärse hindamisteenuse Eestis
UUS MAA KINNISVARABÜROO EKSPERTHINNANGUID AKTSEPTEERIVAD KÕIK FINANTSASUTUSED.
- - - - - - - - - -
Liitu Uus Maa uudiskirjaga ja saa homset kinnisvarainfot juba täna!
https://www.uusmaa.ee/uudiskirjagaliitumine/
- - - - - - - - - -
Kodu aitab osta Swedbank.
Pakkumise saamiseks kasuta koodi UUSMAA ja Sind teenindatakse eelisjärjekorras.
Võtame ühendust 1 tööpäeva jooksul.
Uus Maa kliendile soodsam lepingutasu. Küsi täpsemat infot maaklerilt.
Finantsteenuseid pakub Swedbank AS. Tutvu tingimustega, pea nõu.
hinnatud merelähedases ja välja kujunenud Tõllapulga elamurajoonis, privaatsel ja looduskaunil Pulga teel, müüakse ära, eelistatud üldpinnaga (256.30 m²), kahel täistasapinnal laiuv 5-toaline individuaalelamu, millele loovad lisandväärtuse kvaliteetne köögimööbel, mahukas garderoob, elektrikerisega saun, suur ja privaatne välivalgustusega lõunapoolne terrass, kaugjuhtimise teel avatav/suletav garaaž, suur parkimisala, haljastatud ja heakorrastatud privaatne ning kõrgem päikeserohke kinnistu, suurepärane asetus päikese suhtes, majapõhine keskküte, hõlpsasti ligipääsetav asukoht, mis teeb igapäevelu mugavaks ja märkimisväärselt soodsad igakuised kõrvalkulud
MAJA
kivimaja, valminud ja kasutusele võetud 2016 aastal, kaks korrust, 5-toaline, üldpind 256.30 m² (millest eluruum 212.80 m² ja mitteeluruum 43.50 m²), kehtiv kasutusluba
SISUSTUS
kokkuleppel
PLANEERING
avara ja valgusküllase planeeringuga maja koosseisu kuuluvad:
I korrus: esik (koridor), trepihall, avar elutuba-köök, magamistuba, puhkeruum, duširuum, leiliruum, tualett, majapidamisruum, tehnoruum, garaaž
II korrus: trepihall, 3 magamistuba, tualett-vannituba, terrass
SEISUKORD
heaperemehelikult hoitud (esimesed omanikud), vajab väliviimistluse krohviparandusi ja parkimisalale unikivi paigaldust
TEHNILISED ANDMED
elekterisüsteem - võrk
veevarustus- võrk
kanalisatsioon - võrk
soojusallikas (küte) - õhk-vesi soojuspumbal põhinev keskküte vesi põrandaküttega
jahutussüsteem - puudub
ventilatsioon - sund/loomulik
sideteenus - võrk
IGAKUISED KÕRVALKULUD
mitte kütteperioodil – keskmiselt 120-130 eur/kuu
kütteperioodil – keskmiselt 240-250 eur/kuu
GARAAŽ
avar garaaž kaugjuhtimise teel avatav/suletav
PARKIMINE
parkimisalal ruumi mitmele autole
KONSTRUKTSIOONID JA MATERJALID
vundamendi liik - madalvundament
kande- ja jäigastavate konstruktsioonide materjal - väike- või suurplokk
välisseina välisviimistluse materjal - krohv
katuste ja katuselagede kandva osa materjal - monteeritav raudbetoon, puit
vahelagede kandva osa materjal - monteeritav raudbetoon
katusekatte materjal - rullmaterjal
ÕUEALA
kinnistu pindala 1 450 m², roheala, terrass, haljastatud, viljapuud ja põõsad, heakorrastatud, privaatne
ASUKOHT JA ÜMBRUSKOND
hinnatud merelähedane Tõllapulga elamurajoon sobib Sulle, kui hindad suvepealinna lähedale kinnisvara ostes välja kujunenud ja ühtse miljööga piirkonda, rohelust ja liivaranna lähedust, hõlpsasti ligipääsetavat asukohta, mis teeb igapäevaelu mugavaks, lisaks leiab piirkonnas mitmeid erinevaid vabaaja veetmise võimalusi ning kompaktsele Pärnu linnale omane hea infrastruktuur on hõlpsasti kättesaadav (kaubanduskeskus, toidupoed, koolid, lasteaiad, perearstikeskus, bussiühendus ning kergliiklusteed/terviserajad igal suunal, jne)
NOTARITASUD
maksavad Ostja ja Müüja võrdselt, riigilõivu tasub Ostja, üleandmise tähtaeg - 1 kuu jooksul peale notariaalse ostu-müügilepingu allkirjastamist
HEA KLIENT
kui pakkumine kõnetas, helista kindlasti ja tule tutvuma – sellest võib saada kodu või hea investeering just Sinule
MAAKLER
Siim Soots
+ 51 39 545
***@***.ee
(küsi maaklerilt sarnaseid mitteavalikke või peagi müüki tulevaid pakkumisi)
Võta minuga ühendust ja küsi lisa!
JAGA MINU KONTAKTI KÕIGILE, KES VAJAVAD KINNISVARANÕU!
JAGA MINU KONTAKTI KÕIGILE, KES VAJAVAD KINNISVARANÕU!
- - - - - - - - - -
Telli hindamine UUS MAA Kinnisvarabüroolt https://uusmaa.ee/teenused/hindamine/
ning saad:
- Eksperthinnangu kuni 20% soodsamalt kui võtad koduga seotud laenu Swedbankist
- Pankadest parimad kodulaenutingimused
- Kiire, kvaliteetse ning usaldusväärse hindamisteenuse Eestis
UUS MAA KINNISVARABÜROO EKSPERTHINNANGUID AKTSEPTEERIVAD KÕIK FINANTSASUTUSED.
- - - - - - - - - -
Liitu Uus Maa uudiskirjaga ja saa homset kinnisvarainfot juba täna!
https://www.uusmaa.ee/uudiskirjagaliitumine/
- - - - - - - - - -
Kodu aitab osta Swedbank.
Pakkumise saamiseks kasuta koodi UUSMAA ja Sind teenindatakse eelisjärjekorras.
Võtame ühendust 1 tööpäeva jooksul.
Uus Maa kliendile soodsam lepingutasu. Küsi täpsemat infot maaklerilt.
Finantsteenuseid pakub Swedbank AS. Tutvu tingimustega, pea nõu.































































































