OBER-HAUSI PÜHADEKAMPAANIA KUNI 11. JAANUARINI. ERIHIND 440 000 € (TAVAHIND 500 000 €)
Ruumikas ja kapitaalne paksude seintega kivimaja asub pärnakate seas armastatud ja nõutud Mereküla eramupiirkonnas.
Mereküla puhul hinnatakse lopsakat rohelust, mere lähedust ja vaikust.
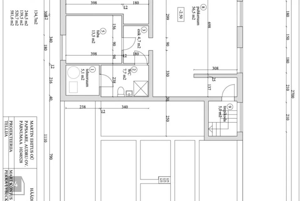
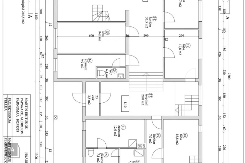
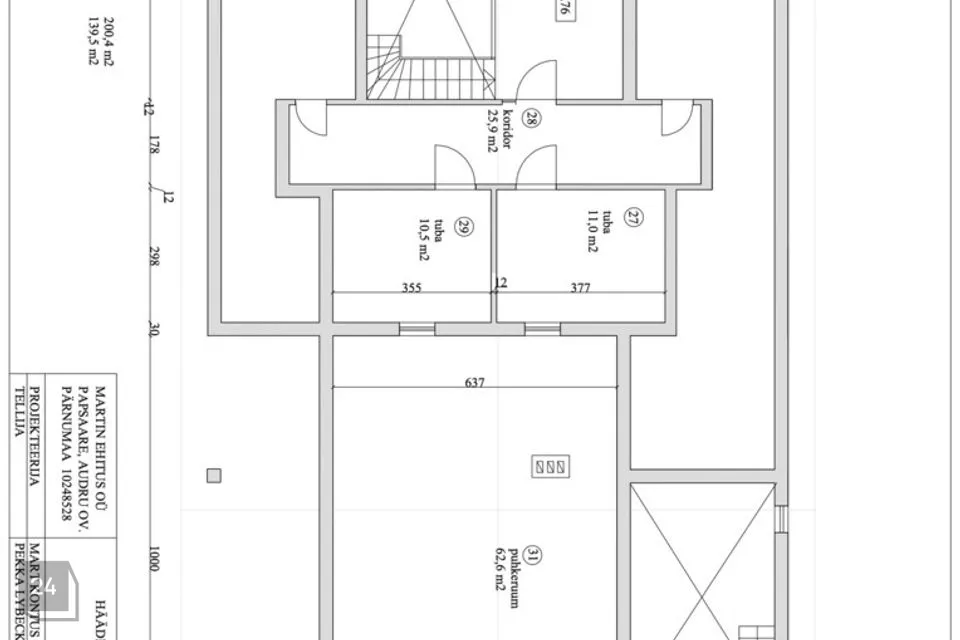
Maitsekalt sisustatud soojades toonides interjöör koos naturaalse puiduga loob rohkelt hubasust. Mugava planeeringuga ruumikas majas on 12 eluruumi, millest suisa 8 on magamistuba, elutuba ja köök on eraldi, lisaks majas olev saun, sauna eesruum, mitmeid garderoobe ja abiruume ning avar garaaž.
Lisaks asub kinnistul eraldi saunamaja koos terrassi - katusealusega kümblustünniga ja suur mahukas puidust abihoone - paadikuur kus on võimalik hoida näiteks paati ja väiksemat sorti kaatrit või lihtsalt hoida saunapuid.
Maja on ehitatud väikeplokkidest, vahelaed on betoonist paneelidest, välisfassaad on krohvitud.
Toasooja tagab maasoojuspump. Igas toas on võimalik kütet eraldi reguleerida radiaatoritest.
Maja müüakse kogu sisustuse ja tehnikaga.
Pärnu kesklinn asub vaid ca 10 minuti autosõidu kaugusel.
Olete väga oodatud tutvuma selle suurepärase kapitaalse kivimajaga. Küsi ka partnerpakkumiste kohta!
Kodu aitab osta Swedbank:
- Pakkumise saamiseks kasuta koodi OBERHAUS ja Teid teenindatakse eelisjärjekorras.
Haldur võtab Teiega ühendust 1 tööpäeva jooksul.
-Swedbanki klientidele hindamisteenus Ober-Hausist soodsamalt.
Lisainfo: swedbank.ee/kodulaen
Pakkumine kehtib, kui ostad kodu Ober-Haus Kinnisvara vahendusel. Kodulaenu pakub Swedbank AS. Tutvuge tingimustega ja pea nõu www.swedbank.ee.
Ruumikas ja kapitaalne paksude seintega kivimaja asub pärnakate seas armastatud ja nõutud Mereküla eramupiirkonnas.
Mereküla puhul hinnatakse lopsakat rohelust, mere lähedust ja vaikust.
Maitsekalt sisustatud soojades toonides interjöör koos naturaalse puiduga loob rohkelt hubasust. Mugava planeeringuga ruumikas majas on 12 eluruumi, millest suisa 8 on magamistuba, elutuba ja köök on eraldi, lisaks majas olev saun, sauna eesruum, mitmeid garderoobe ja abiruume ning avar garaaž.
Lisaks asub kinnistul eraldi saunamaja koos terrassi - katusealusega kümblustünniga ja suur mahukas puidust abihoone - paadikuur kus on võimalik hoida näiteks paati ja väiksemat sorti kaatrit või lihtsalt hoida saunapuid.
Maja on ehitatud väikeplokkidest, vahelaed on betoonist paneelidest, välisfassaad on krohvitud.
Toasooja tagab maasoojuspump. Igas toas on võimalik kütet eraldi reguleerida radiaatoritest.
Maja müüakse kogu sisustuse ja tehnikaga.
Pärnu kesklinn asub vaid ca 10 minuti autosõidu kaugusel.
Olete väga oodatud tutvuma selle suurepärase kapitaalse kivimajaga. Küsi ka partnerpakkumiste kohta!
Kodu aitab osta Swedbank:
- Pakkumise saamiseks kasuta koodi OBERHAUS ja Teid teenindatakse eelisjärjekorras.
Haldur võtab Teiega ühendust 1 tööpäeva jooksul.
-Swedbanki klientidele hindamisteenus Ober-Hausist soodsamalt.
Lisainfo: swedbank.ee/kodulaen
Pakkumine kehtib, kui ostad kodu Ober-Haus Kinnisvara vahendusel. Kodulaenu pakub Swedbank AS. Tutvuge tingimustega ja pea nõu www.swedbank.ee.













































































