Domus Kinnisvara müüb kinnistut koos ehitusjärgus elamuga.
Projekt on loodud eesmärgiga liita ühtseks tervikuks valmiv elamu juba kasutusel abihoonega kinnistul.
Oma tarbeks rajatud puhkemajake on mõõtudelt 6x7 meetrit, Baurocist, Kingspan soojustusega, laudise ning kivikatusega.
Valmiva elamu konstruktsioonid:
Vundament: madalvundament
Kandekonstruktsioonid: monoliitbetoon, väikeplokk, puit
Katuslagi : puit
Kaldkatus: 14°-ne kalle, kate: katusekivi
Välisviimistlus: laudvooder
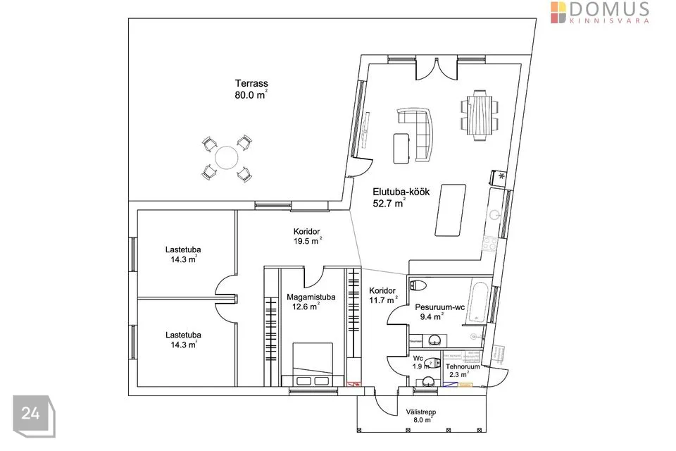
Maja mõõdud:
Kõrgus 5,0 m, hoone pikkus 16,6 m, hoone laius 14,0 m.
Välisseinad kaetud laudvoodriga, 3-kordsed plastikapakettaknad, liimpuit välisuksed.
Terrass: sügavimmutatud puitkonstruktsioon, liimpuit-taladel terrassilauad.
Kommunikatsioonid:
Veevarustus: piirkonna puurkaevu baasil
Kanalisatsioon: isevoolse väikepuhasti baasil
Elekter: võrguühenduse läbilaskevõime 3x16A, liitumispunkti faas ja pinge 3x380V, majaühendus – maakaabliga.
Küttesüsteem:
Hoonele paigaldatakse õhk-vesi soojuspump, põrandaküttega kesküttesüsteem. Soe vesi tarbeveeboilerist õhk-vesi soojuspumba baasil.
Ventilatsioonisüsteem: sissepuhke- ja väljatõmbe sund ventilatsioonisüsteem.
Siseviimistlus kokkuleppel ostjaga.
Ehitatav elamu on L-kujuline, avar majatagune 80 ruutmeetrine terrass on avatud päeva- ja õhtupäikesele.
Krunt antakse ostjale üle haljastatuna ning puhastatuna segavatest suurematest puudest. Kinnistule mahub projektijärgselt parkima kolm autot. Tänavakivi sissesõidul. Aiapiirete ja heki rajamise võimalus.
Kinnistule juurdepääs Viljandi maanteelt on väga hea, kaugus Tartust ca 33 km.
Vaba pääs Võrtsjärvele ca 1 km kaugusel.
Täiendav info elamu projekti ja planeeritud tööde tähtaegade osas maaklerilt.
Tere tulemast tutvuma!
Pangad pakuvad Domus Kinnisvara klientidele eluasemelaenu lepingutasu soodustusi. Küsi lisainfot Domus Kinnisvara maaklerilt või hindajalt.
Müü ja hinda meiega! Teeme kinnisvara müügi Sinu jaoks sujuvaks ja pingevabaks.
Projekt on loodud eesmärgiga liita ühtseks tervikuks valmiv elamu juba kasutusel abihoonega kinnistul.
Oma tarbeks rajatud puhkemajake on mõõtudelt 6x7 meetrit, Baurocist, Kingspan soojustusega, laudise ning kivikatusega.
Valmiva elamu konstruktsioonid:
Vundament: madalvundament
Kandekonstruktsioonid: monoliitbetoon, väikeplokk, puit
Katuslagi : puit
Kaldkatus: 14°-ne kalle, kate: katusekivi
Välisviimistlus: laudvooder
Maja mõõdud:
Kõrgus 5,0 m, hoone pikkus 16,6 m, hoone laius 14,0 m.
Välisseinad kaetud laudvoodriga, 3-kordsed plastikapakettaknad, liimpuit välisuksed.
Terrass: sügavimmutatud puitkonstruktsioon, liimpuit-taladel terrassilauad.
Kommunikatsioonid:
Veevarustus: piirkonna puurkaevu baasil
Kanalisatsioon: isevoolse väikepuhasti baasil
Elekter: võrguühenduse läbilaskevõime 3x16A, liitumispunkti faas ja pinge 3x380V, majaühendus – maakaabliga.
Küttesüsteem:
Hoonele paigaldatakse õhk-vesi soojuspump, põrandaküttega kesküttesüsteem. Soe vesi tarbeveeboilerist õhk-vesi soojuspumba baasil.
Ventilatsioonisüsteem: sissepuhke- ja väljatõmbe sund ventilatsioonisüsteem.
Siseviimistlus kokkuleppel ostjaga.
Ehitatav elamu on L-kujuline, avar majatagune 80 ruutmeetrine terrass on avatud päeva- ja õhtupäikesele.
Krunt antakse ostjale üle haljastatuna ning puhastatuna segavatest suurematest puudest. Kinnistule mahub projektijärgselt parkima kolm autot. Tänavakivi sissesõidul. Aiapiirete ja heki rajamise võimalus.
Kinnistule juurdepääs Viljandi maanteelt on väga hea, kaugus Tartust ca 33 km.
Vaba pääs Võrtsjärvele ca 1 km kaugusel.
Täiendav info elamu projekti ja planeeritud tööde tähtaegade osas maaklerilt.
Tere tulemast tutvuma!
Pangad pakuvad Domus Kinnisvara klientidele eluasemelaenu lepingutasu soodustusi. Küsi lisainfot Domus Kinnisvara maaklerilt või hindajalt.
Müü ja hinda meiega! Teeme kinnisvara müügi Sinu jaoks sujuvaks ja pingevabaks.




































