Kui sa otsid endale avara köök-elutoaga ja suure terrassiga kodu, siis müügile on tulnud 4-toaline maja aadressil Vestika 12!
MAJA
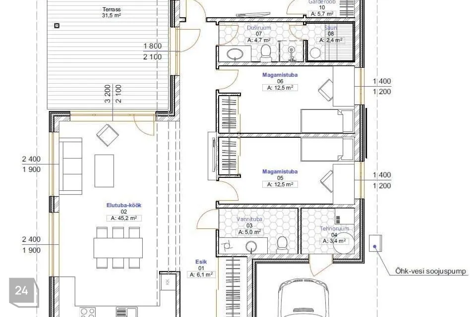
112 m² elamispinnaga kivimaja koosneb esikust, köök-elutoast, eraldi WC-st, kahest külgnevast magamistoast, WC-duširuumist, elektrikerisega leiliruumist ning walk-in garderoobiga suuremast magamistoast. Lisandub eraldi tehnoruum, mida saab kasutada ka panipaigana ning 31,5 m² suurune terrass, kuhu pääseb nii elutoast, koridorist kui ka magamistoast.
Maja muudab eriliseks avarus ja valgusküllasus, mida pakuvad suured elutoa aknad ning katusega terrass, kus saab mõnusasti aega veeta. Lisaks on maja ees kiviparketiga varjualune auto hoidmiseks. NB! Fotod on juba valminud identsest kõrvalmajast.
KOMMUNIKATSIOONID
Maja köetakse vesipõrandaküttega, mida toidab õhk-vesisoojuspump. Ventilatsiooniks on soojustagastusega süsteem. Olemas on tsentraalne vee- ja kanalisatsioonitrass (Emajõe veevärk). Elektriühenduse võimsuseks on 3x16 amprit. Katusekattematerjaliks on plekk, välisseinad on vooderdatud puitlaudisega. Maja ette on paigaldatud kiviparkett. Lisandub piirdeaed.
ASUKOHT
Maja asub Elva kesklinnast vaid mõneminutilise autosõidu kaugusel, samuti saab liikumiseks kasutada kergliiklusteed. Peedumäe bussipeatus on 100 m kaugusel, Elva linna piir 500 m ning Tartuni on 15 min autosõitu. Peedu piirkond, Elva jõgi ning Varpamäe mets koos RMK puhkealadega on vaid lühikese jalutuskäigu kaugusel.
Lumen Kinnisvarabüroo - tahame, et inimesel oleks kinnisvara müües õigus läbipaistvale teenusele, kiirele teenindusele ja personaalsele lähenemisele tema kõige kallima vara müümisel.
Vaata ka meie teisi pakkumisi kodulehelt Lumen Kinnisvarabüroo
Kinnisvara müük ja klientide nõustamine on meie kirg!
Hoia meie tegemistel silma peal Lumen Kinnisvarabüroo Facebook lehel
MAJA
112 m² elamispinnaga kivimaja koosneb esikust, köök-elutoast, eraldi WC-st, kahest külgnevast magamistoast, WC-duširuumist, elektrikerisega leiliruumist ning walk-in garderoobiga suuremast magamistoast. Lisandub eraldi tehnoruum, mida saab kasutada ka panipaigana ning 31,5 m² suurune terrass, kuhu pääseb nii elutoast, koridorist kui ka magamistoast.
Maja muudab eriliseks avarus ja valgusküllasus, mida pakuvad suured elutoa aknad ning katusega terrass, kus saab mõnusasti aega veeta. Lisaks on maja ees kiviparketiga varjualune auto hoidmiseks. NB! Fotod on juba valminud identsest kõrvalmajast.
KOMMUNIKATSIOONID
Maja köetakse vesipõrandaküttega, mida toidab õhk-vesisoojuspump. Ventilatsiooniks on soojustagastusega süsteem. Olemas on tsentraalne vee- ja kanalisatsioonitrass (Emajõe veevärk). Elektriühenduse võimsuseks on 3x16 amprit. Katusekattematerjaliks on plekk, välisseinad on vooderdatud puitlaudisega. Maja ette on paigaldatud kiviparkett. Lisandub piirdeaed.
ASUKOHT
Maja asub Elva kesklinnast vaid mõneminutilise autosõidu kaugusel, samuti saab liikumiseks kasutada kergliiklusteed. Peedumäe bussipeatus on 100 m kaugusel, Elva linna piir 500 m ning Tartuni on 15 min autosõitu. Peedu piirkond, Elva jõgi ning Varpamäe mets koos RMK puhkealadega on vaid lühikese jalutuskäigu kaugusel.
Lumen Kinnisvarabüroo - tahame, et inimesel oleks kinnisvara müües õigus läbipaistvale teenusele, kiirele teenindusele ja personaalsele lähenemisele tema kõige kallima vara müümisel.
Vaata ka meie teisi pakkumisi kodulehelt Lumen Kinnisvarabüroo
Kinnisvara müük ja klientide nõustamine on meie kirg!
Hoia meie tegemistel silma peal Lumen Kinnisvarabüroo Facebook lehel



































