Müüa maja Rõngu aleviku keskuses. Hoone on ehitatud 19. sajandil ja on Rõngu alevikus asuvatest hoonetest üheks vanimate seast. Maja sobib eriti suurepäraselt just vanade hoonete austajatele ja restaureerimishuvilistele, kes sooviks hoonet ajastutruult taastada.
Hoone sobib taastada nii koduks, kuid oma soodsa asukoha tõttu omab ka head potentsiaali äritegevuseks, kuna asub kahe maantee ristumispunktis ning möödasõitjaid jagub.
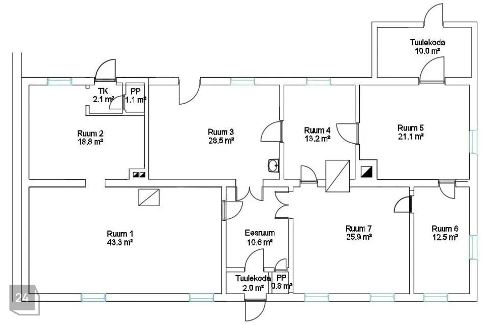
Hoonel on kolm eraldi sissepääsu – üks maja ees ning kaks pääsu hoovi poolt. Majal on suur privaatne hooviala, kuhu paistab lõuna- ja õdus õhtupäike. Hoone all on kogu hoone ulatuses kelder. Majal on avar pööning, mis on võimalik soovi korral ruumideks välja ehitada.
Hoone katus ja fassaad on 2000ndate alguses renoveeritud, samuti on hoonele paigaldatud PVC aknad.
Hoone vajab renoveerimist.
Hoone sobib taastada nii koduks, kuid oma soodsa asukoha tõttu omab ka head potentsiaali äritegevuseks, kuna asub kahe maantee ristumispunktis ning möödasõitjaid jagub.
Hoonel on kolm eraldi sissepääsu – üks maja ees ning kaks pääsu hoovi poolt. Majal on suur privaatne hooviala, kuhu paistab lõuna- ja õdus õhtupäike. Hoone all on kogu hoone ulatuses kelder. Majal on avar pööning, mis on võimalik soovi korral ruumideks välja ehitada.
Hoone katus ja fassaad on 2000ndate alguses renoveeritud, samuti on hoonele paigaldatud PVC aknad.
Hoone vajab renoveerimist.



















