Asukoht on super: väga heas looduslik koht, ümbruses imeilus loodus. Samuti on tegemist populaarse suvituspiirkonnaga.
Hoone on saanud kasutusloa 2023a (saun/elamu abihoone), kasutatav täielikult elamiseks.
Kuna hoone asub täna kinnistul, mida otseselt ei müüda ning eraldi katastriüksusteks jagada ei saa, siis seatakse ostmisel kaasomand /elamumaa ~845 m² + sellel asuv müüdav hoone/, mida saab edaspidi ka eraldi müüa.
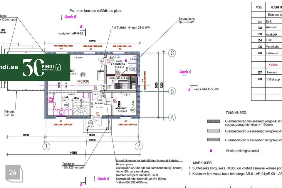
Maja planeering on hästi läbimõeldud, et saaks kasutada kõiki ruume mugavalt ja lihtsalt:
- 1. korrusel on koridor, milles asub ka kapp pesumasina ja kuivatiga, katlaruum (kütteks õhk-vesi soojuspump), avar köök-söögituba-elutuba, WC/dushiruum, puusaun.
Esimeselt korruselt pääseb ka avarale terrassile, mis on ideaalne hommikukohvi nautimiseks ja grillimiseks pere ja sõpradega.
Põrandaküte, lisaks on elutoas Tulikivi ahi, millega saab vajadusel maja kütta.
- 2. korrusel asuvad 4 magamistuba, WC , garderoob ja paigaldatud konditsioneer.
Radiaatorid (õhk-vesi soojuspump).
Kogu mööbel on hinna sees.
Majas on võimalik elada aastaringselt.
Kommunikatsioonid:
* elekter 16A
* vesi (lokaalne, kaev) / kanalisatsioon (lokaalne, mahuti).
Läheduses on suurepärased marjametsad, kaunis männimets ning liivarand vaid jalutuskäigu kaugusel (Järveni 350m).
Kaugus Jõhvi linna ca 50km, Tartu ca 80 km.
- - -
PANGA SOODUSTUSED Teeme koostööd kõikide suuremate pankadega! Meie kliendina teenindatakse Sind eelisjärjekorras ning kodulaenu lepingutasule kehtivad soodustused.
VAHENDAMINE Pindi Kinnisvara on pakkunud esindusteenust kinnisvaraturul alates 1995. aastast. Suurima Eesti kinnisvarabüroona oleme esindatud 18 linnas.
OSTUESINDUS Otsid endale kinnisvara? Muudame Sinu otsinguprotsessi sujuvaks ning meeldivaks kogemuseks. Meil on suur kliendibaas ja südikad maaklerid.
HINDAMINE Meie 30 kutselise hindaja eksperthinnanguid aktsepteerivad kõik finantsasutused! Hindame nii elukondlikku kui ärikinnisvara.
HALDAMINE Pakume kinnisvara haldamisel täislahendust: raamatupidamist, tehnosüsteemide hooldust, heakorratöid kinnistul ja hoones, ehituse- ja renoveerimistööde korraldamist, energia-, vee ja kommunikatsiooniteenuste vahendamist ja eripuhastusteenuseid.
JURIIDILINE NÕUSTAMINE Pindi Kinnisvara tütarettevõtte Realia Õigusbüroo spetsialistid on Sulle abiks kõigis kinnisvara puudutavates juriidilistes küsimustes.
Täpsemalt loe ja võta ühendust: https://www.pindi.ee/ või konsulteeri oma maakleriga.
Hoone on saanud kasutusloa 2023a (saun/elamu abihoone), kasutatav täielikult elamiseks.
Kuna hoone asub täna kinnistul, mida otseselt ei müüda ning eraldi katastriüksusteks jagada ei saa, siis seatakse ostmisel kaasomand /elamumaa ~845 m² + sellel asuv müüdav hoone/, mida saab edaspidi ka eraldi müüa.
Maja planeering on hästi läbimõeldud, et saaks kasutada kõiki ruume mugavalt ja lihtsalt:
- 1. korrusel on koridor, milles asub ka kapp pesumasina ja kuivatiga, katlaruum (kütteks õhk-vesi soojuspump), avar köök-söögituba-elutuba, WC/dushiruum, puusaun.
Esimeselt korruselt pääseb ka avarale terrassile, mis on ideaalne hommikukohvi nautimiseks ja grillimiseks pere ja sõpradega.
Põrandaküte, lisaks on elutoas Tulikivi ahi, millega saab vajadusel maja kütta.
- 2. korrusel asuvad 4 magamistuba, WC , garderoob ja paigaldatud konditsioneer.
Radiaatorid (õhk-vesi soojuspump).
Kogu mööbel on hinna sees.
Majas on võimalik elada aastaringselt.
Kommunikatsioonid:
* elekter 16A
* vesi (lokaalne, kaev) / kanalisatsioon (lokaalne, mahuti).
Läheduses on suurepärased marjametsad, kaunis männimets ning liivarand vaid jalutuskäigu kaugusel (Järveni 350m).
Kaugus Jõhvi linna ca 50km, Tartu ca 80 km.
- - -
PANGA SOODUSTUSED Teeme koostööd kõikide suuremate pankadega! Meie kliendina teenindatakse Sind eelisjärjekorras ning kodulaenu lepingutasule kehtivad soodustused.
VAHENDAMINE Pindi Kinnisvara on pakkunud esindusteenust kinnisvaraturul alates 1995. aastast. Suurima Eesti kinnisvarabüroona oleme esindatud 18 linnas.
OSTUESINDUS Otsid endale kinnisvara? Muudame Sinu otsinguprotsessi sujuvaks ning meeldivaks kogemuseks. Meil on suur kliendibaas ja südikad maaklerid.
HINDAMINE Meie 30 kutselise hindaja eksperthinnanguid aktsepteerivad kõik finantsasutused! Hindame nii elukondlikku kui ärikinnisvara.
HALDAMINE Pakume kinnisvara haldamisel täislahendust: raamatupidamist, tehnosüsteemide hooldust, heakorratöid kinnistul ja hoones, ehituse- ja renoveerimistööde korraldamist, energia-, vee ja kommunikatsiooniteenuste vahendamist ja eripuhastusteenuseid.
JURIIDILINE NÕUSTAMINE Pindi Kinnisvara tütarettevõtte Realia Õigusbüroo spetsialistid on Sulle abiks kõigis kinnisvara puudutavates juriidilistes küsimustes.
Täpsemalt loe ja võta ühendust: https://www.pindi.ee/ või konsulteeri oma maakleriga.



































































