Üldinfo: Müüa hea asukohaga, det.planeeringuga ärimaa kinnistu Tartu linnaääres, Tila külas.
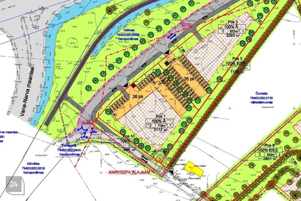
Det.planeeringu alusel on kinnistule lubatu ehitada 1 ärihoone suurima ehitusaluse pinnaga 778 m2. Hoonel kuni 2 korrust kõrgusega 5-10 meetrit, katusekalle 0-15 kraadi.
Valgustatud asfaltkattega teed. Kõik liitumised kinnistu piirilt. Elektriliitumine ampripõhine (olemas liitumispakkumine).
Väga hea nähtavusega, tiheda liiklusega Kõrveküla-Tartu ja Tartu-Jõhvi teede ristmikul. Kiiresti arenev linnalähedane piirkond.
Igasuguse lisainfo saamiseks palun helistage või kirjutage e-kiri. Det.planeeringuga seonduvat infot saab jagada e-mailile.
Võtame müüki ja üürile Teie kinnisvara. Aitame Teid laenu taotlemisel, kinnisvara hindamisel ja seadustamisel. Eripakkumised köögimööblile ja garderoobidele.
Det.planeeringu alusel on kinnistule lubatu ehitada 1 ärihoone suurima ehitusaluse pinnaga 778 m2. Hoonel kuni 2 korrust kõrgusega 5-10 meetrit, katusekalle 0-15 kraadi.
Valgustatud asfaltkattega teed. Kõik liitumised kinnistu piirilt. Elektriliitumine ampripõhine (olemas liitumispakkumine).
Väga hea nähtavusega, tiheda liiklusega Kõrveküla-Tartu ja Tartu-Jõhvi teede ristmikul. Kiiresti arenev linnalähedane piirkond.
Igasuguse lisainfo saamiseks palun helistage või kirjutage e-kiri. Det.planeeringuga seonduvat infot saab jagada e-mailile.
Võtame müüki ja üürile Teie kinnisvara. Aitame Teid laenu taotlemisel, kinnisvara hindamisel ja seadustamisel. Eripakkumised köögimööblile ja garderoobidele.
CKE Kinnisvara OÜ on aktiivselt tegutsenud alates 2009 aastast ning on Eesti üks suurimaid kinnisvara vahendusega tegelevaid ettevõtteid. CKE Kinnisvara OÜ kontorid asuvad Tallinnas, Tartus, Pärnus ja Kuressaares ning maaklerid tegutsevad aktiivselt üle Eesti.
Pakume:- - tasuta konsultatsioon ja hinnang teie kinnisvarale
- - professionaalsed fotod
- - aerofotod ja -videod drooniga
- - korrektsed lepingud
- - õigusabi
- - kolimisteenus


















